Ждали лучших времен? В центре Минска внезапно предложили квартиры в готовой новостройке

 
27 октября 2025 в 12:11
БОЛЬШОЙ РОЗЫГРЫШ! Заказывай от 99 р. в приложении Каталог Onlíner до 31.01 и получи шанс выиграть призы от Dreame

Эта новостройка спряталась среди брежневок и хрущевок в районе Золотая Горка недалеко от площади Победы. Она — тот самый пример точечной застройки в уже существующих старых кварталах. Как правило, такие объекты являются премиальными из-за высоких затрат, ложащихся на плечи коммерческих застройщиков. И действительно, 12-этажка в Горном переулке, 8, всегда позиционировалась как дом премиум-класса. Квартиры в ней активно продавались в далеком 2019 году. Но вот сюрприз: недавно на рынок вывели немало готовых «консервов» разной площади. На сколько изменилась цена метра?

Напомним, что уплотнить район Золотая Горка решили еще в 2011 году. В начале 2016-го компания «Атлант-М Строй» приступила к сносу старых домов для возведения одного нового. С лица земли стерли старое двухэтажное общежитие хлебозавода и деревянный дом с каменной пристройкой. К 2019 году «свечка» была полностью готова. Выглядит она довольно стандартно для новостроек того времени: обычные окна, незамысловатые оттенки фасадов. Фишкой стали разве что окна-иллюминаторы вдоль лестницы.

Под домом предусмотрен двухуровневый подземный паркинг — это тоже признак премиальности. Детская площадка выглядит довольно стандартно.

Отделку мест общего пользования постарались сделать под стать премиальному званию. Холл на первом этаже отделан керамической плиткой под мрамор, имеется интересная подсветка потолка и декоративные панели с подсветкой номеров квартир.

отдельностоящая, стирально-сушильная машина, с паром, загрузка до 8 кг, отжим 1400 об/мин, глубина 43 см (с люком 52 см), энергопотребление B, 10 программ
газовая панель + газовый духовой шкаф, газ-контроль конфорок, поверхность: закаленное стекло, управление электронное, таймер электронный, размеры (ШхГхВ): 60x60x85 см, цвет нержавеющая сталь/черный
отдельностоящий, полный No Frost, электронное управление, класс A+, полезный объём: 302 л (223 + 79 л), инверторный компрессор, перенавешиваемые двери, лоток для яиц, 59.5x64.3x190.7 см, графит

Всего в доме было запроектировано 79 квартир. В 2019 году «квадрат» здесь оценивался от $1600 до $1800. Важный момент: в то время квартиры с 9 по 12 этаж в продажу не выставлялись.

Какое количество жилья было продано в момент пика реализации, остается загадкой. Однако сегодня здесь предлагают немало «консервов» — квартир без отделки, годами ожидающих своих хозяев.

Судя по информации из объявлений, свободны к приобретению варианты, расположенные как раз на ранее недоступных этажах — с 9-го по 12-й. Получается, застройщик намеренно приберег их и терпеливо ждал подходящего момента? Предлагаются:

  • четыре однушки площадью 49,4 кв. м;
  • две двушки площадью от 78,6 до 84,3 кв. м;
  • две трешки площадью от 123,8 до 124,5 кв. м;
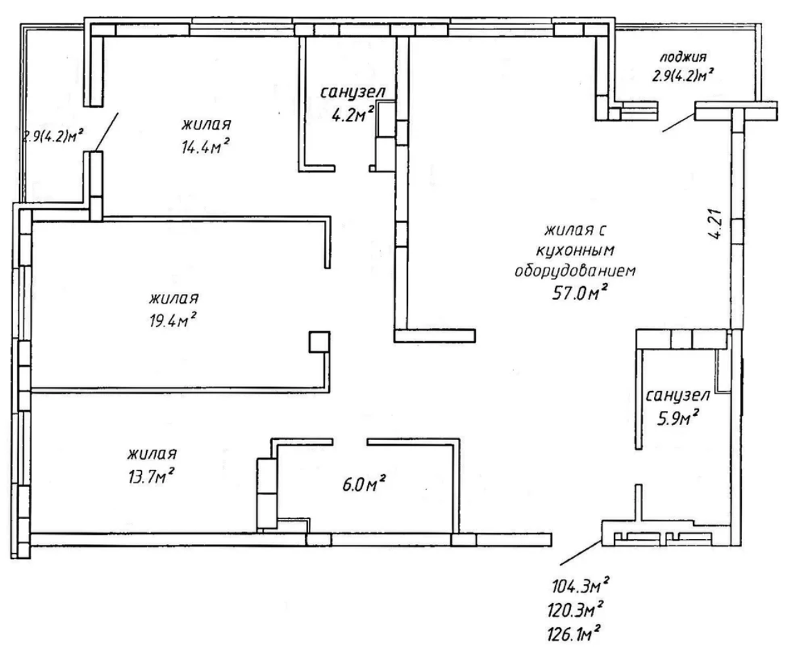
  • три четырешки площадью от 126,0 до 126,4 кв. м.

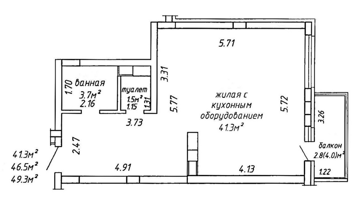
1-комнатная квартира здесь довольно просторная — 49,3 метра. В то время еще не было принято заполнять новостройки малогабаритками. Планировка в ней свободная. Стоимость — $108 460.

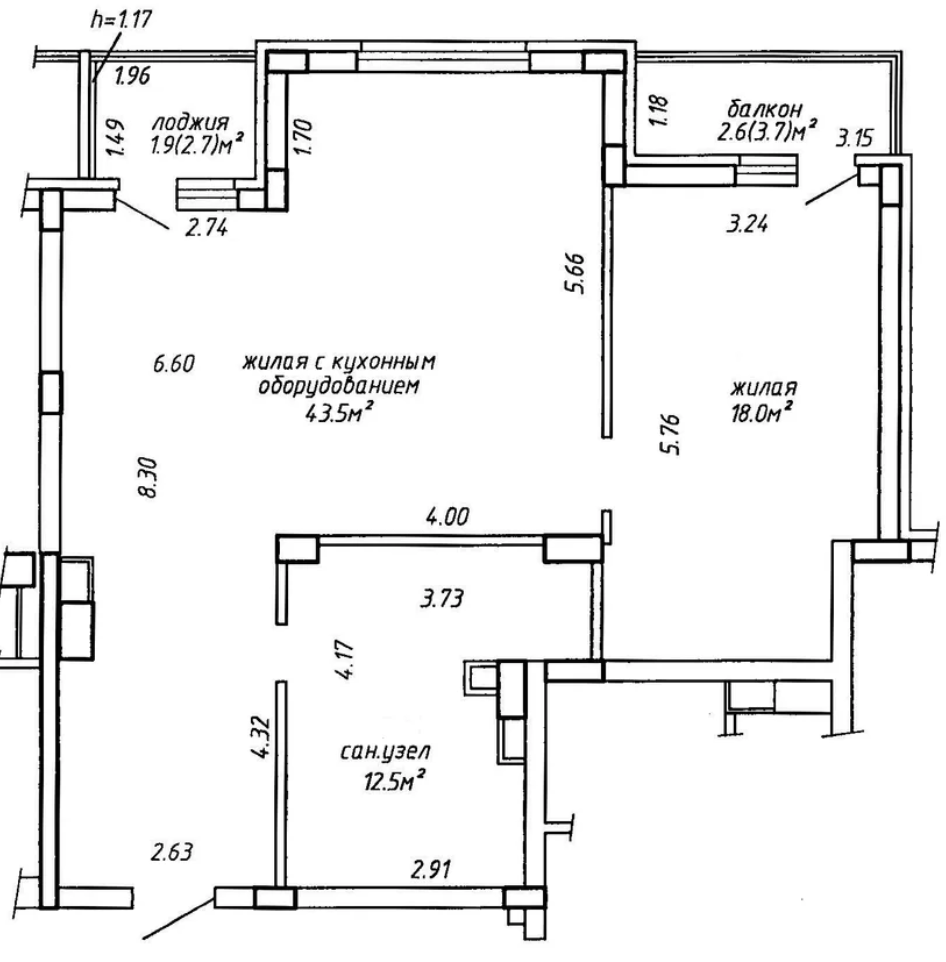
2-комнатная квартира площадью 76,6 метра продается за $174 492. Интересно, что застройщик уже предусмотрел в ней планировку и возвел стены. Новому владельцу придется с этим смириться либо перекраивать жилье под себя.

Самой дорогой является 4-комнатная квартира площадью 126,4 метра. Ее можно купить за $316 000.

Ну что, давайте посчитаем. Спустя много лет метр в премиальном доме подстроился под рыночные условия и значительно вырос.

Жилье в готовой новостройке стоит от $2200 до $2500 за «квадрат».

Есть о чем рассказать? Пишите в наш телеграм-бот. Это анонимно и быстро

Onlíner рекомендует
строительный, сеть, потребление: 1000 Вт, без регулировки мощности
Выбор покупателей
Onlíner рекомендует
питание: аккумуляторный, Li-ion, 1700 об/мин, 30 Н·м, напряжение аккумулятора: 12 В, ёмкость аккумулятора: 2 А·ч, аккумулятор в комплекте, 1100 г
питание: аккумуляторный (18 В), 4675 ударов/мин, энергия удара: 1.9 Дж, без аккумулятора в комплекте, 2300 г