Старый фонд, небольшой метраж и простой ремонт. Поискали в Минске дешевые трешки

 
31 403
17 сентября 2025 в 17:30

Цены на недвижимость, как в той детской песенке про крылатые качели, летят куда-то вверх. Чтобы запечатлеть секундное настоящее, которое уже скоро может стать прошлым, мы сделали подборку дешевых трехкомнатных квартир. Сразу поставили границу: ничего дороже $75 000 по курсу не признаем. Что в итоге нашли? Жилье на окраинах Минска с простеньким ремонтом и относительно небольшим размером. Зато свое.

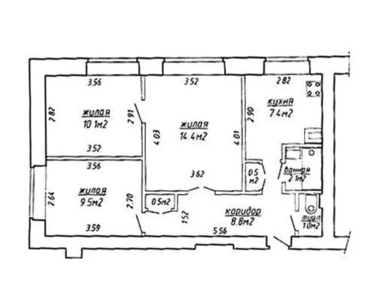
В Курасовщине, на улице Ландера, продается трешка площадью 51 кв. м. Находится в пятиэтажке 1968 года постройки. Дом уже пережил капитальный ремонт в 2012 году.

В квартире две изолированные комнаты и одна проходная — гостиная. Кухня небольшая, около 6 метров, санузел раздельный. Для хранения предусмотрено собственное подвальное помещение.

Интерьер советский, с дощатыми полами и слегка подуставшими обоями, но светлые оттенки создают ощущение какого-никакого простора — стены здесь не давят.

Цена — $74 900 в эквиваленте.

На $90 дороже обойдется жилье в Шабанах, на улице Ротмистрова. Скрывается в хрущевке 1966 года. По размеру квартира ощутимо больше — 63 «квадрата». Да и планировка более удобная, без проходных комнат.

Внутри сделан аккуратный ремонт в спокойных тонах — видно, что обновляли еще в начале 2000-х. Вся необходимая мебель есть, можно заезжать и жить.

А рядом с Чижовским водохранилищем, на улице Голодеда, можно обзавестись трешкой за $75 000 по курсу. Располагается в кирпичном доме 1980 года. Год назад там сделали капитальный ремонт — заменили коммуникации и обновили подъезды.

Квартира расположена на первом этаже — кому-то может показаться минусом, но для других это плюс: не нужно долго подниматься по лестнице.

Жилье занимает 54 кв. м. Планировка включает проходную гостиную, спальню и комнату, которая одновременно служит рабочим кабинетом и спальней. Мебель разная: где-то современная, где-то уже «повидавшая жизнь». Встречаются ковры на стенах.

Санузел раздельный, в довольно хорошем состоянии — ремонт здесь выглядит более свежим, чем в остальных помещениях.

Есть о чем рассказать? Пишите в наш телеграм-бот. Это анонимно и быстро