За $40 тысяч, но в старой двухэтажке. Самые дешевые двушки Минска, которые продают прямо сейчас

 
26 415
29 апреля 2022 в 16:04
Автор: Снежана Инанец
Автор: Снежана Инанец
Выиграй модный аэрогриль! Покупай в приложении с доставкой Príme и получай шанс выиграть аэрогриль Roome

На днях мы показывали, как выглядят самые дешевые однушки в Минске. Сейчас посмотрим на самые дешевые двушки в нашей базе «Дома и квартиры». Есть как совсем скромные, так и приличные варианты.

Что предлагают до $40 тысяч

В марте мы уже рассказывали про двушки, которые стоят дешевле $40 тысяч. Тогда был даже выбор, сейчас таких предложений меньше.

Квартира за $39 900 находится в двухэтажке по Кижеватова, 18.

На верхнем этаже, общая площадь — 38,4 «квадрата», жилая — 26,8, кухня — 4,6. К сожалению, фотографий прикреплено мало, но и по ним видно, что жилье очень требует ремонта. Балкона нет, комнаты смежные, санузел совмещенный.

Дом кирпичный, 1959 года постройки. Капремонт был в 2002-м.

«Квартира оборудована двухконтурным газовым котлом Ferroll, теплом и горячей водой вы будете обеспечены круглогодично».  

До станции метро «Институт культуры» — пять остановок.

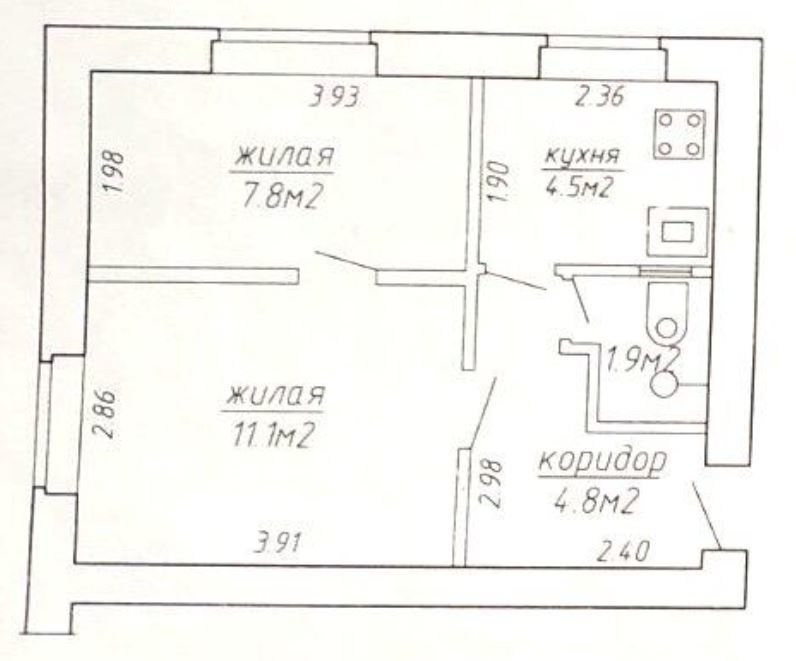
По-прежнему продается квартира на улице Центральной, в районе станции «Автозаводская». Как и прежде, она стоит $39 900. Находится в кирпичном доме 1958 года, это поздняя сталинка, построенная по индивидуальному проекту трехэтажек.

Общая жилплощадь невелика: всего 30,1 кв. м, жилая — 18,9, кухня — 4,5 «квадрата», санузел совмещен, балкона нет.

Зато высота потолков — 3 метра, пишут авторы объявления. Ремонт позволяет заехать и жить, а в пешей доступности есть метро.

А что за $40 тысяч по курсу? Выбирайте

За 106 130 рублей, или $40 000 по курсу, продается квартира в доме №17 на улице Яна Райниса. Жилье находится на втором этаже пятиэтажной панельки, построенной в 1966-м.

Общая площадь — 42,7 «квадрата», жилая — 27,9 кв. м, кухня — 5,8.

Балкона нет, но комнаты раздельные. Санузел совмещенный.

«Без отделки, без мебели», зато есть «вид на набережную», сказано в объявлении.

Примечательная квартира продается в переулке Клумова, 7.

Стоит чуть дороже — 108 500 рублей, то есть $40 900. Находится на первом этаже пятиэтажки 1964 года постройки. Общая площадь — 40,8 кв. м, жилая — 26,8 «квадрата», кухня — 5,7 кв. м. Балкона нет. Комнаты раздельные, санузел совмещен.

«В квартиру в хорошем состоянии можно сразу заехать и жить», — пишет агентство. Обратите внимание, сколько ковров.

Капремонт в доме был в 2018-м, тогда заменили коммуникации.

Близко к дому расположен Антоновский парк с каналом Слепянской водной системы.

Квартиру по адресу Запорожская, 59 предлагают примерно за 108 800 рублей, это $41 000. Она находится на первом этаже двухэтажки 1958 года.

Про перспективу сноса ничего не сказано, но как раз в этом районе малоэтажное жилье массово уберут, вот здесь мы писали про перспективы. Впрочем, местные власти рассказывали, что некоторые жители квартала смогут рассчитывать на компенсацию по жилью в многоэтажке в этом же районе.

Общая площадь — 38,6 кв. м, жилая — 27,7, кухня — 4,4 «квадрата». Балкона нет.

Отсюда тоже недалеко до Слепянской водной системы. В объявлении хвалят инфраструктуру района и отмечают, что недалеко — Ботанический сад.

«Квартира готова к проживанию. Входная металлическая дверь, шкаф-купе. Стеклопакеты ПВХ. Встроенная кухня. Санузел облицован плиткой».

В трехэтажке по адресу Осипенко, 20 продают двушку за 111 200 рублей, а это $41 900.

Квартира находится на первом этаже из трех. Общая площадь — 40,6 «квадрата», жилая — чуть больше 30, кухня — 5,1. Комнаты смежные, балкона нет, санузел совмещенный.

Выглядит жилье нормально, можно заселиться, а потом уже заниматься ремонтом.

Дом 1959 года постройки, подъезд аккуратный, сказано в объявлении. Место неплохое — рядом бульвар Шевченко, улица Веры Хоружей, недалеко — Комсомольское озеро.


вертикальный, сеть, потребление: 600 Вт, без регулировки мощности, шум 75 дБ
Onlíner рекомендует
вертикальный, аккумулятор, потребление: 425 Вт, регулировка мощности, турбощетка, док-станция с зарядкой, шум 82 дБ

Наш канал в Telegram. Присоединяйтесь!

Есть о чем рассказать? Пишите в наш телеграм-бот. Это анонимно и быстро