Продолжаем мониторить базу Onlíner «Дома и квартиры», чтобы отыскать там самую дешевую квартиру Минска. В конце ноября такое звание заслужила однушка на улице Чигладзе за $55 000 по курсу. Своего хозяина она таки нашла — по крайней мере, на нашем сайте она больше не продается. Теперь самым бюджетным жильем можно считать микроквартиру на улице Кабушкина. Напоминаем, что мы не рассматриваем доли в квартирах и предложения без фотографий.
Прежде чем показать вам нового рекордсмена, вспомним предыдущего. Располагалась квартира на улице Чигладзе, в пятиэтажке 1970 года. Площадь — 30 «квадратов».
Из очевидных плюсов — однушка уже подготовлена к ремонту. Стены оштукатурены и окрашены, выполнены демонтажные работы, установлены окна с новыми стеклопакетами. Остается только добавить своего индивидуального стиля. Ну и мебель с техникой, конечно. Зато не придется избавляться от чужого и лишнего.
Стоило жилье $55 000 по курсу.
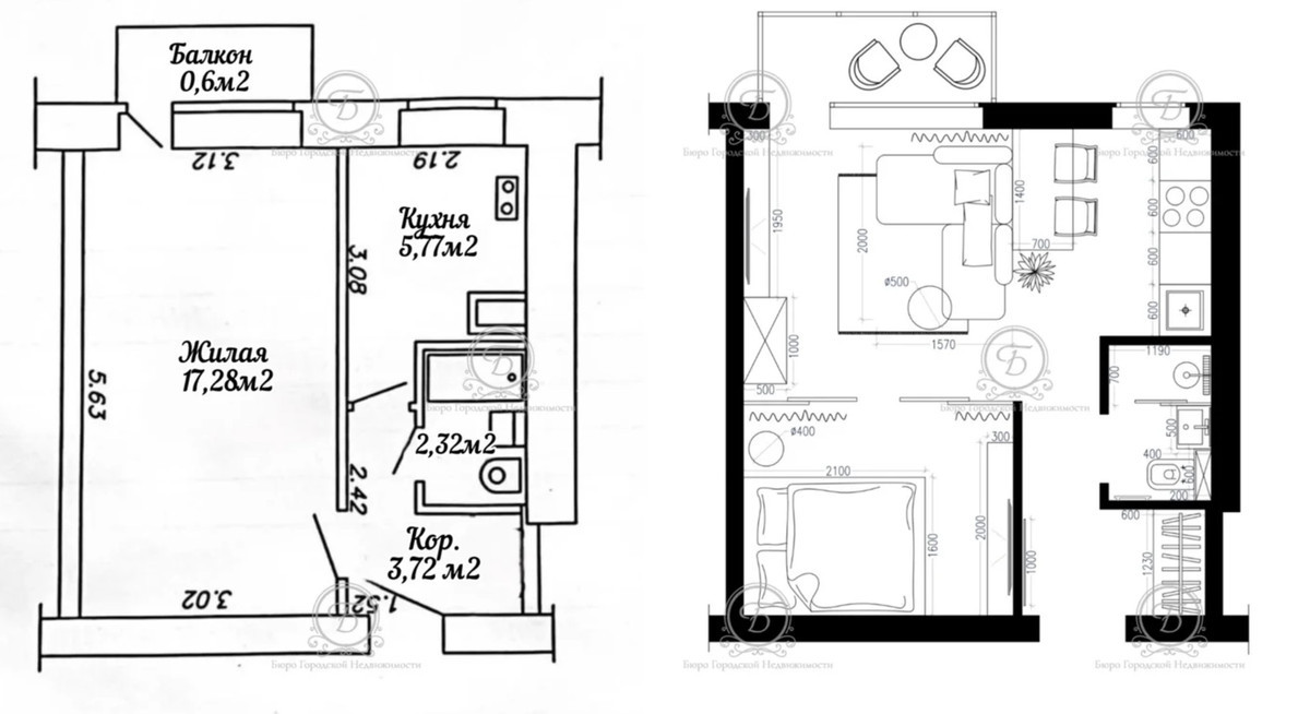
Теперь за эту же сумму можно рассчитывать на более скромный вариант — микроквартиру на улице Кабушкина. Скрывается в хрущевке 1970 года, прямо напротив Минского автомобильного завода. Размер у жилья — всего 20 кв. м, из них жилой площади всего лишь 11 «квадратов».
Обстановка классическая для старого фонда: дощатый пол, ковер на стене, повидавшая не одно поколение жильцов мебель. Переехать можно сразу, если не хочется тратиться на ремонт: все самое необходимое в квартире есть.
А теперь самое интересное: цена за «квадрат» в такой однушке очень даже приличная — $2750. Как считаете, владельцы ее завысили или, наоборот, продешевили?

Государственная система жилищных строительных сбережений станет вашим надежным партнером в реализации мечты о собственном жилье.
Этап 1. Определяем соотношение собственных и кредитных средств: 30/70, 40/60 или 50/50. Накапливаем средства на вкладе в течение 26, 38 или 62 месяцев. Ежемесячно на эту сумму начисляются проценты и госпремия, которые освобождаются от подоходного налога.
Этап 2. Получаем кредит на выгодных условиях. Ставка по кредиту сегодня составляет 10,75% годовых (ставка рефинансирования НБРБ + 1 п.п.). Срок кредитования — 7, 10 или 15 лет и зависит от плана накопления.
Подробности — здесь.
Есть о чем рассказать? Пишите в наш телеграм-бот. Это анонимно и быстро