«Маяк Минска» — пожалуй, один из самых обсуждаемых ЖК столицы. В свое время вокруг этого проекта ходило много разговоров, особенно когда ожидания минчан «немного» не оправдались и вместо квартала с небоскребами и водными каналами мы получили что-то куда более приземленное. Тем не менее свою популярность у жителей города этот комплекс все же снискал: квартиры застройщик распродал, а благодаря довольно развитой инфраструктуре и выгодной локации проводить там время стали не только местные. Мы решили посмотреть, какое жилье можно купить в этом месте прямо сейчас. Обращали внимание на дешевое, хотя таковым его можно назвать с большой натяжкой: например, самая бюджетная однушка в базе Onlíner «Дома и квартиры» стоит 85 000 у. е.
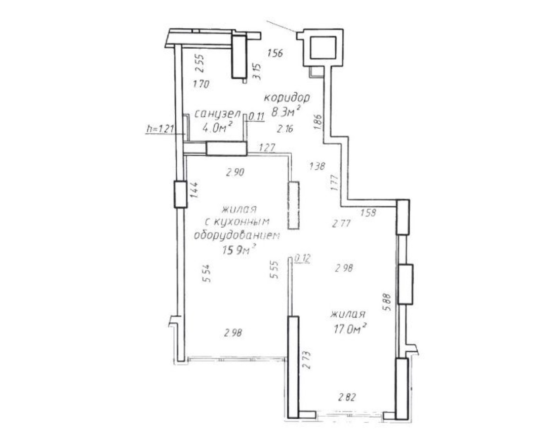
По традиции начинаем с однушек. Самой дешевой можно считать квартиру за $85 000 по курсу, скрывающуюся в десятиэтажке 2011 года. Площадь жилья — 37,4 кв. м. Состоит из отдельной кухни, жилой комнаты и совмещенного санузла. В целом выглядит достаточно современно и свежо. Хозяева обещают оставить после себя довольно много из обстановки: кухонный гарнитур со всей встроенной техникой, корпусную мебель, два дивана, ванную, биде и декоративные зеркала.
На $5000 дороже обойдется жилье в доме поновее: его построили в 2017 году. Размер — 41,7 «квадрата». Представляет собой студию, разделенную на несколько зон — кухню, гостиную и спальню. Лоджия переделана под рабочий кабинет.
«Каждый элемент интерьера подобран с душой и теплотой», — уверяют собственники. Согласны?
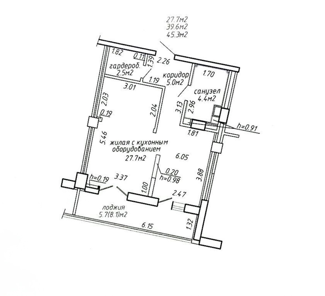
Столько же стоит однушка в высотке 2016 года. Площадь — 45,3 кв. м. Интерьер тяготеет к минимализму: преобладание белых и серых оттенков, стены под кирпич, использование дерева, не так много мебели. Хозяева уверяют, что квартира в идеальном состоянии, так как ремонт был сделан не сразу после покупки и проживали здесь всего несколько лет. Собственно, при просмотре сможете проверить.
А за 95 000 у. е. можно взять студию на 17-м этаже каркасника 2017 года. Ее площадь — 45,6 «квадрата». На фотографиях смотрится довольно просторной. На лоджии также оборудована зона отдыха и рабочее место. Ремонт выполнен в пыльно-розовых тонах, что выгодно выделяет квартиру на фоне других объектов. Продается со всей мебелью и техникой.
Переходим к двухкомнатным вариантам. Начнем с самого бюджетного, за $90 000 в эквиваленте. Это евродвушка с панорамным видом, расположенная на 12-м этаже монолитного дома 2018 года. Размер — 48,3 кв. м. Состоит из компактной гостиной, такой же спальни, кухни, которая фактически находится в коридоре, и совмещенного санузла.
Еще одну евродвушку, но на $2000 дороже, можно купить в соседней высотке, уже на 16-м этаже. Площадь — 45,2 «квадрата». Дизайн также выполнен в минималистичном стиле с использованием ярких акцентов (цвет мебели, необычный декор в виде книг с цветными обложками). По ощущениям квартира довольно уютная. Еще и мебели достаточное количество (разве что мест хранения кому-то может быть мало). Собственники обращают внимание на наличие кондиционера, фильтров для воды, шумоизоляции. Согласитесь, последняя деталь особенно важна в многоквартирном доме.
Не устали от подобного формата жилья? Тогда ловите очередную квартиру с совмещенной кухней и гостиной и отдельной спальней. Цена — 97 000 у. е. Скрывается в доме 2017 года. Размер — 44 кв. м. Тут все стандартно (в хорошем смысле): современная планировка и такой же ремонт, мебель на заказ, много мест хранения.
А вот такое жилье отдают за $99 900 по курсу. Площадь — 47,3 «квадрата». По функционалу и дизайну похоже на предыдущие предложения. Включает в себя кухню-гостиную, спальню (вполне может сойти и за детскую), ванную комнату с подогревом пола.
А теперь посмотрим на трехкомнатное жилье. За 107 000 у. е. продается квартира с чистовой отделкой и практически полным отсутствием мебели. Даже сантехники нет. Зато можно будет обставить на свой вкус. Размер жилья — 63,7 кв. м. Находится в монолитном доме 2014 года.
$133 000 в эквиваленте — цена евротрешки в десятиэтажке 2012 года. Площадь — 71,9 «квадрата». Подойдет для семьи с ребенком: одна из комнат переделана под детскую. Кухня совмещена с гостиной, в спальне есть рабочая зона и внушительная система хранения. А еще тут два санузла.
Последний объект — жилье в монолитном доме 2014 года за $135 000 по курсу. Размер — 77 кв. м. Состоит из двух спален, просторной кухни-гостиной и большой ванной. Интерьер наверняка покажется кому-то устаревшим, но кто-то точно разглядит в нем романтику 2000-х.
Мы попросили эксперта по продаже недвижимости и менеджера по развитию «Центра недвижимости „Моя 7Я“» Петра Емельянова ответить на несколько вопросов про «Маяк Минска».
— Наблюдался ли в последнее время интерес к данному кварталу со стороны покупателей?
— Интерес, безусловно, есть, но значительная часть спроса фильтруется уровнем цен. По информации нашего отдела подбора, «Маяк» — не самый частый целевой запрос именно из-за стоимости. Бывает, кто-то хочет купить жилье именно там, но это редко. Чаще на сделку покупатель выходит после работы специалиста по продажам, который объясняет выгоду и преимущества этого ЖК под конкретный запрос. При этом важно понимать, что этот вариант далеко не для каждого покупателя. Тем не менее практически все квартиры от застройщика уже давно распроданы, а то, что есть на рынке, — это вторичка либо квартиры, реализуемые строительными подрядчиками, расчет с которыми был произведен жильем, ну и пара неликвидов, оставшихся у Dana Holdings.
Если сравнивать текущий спрос с тем, что было ранее, на пике маркетинговой компании застройщика, то очевидно, что тогда желающих жить именно в этом комплексе было значительно больше. Также заметно, что люди проявляют интерес в первую очередь к объектам с небольшим метражом.
— А сколько квартир и за какие суммы было продано за последние полгода?
— По данным БТИ, за последние 6 месяцев было продано 96 квартир. Самая дорогая стоила 300 000 у. е. (129 «квадратов» по 2326 у. е. за метр), а самая дешевая — всего 19 711 у. е. (53 «квадрата» по 372 у. е. за метр). Откуда такие цены — не спрашивайте. Средняя цена сделки (без разбивки по количеству комнат) среди объектов, находящихся в диапазоне от 1000 до 3000 у. е. за метр, — 113 528 у. е. (1868 у. е. за метр). Средняя стоимость однокомнатной квартиры составила 111 853 у. е. (1866 у. е. за метр), двухкомнатной — 101 778 у. е. (1820 у. е. за метр).
Любопытно, что средняя цена двушки на 10 000 ниже цены однушки. Прежде всего это связано с метражом. Так, в выборке двухкомнатных квартир треть из них имеет площадь до 45 метров включительно, в то время как среди однокомнатных есть много объектов по 60—70 «квадратов» и более. К слову, самая дорогая квартира из проданных тоже однушка.
— Много ли предложений в «Маяке Минска» прямо сейчас?
— Как отмечают наши специалисты, есть ощущение, что объектов в «Маяке» стало больше. Но сравнивая с другими ЖК, важно понимать, что в данном случае рост предложения связан со вторичным рынком, в то время как во многих других популярных комплексах количество жилья растет за счет строительства новых домов.
— Какие, на ваш взгляд, плюсы и минусы данного ЖК? Может, и обратная связь от клиентов имеется?
— После общения с теми, кто жил или в данный момент живет там, вырисовывается следующая картина. Квартал сочтут комфортным условные айтишники, пары без детей и своего авто. Вся необходимая инфраструктура рядом, в максимальной доступности: не то что машина, даже велосипед не обязателен. Это вариант для тех, кто хочет существовать в своем «микрогороде»: есть где прогуляться, поужинать, постричься и т. д. А вот семье с детьми будет не так удобно, ведь надо возить малышей на учебу / кружки / в поликлиники и т. д. Хотя детских площадок и мест, где погулять с ребенком, здесь хватает.
Еще одна проблема — нет отдельной удобной парковки для жильцов, иногда надо 5—10 минут покружить по дворам. То есть оставить машину возле своего подъезда практически нереально. Разве что в Dana Mall есть возможность арендовать парковочные места (около 60 евро в месяц).
К строительству тоже есть вопросы. Поскольку дома возводились очередями, первая получилась слишком простой для такого комплекса. Подъезды, лифты — все смотрится не так презентабельно, как хотелось бы за эти деньги. Да и шумоизоляция средняя. Более новые дома отличаются лучшим качеством.
Ну и вид из окон. Как поделился бывший жилец этого района: «Жил в угловом доме: в одном окне — „Дана“, в другом — окна соседнего дома, до 8-го этажа окна в окна».
Если резюмировать, то вот основные плюсы:
Минусы:

Толькі тры дні — 9, 10 i 11 снежня вас будуць чакаць найлепшыя ўмовы пакупкі жылля адразу ва ўсіх праектах забудоўшчыка: «Новай Баравой», «Зялёнай гавані» і Depo.
Выберыце, куды вы хочаце пераехаць у новым годзе, а мы дапаможам спраўдзіць вашу мару!
Падрабязнасці — па спасылцы.
Наш канал в Telegram. Присоединяйтесь!
Есть о чем рассказать? Пишите в наш телеграм-бот. Это анонимно и быстро
Перепечатка текста и фотографий Onlíner без разрешения редакции запрещена. ng@onliner.by