«Уютный» — один из новеньких и любопытных жилых комплексов, который не так давно появился на карте Минска. Он пристроился в густом лесу Степянки, при этом от новостройки рукой подать до станции метро «Восток». Первый дом в комплексе тихо ввели в строй под занавес 2024 года, но многие дольщики смогли получить ключи только спустя месяцы. Некоторые из квартир тут же появились в продаже на вторичке, но, разумеется, уже по другим ценам.
Сегодня в «Уютном» наберется с пятерку квартир в бетоне, которые ищут новый владельцев. Кто-то за неполный год даже сумел сделать в одной из трешек симпатичный ремонт. Рассмотрим повнимательней, как выглядит готовое к жизни жилье, и узнаем, сколько за него хотят выручить.
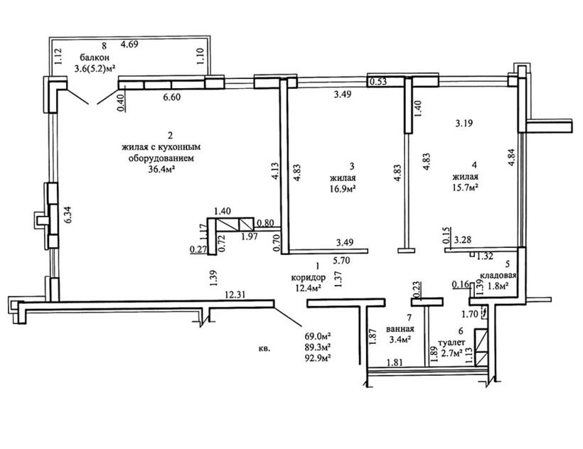
Просторная трешка на ул. Подлесной, о которой пойдет речь, находится на 14-м, видовом этаже. Напомним, она открывает шикарный вид на лес, поэтому в панорамных окнах можно поймать солнечные лучи (в отличии, например, от квартир на первых уровнях).
Ее площадь — 93 квадратных метра, которые грамотно разделили на две отдельные комнаты на 17 и 16 метров, а также просторную гостиную, совмещенную с кухней. Нашлось здесь место и для гардеробной.
В жилье выполнен дизайнерский ремонт, и, если верить автору объявления, оно укомплектовано техникой от топовых производителей. Есть вероятность, что в квартире еще никто не успел пожить.
Отдают готовую к жизни трешку за $275 тысяч по курсу или почти $3 тысячи за квадратный метр.
Напомним, на старте продаж такие квартиры в жилом комплексе в лесу продавали примерно за $100 тысяч по курсу, или по 3800 рублей за «квадрат».

Только до конца ноября — «Квартира + машиноместо в подземном паркинге со скидкой до 30%». Сдача домов в 2026 году. В акции участвуют:
• просторные трехкомнатные квартиры (от 98 м²) по цене от 4 320 BYN/м² с возможностью перепланировки в четырехкомнатные;
• эксклюзивные двухуровневые пентхаусы (от 80 м²) с панорамными видами.
Цена зафиксирована в BYN. Первый взнос от 0%. Ставка на первый год — от 7,34%. Срок кредитования до 20 лет.
Подробности по телефону +375 (29) 387-60-21, на сайте и в отделе продаж по адресу пр. Дзержинского, 19.
Есть о чем рассказать? Пишите в наш телеграм-бот. Это анонимно и быстро