23 метра, зато в Париже! Как вам такая маленькая квартира-трансформер?

 
15 966
06 октября 2025 в 14:30
БОЛЬШОЙ РОЗЫГРЫШ! Заказывай от 99 р. в приложении Каталог Onlíner до 31.01 и получи шанс выиграть призы от Dreame

Недвижимость в Париже — это что-то на богатом. Средняя цена метра в городе любви и романтики — около 10 000 евро. Даже скромную по метражу квартиру могут позволить себе лишь миллионеры. По этой причине во французской столице очень популярны малогабаритки. А еще там знают толк в дизайнерских ухищрениях, позволяющих разместить в маленькой «коробочке» все, что нужно для жизни. Студия Beth X Episteme доказала это на примере одного из своих проектов. 

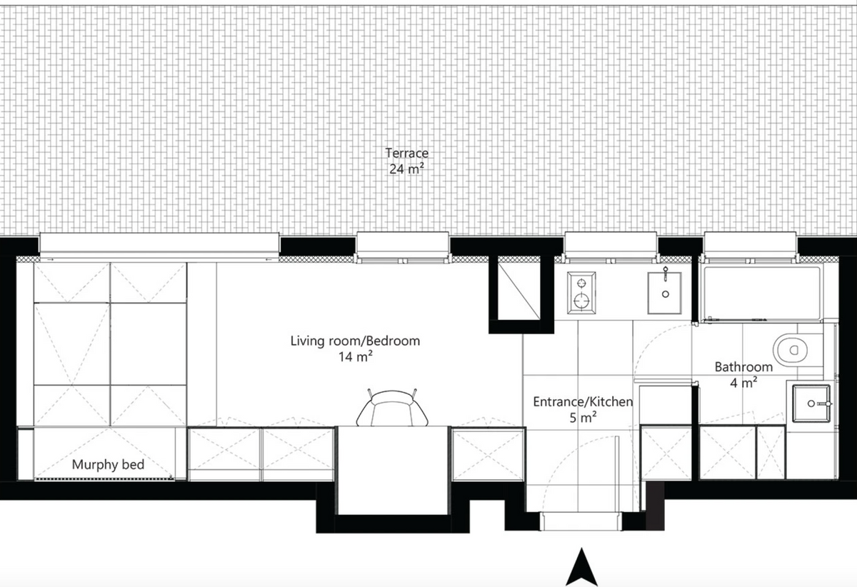
Площадь микростудии — всего 23 кв. м. Забавно, что она имеет террасу, площадь которой чуть больше самого жилого пространства. Но, как известно, на террасе жить не будешь. Пришлось умещать все необходимое внутри.

Дизайнеры зонировали территорию с помощью встроенных систем хранения и мебели-трансформеров. Вдохновением для них стала японская эстетика и стиль минимализм.

Центральный элемент в квартире — изготовленная на заказ приподнятая платформа из дерева окуме. Она служит многофункциональным ядром, вокруг которого разворачивается повседневная жизнь. Конструкция может превращаться в кровать, стол, зону отдыха. Внутри нее разместили места для хранения вещей.

Санузел:

— Каждый предмет в квартире спроектирован с учетом эффективности и гармонии, описывает получившийся интерьер портал interior.ru. — Книжная полка легко трансформируется в изголовье кровати, а выдвижной письменный стол убирается в модуль для хранения, когда не используется. Благодаря навесной кровати-трансформеру освободить пространство можно одним движением. 

Смогли бы вы жить в такой микростудии?

Чтобы сделать свой выбор, войдите или зарегистрируйтесь
Еще бы! Главное — в Париже
Ну уж нет, это клетка
Выбор покупателей
Onlíner рекомендует
отдельностоящая, стиральная машина, загрузка до 6 кг, отжим 1000 об/мин, глубина 44 см (с люком 49 см), энергопотребление A+++, прямой привод, 13 программ
Выбор покупателей
загрузка на 9 комплектов посуды, электронное управление, 5 программ, 44.8x55x81.5 см, черный цвет, сушка: стандартная (конденсация), индикация на полу: луч

Есть о чем рассказать? Пишите в наш телеграм-бот. Это анонимно и быстро