35 924
29 сентября 2025 в 8:00
Автор: Анастасия Данилович. Фото: Влад Борисевич

Битва дизайнеров. Создаем холостяцкую берлогу для харизматичного бизнесмена из Минска

Автор: Анастасия Данилович. Фото: Влад Борисевич

Новый герой «Битвы дизайнеров» мечтает о строгом мужском минимализме без лишней декоративности. Сдержанная цветовая гамма, аскетичная отделка и яркие акценты — так он видит свою идеальную квартиру. Два дизайнера предложили свои версии, как превратить обыкновенное жилье в новостройке в брутальную берлогу холостяка. А если вы тоже хотите поучаствовать в проекте (как дизайнер или заказчик), пишите на почту daa@onliner.by.

Пожелания заказчика

Константин купил квартиру в новостройке на Восточной совсем недавно — в качестве подарка самому себе на Новый год. По профессии он индивидуальный предприниматель, владелец бизнеса по прокату карнавальных костюмов и масок. Его офис находится недалеко от этого места, поэтому выбор локации был очевидным.

— Я люблю Советский район. Еще мальчишкой помогал дедушке выращивать урожай и продавать его на Комаровке. Тогда я решил: когда вырасту, буду жить в пешей доступности от рынка, — рассказывает Константин.

Квартира досталась мужчине в первозданном виде, такой, как ее сдал застройщик еще в 2017 году. Предыдущий владелец купил эти «квадраты» для сына, но тот так и не захотел возвращаться в Минск из Москвы. Константин же не смог пройти мимо такого объявления.

Площадь объекта — 66 квадратных метров. Планировка предполагает кухню-гостиную, спальню и два санузла. Но так как мужчина живет один, одно из помещений он решил отдать под гардеробную.

— Это очень удобно: зашел в квартиру и сразу же переоделся.

Однако кардинально менять планировку от застройщика владелец не собирается.

— Если говорить о стилистике, то мне хочется брутальный, мужской минимализм, но без ухода в лофт. Вижу здесь простой, но эстетичный интерьер с тактильно приятными поверхностями и деревянными элементами.

800 Вт, питание: аккумуляторный (18 В), 4700 ударов/мин, энергия удара: 3 Дж, аккумулятор в комплекте, 3400 г
Выбор покупателей
780 Вт, питание: сеть, 4500 ударов/мин, энергия удара: 2.7 Дж, 2600 г

Константин предпочитает лаконичную отделку. По всей квартире хотел бы уложить единым полотном кварцвинил под дуб, натянуть белые матовые потолки с теневым профилем и подсветкой. От плинтусов он планирует отказаться, также заменив их теневым профилем. Подоконники от застройщика собирается убрать, откосы и радиаторы закрасить в графитовый цвет. Ну а стены покрыть микроцементом.

— Мне близка концепция ваби-саби, джапанди, где ценится несовершенство и естественное старение материалов. Поэтому я не стремлюсь к каким-то идеально гладким поверхностям и стерильности.

Дизайнер Виктория Грузинова

Константин видит свою квартиру в серых оттенках, но готов рассмотреть и другие предложения. Он также не против ярких акцентов. Например, в гостиной можно расположить диван глубокого синего, зеленого или винного цвета, а в качестве декора использовать картины.

— В гостиной хочу сделать акцентную стену под камень или дерево, поставить не только диван, но и кресло с журнальным столиком, стеллаж для книг и сувениров. А еще я люблю выращивать растения, поэтому их должно быть много, чтобы было как в джунглях.

Есть у Константина и другие пожелания: предусмотреть место для компьютерного стола и аквариума с бойцовскими рыбками. А если получится вписать в интерьер паровой камин с эффектом пламени, будет вообще идеально.

— Кухню представляю компактной, вдоль одной стены: по моим расчетам, пространства хватит для всей необходимой техники, включая посудомойку и встроенный холодильник. Верхние шкафы — до потолка, чтобы было достаточно мест для хранения. На свободной стене — подсвеченная витрина для бокалов. Обеденный стол хочу небольшой и подвижный, размером 180 на 60 сантиметров, чтобы его легко можно было переставить в любую точку.

Дизайнер Людмила Голод

А вот со спальней хозяин пока не определился: видит там только кровать и шкаф.

— Больше ничего не придумал, так что открыт к предложениям дизайнеров.

С функционалом лоджии (попасть в нее можно из гостиной) Константин тоже еще не разобрался. Будет ли это место для хранения или зона отдыха? Вопрос открытый.

С санузлом все проще: мужчина планирует поставить душевую кабину, «столбик» с сушильной и стиральной машинами, а отделку выполнить без плитки, использовав микроцемент в сочетании с матовым полиуретановым лаком.

Что ж, посмотрим, что предложат собственнику наши дизайнеры.

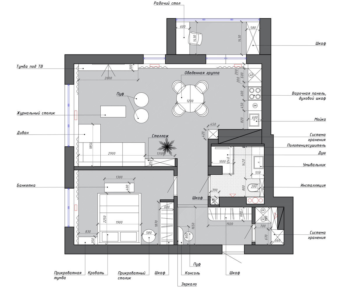
Дизайн-концепция №1

Дизайнер Виктория Грузинова из студии Archline считает, что в интерьере важно отразить личность и ценности заказчика.

— Эта квартира задумывалась для свободного, смелого и уверенного мужчины. Его характер отражается в строгости форм и смелых акцентах.

Основой концепции стали глубокие графитовые оттенки, дополненные натуральным деревом. А каменные стены, похожие на скалы, добавили интерьеру динамики.

— Цветовое решение выстроено так, чтобы объединять комнаты в единый объем: каждая зона имеет свои детали, но подчинена общей концепции.

Прихожая получилась одновременно функциональной и выразительной. Графитовая стена плавно перетекает в гардероб, а деревянные панели — в большое зеркало. Оно отражает свет из окон и визуально расширяет пространство.

Гостиная продолжает идею открытого пространства. Центральное место занимает обеденная зона с большим столом и мягкими стульями. Рядом — диван без подлокотников и ТВ-зона с каменной стеной, имитирующей горный пейзаж. Дополняют интерьер панели с текстурой дерева и трековые светильники, которые можно вращать в любом направлении и создавать свой сценарий освещения.

Здесь же нашлось место рабочей зоне: тумба под телевизором плавно перетекает в небольшой стол. Также дизайнер предусмотрела стеллаж с открытыми полками для сувениров и закрытый шкафчик для хранения других нужных вещей.

Кухня расположилась в нише (как и задумал застройщик). Благодаря единому цвету стен и потолка и переходящему на боковую поверхность фартуку из микроцемента она выглядит глубокой и объемной.

— В спальне я сделала небольшую перепланировку — сместила дверной проем, чтобы добавить места для хранения. Фокус внимания здесь направлен на еще одну скалистую стену. В отличие от динамичной гостиной ее рельеф более спокойный и уравновешенный. Пространство дополнено теплой текстурой дерева и светлым мягким текстилем, добавляющим легкости и воздушности.

В комнате вообще нет верхнего освещения, только мягкий свет по периметру и направленные светильники у изголовья, создающие уют и камерность.

— Еще одним важным элементом в спальне служит шкаф со стеклянными дверцами и подсветкой. По просьбе заказчика он стал витриной для коллекции его необычных футболок. Такое решение превращает систему хранения в выразительный элемент интерьера.

Ванная выдержана в общей концепции интерьера: стены и пол покрыты микроцементом, а акцентом стала фактурная скалистая стена с узким зеркалом и подсветкой. Утопленная раковина и встроенная техника делают пространство функциональным, а тропический душ в сочетании с каменной поверхностью создает иллюзию водопада. Мягкий свет из светового окна добавляет санузлу уюта и глубины.

— Это интерьер для человека, который ценит индивидуальность и готов к смелым решениям. Несмотря на небольшую площадь, пространство получилось многослойным и эмоционально выразительным. Здесь можно почувствовать защищенность, тишину и комфорт. При этом характер хозяина читается в каждой детали, — резюмирует Виктория.

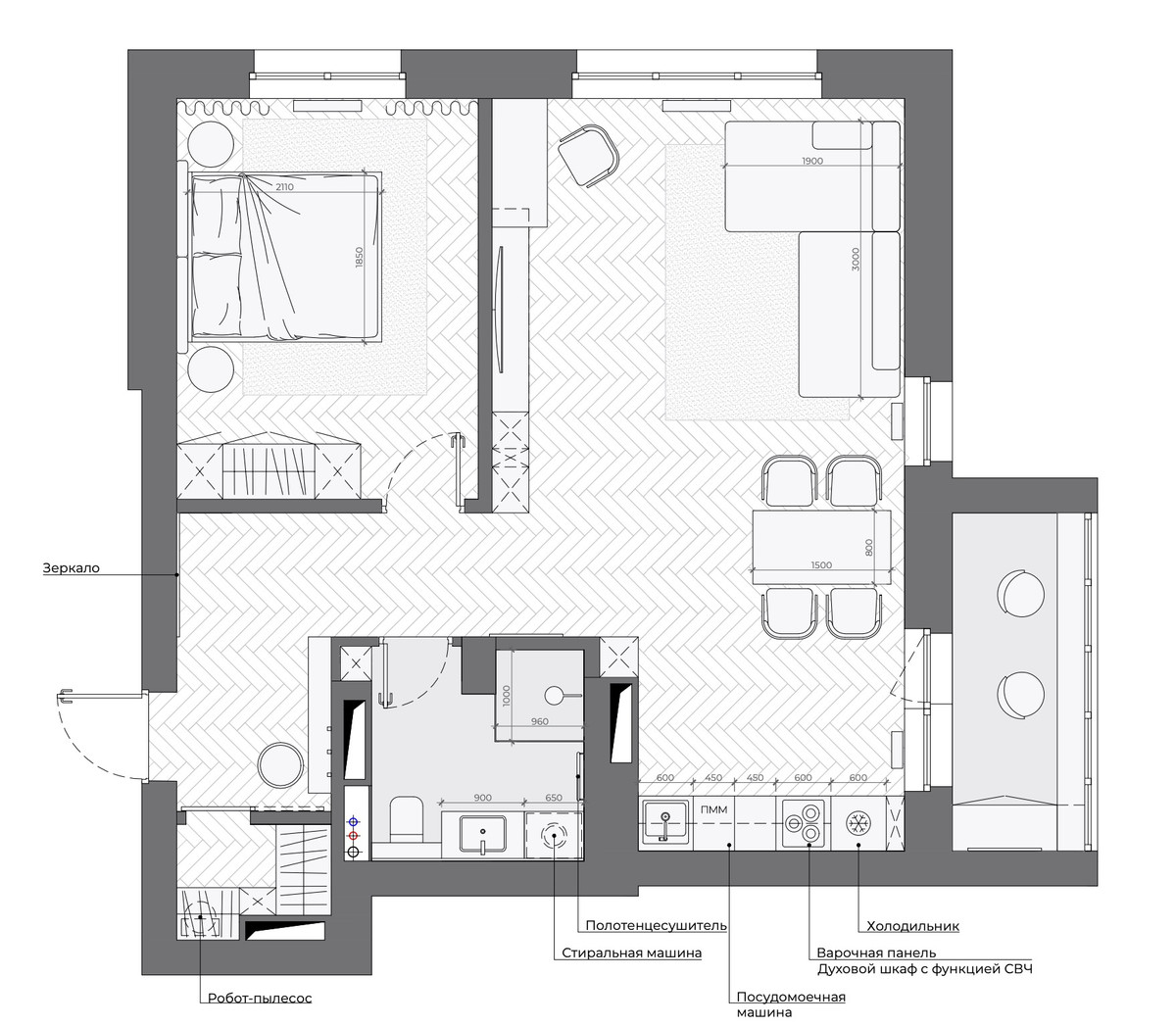
Дизайн-концепция №2

В основе проекта Людмилы Голод из Golod Design лежат строгость, минимализм и природность, дополненные нотками креативного авантюризма.

— Константин — предприниматель и разносторонний человек, поэтому интерьер для него должен быть сдержанным, но с элементами творчества, которые оживляют пространство.

Строгость в квартире выражена в геометрии и четких линиях, лаконичной мебели и продуманной организации пространства. Минимализм задает ритм: минимум декора, открытость планировки, встроенные системы хранения и едва ощутимые границы между зонами. Природность поддерживают натуральные материалы — дерево, камень, текстиль, зеленые акценты и даже аквариум, которому нашлось место на лоджии.

— Чтобы сбалансировать строгий и минималистичный фон, я добавила несколько креативных деталей: индивидуальную мебель с необычными формами и принтами, арт-объекты, яркие радиаторы и динамичные световые сценарии. Уже с порога внимание приковывает прихожая, в частности потолок с уникальным узором и большое зеркало напротив шкафа для верхней одежды, которое визуально расширяет пространство. У входа также расположен хозяйственный блок, где размещены стиральная и сушильная машины, чтобы освободить пространство в санузле.

В спальне сдержанная цветовая гамма и графичные линии мебели подчеркивают геометрию комнаты, а подвесной светильник становится декоративным акцентом. Для создания уюта предусмотрен проектор, который задает особую атмосферу по вечерам.

— Кухня из шпона выполнена без верхних шкафов, что делает ее визуально легче. Вместо них — открытые полки и бра. Отдельное место занимает витрина для коллекции вин заказчика. Обеденная зона состоит из массивного деревянного стола и мягких стульев.

В гостиной внимание привлекает диван с креативным принтом. Лаконичный стеллаж для книг и растений, торшеры и графичные линии светильников добавляют пространству динамики.

Санузел выполнен в микроцементе. Здесь преобладают приглушенные оттенки, есть встроенные системы хранения и подсветка в зоне душа, создающая камерную атмосферу.

подвесной, конструкция: без бачка, задний подвод воды, горизонтальный выпуск, двухрежимный слив, с сиденьем, безободковый
Нет в наличии
напольный, конструкция: моноблок, нижний подвод воды, горизонтальный выпуск, двухрежимный слив, с сиденьем, безободковый
Нет в наличии

На лоджии дизайнер разместила рабочий стол и аквариум, выдержав пространство в зелено-терракотовой гамме. Мобильная мебель позволяет легко трансформировать эту зону в место для отдыха с друзьями.

— Для меня было важно подчеркнуть индивидуальность заказчика. Строгость и минимализм дают ощущение порядка и чистоты, а креативные приемы и природные мотивы — ту самую свободу и живость, без которых невозможно представить его характер, — подытоживает Людмила.


А что о получившихся проектах думает сам заказчик?

— Оба дизайнера проявили себя очень творчески — искренне благодарю за вложенные усилия, — отметил Константин. — Хочется отметить работу Людмилы. Ее проект, начиная с прихожей, вызвал у меня яркие ассоциации с одним из моих любимых фильмов по произведениям Ильфа и Петрова — культовой экранизацией «12 стульев». Нестандартное художественное решение потолка и картина создали узнаваемую, слегка ироничную атмосферу, мгновенно пробудившую воспоминания о знаменитой сцене на теплоходе. Полосатый пуфик и диван добавили антураж, свойственный этой комедии, подчеркнув авторский стиль.

Тем не менее у Людмилы, на мой взгляд, возникла определенная сложность: не удалось разместить стиральную машину в санузле, из-за чего ее пришлось вынести в гардероб. Это привело к необходимости пожертвовать частью площади коридора ради отдельного шкафа, что снижает практическую ценность планировки.

Есть вопросы и к кухне: у меня не было мысли делать ее без верхних шкафчиков. Напротив, моим четким пожеланием было реализовать максимальное количество скрытых мест для хранения — чтобы сохранить минималистичный облик, но при этом обеспечить комфорт и порядок.

В целом мне ближе вариант Виктории. Он более сбалансирован и соответствует моим цветовым предпочтениям. Ее проект показался мне более продуманным и логичным с точки зрения эргономики — расстановка мебели и зонирование пространства выглядят удобнее и рациональнее. Спорным остается лишь расположение телевизора напротив окна: с практической точки зрения это будет создавать блики и дискомфорт при просмотре.

Я стремился к стильному минимализму и мужскому интерьеру, выдержанному в темно-серых и древесных тонах. Именно такой подход наиболее последовательно реализовала Виктория. В то же время я считаю, что не стоит стремиться к избыточной декоративности.

Громоздкая имитация скал в квартире — это непрактичная перегрузка, давно утратившая актуальность. Я не против натуральных фактур, но они должны быть сдержанными и уместными — достаточно одного лаконичного акцента, чтобы подчеркнуть стиль и не превращать квартиру в пещеру. Ведь это жилое пространство, а не арт-объект или декорация из фильма.

Я вижу большой потенциал в том, чтобы объединить лучшие решения обоих дизайнеров. Таким образом получится создать именно тот дизайн, в котором все будет полностью соответствовать моим желаниям. Ведь именно так рождаются интерьеры мечты: не в противопоставлении идей, а в их гармоничном сочетании.

А какой проект понравился вам?

Чтобы сделать свой выбор, войдите или зарегистрируйтесь
Первый
Второй

Есть о чем рассказать? Пишите в наш телеграм-бот. Это анонимно и быстро

Перепечатка текста и фотографий Onlíner без разрешения редакции запрещена. ga@onliner.by