31 марта 2025 в 11:00
Автор: Виктория Завадская. Фото: Александр Ружечка

«Планировки удачные, один балкон — 14 „квадратов“». Вот ты какой, новый ЖК от МАПИДа!

Автор: Виктория Завадская. Фото: Александр Ружечка
РАЗЫГРЫВАЕМ ИГРОВОЙ ПКСкачай приложение Каталога и нажми «Участвовать» до 21.06.2026

В северо-восточной части Минска, всего в двух шагах от ТЦ Expobel, разрастается один из самых симпатичных проектов от МАПИДа — ЖК «Солнечный». Сегодня малоэтажные домики на стилобате уже частично обжиты новоселами. Некоторые из будущих жильцов только заехали в квартиры, поэтому вовсю занимаются их обустройством. Есть и те, кто только присматривается к ЖК, но переехать пока не спешит. Напомним, «квадраты» здесь арендные и рассчитаны только на сотрудников госорганизаций, которые заключили договор долевого строительства с госзастройщиком. Съездили в поселок за МКАД, чтобы рассмотреть новый квартал поближе.

Сам ЖК еще не успел полностью оформиться: МАПИДу предстоит освоить огромный кусок земли размером в 22 га. Пока здесь полностью готовы только четыре дома, еще столько же — на этапе стройки. Башенные краны и другая техника прописались рядом с готовыми новостройками и, судя по отзывам некоторых жильцов, такое соседство их устраивает.

Напомним, по проекту в одноименном поселке за МКАД должен вырасти целый район, который вместит в себя многоквартирные дома, таунхаусы и коттеджи. Кстати, судя по бетонным силуэтам на участке, их строительство уже продвигается.

Четыре готовые новостройки стоят на стилобате. Под ними —просторный паркинг, который частично занят автомобилями. За эффектными вентфасадами из керамогранита прячется панелька, но непростая: «начинку» для нее производят на современной линии и собирают на стройке на болтовых соединениях, без сварки. Четыре дома в новом квартале уже готовы, а некоторые из них частично заселены. На очереди — еще три.

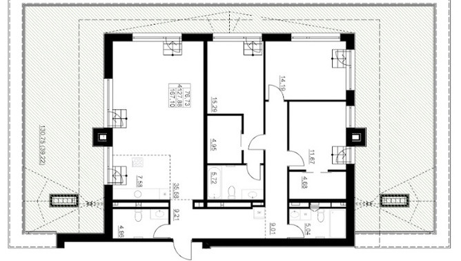
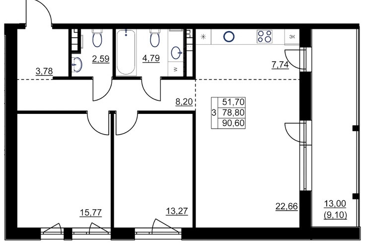
Новоселы, которые уже успели заселиться в арендные квартиры, на диалог шли неохотно. Одна из них, Ольга (имя изменено), все-таки решилась на минутную беседу и призналась: планировки здесь очень даже удачные. В ее трешке с площадью чуть больше 80 «квадратов» на первом этаже один балкон занимает более 10 метров. Бонусом к жилью им досталась холодная кладовка, а для тех новоселов, у кого есть автомобиль, — место в паркинге. Оно находится под стилобатом.

Ольга живет с семьей в новой квартире пару недель, поэтому в какую цену им обойдется ежемесячная оплата за аренду, пока не знает. Говорит, в любом случае выйдет дешевле, чем съемная квартира. Отделка в квартире уже была, поэтому супругам осталось только укомплектовать арендные «квадраты» мебелью.

Еще одна особенность малоэтажных домов в «Солнечном» — автономное электроотопление. В каждой квартире здесь стоит электрокотел, который отвечает за горячее водоснабжение, отопление и вентиляцию. Если говорить про планировки, студии в домах немаленькие — в среднем около 50 метров, правда, выделить в некоторых вариантах отдельную комнату проблематично (есть студии с одним окном).

65" 3840x2160 (4K UHD), матрица OLED (WOLED), частота матрицы 144 Гц, Smart TV (LG webOS), HDR10, Dolby Vision, Dolby Vision IQ, HLG, DTS:X, Dolby Atmos, AirPlay, Wi-Fi, смарт пульт

Двушки идут разного метража: есть по 60 и по 75 метров, трешки могут вместить целых 90 метров.

Пожалуй, самыми интересными вариантами жилья в квартале можно назвать пентхаусы площадью в 167 метров, 130 из которых занимает огромная терраса. К слову, судя по свету в окошке, элитные «квадраты» в одном из домов уже заняты.

Очевидные плюсы — в ЖК закрытые от машин дворики, оборудованные детские площадки и места для отдыха.

 

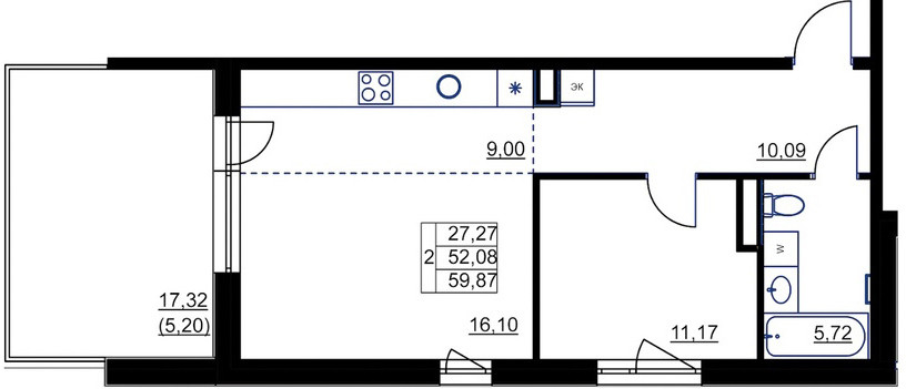
Если вам очень приглянулся ЖК, можно поискать в нем квартиры на вторичке. Например, одна из двушек с удобной планировкой и площадью в 60 метров за $105 тысяч по курсу уже засветилась в базе недвижимости. Вот как выглядела двухкомнатная квартира на 4-м этаже внутри.

По словам агента, жилье было полностью выкуплено собственником: теперь у него новый владелец. Такие предложения пока единичны, но самым быстрым может повезти.

Onlíner рекомендует
отдельностоящий, полный No Frost, электронное управление, класс A+, полезный объём: 348 л (254 + 94 л), зона свежести, перенавешиваемые двери, автодоводчик дверей, складная полка, выдвижной/подвесной контейнер, подставка-лоток для бутылок, лоток для яиц, 59.5x66x206.8 см, белый
Выбор покупателей
Onlíner рекомендует
отдельностоящая, стиральная машина, с паром, загрузка до 7 кг, отжим 1200 об/мин, глубина 45 см (с люком 49.5 см), энергопотребление (new) A, прямой привод, 14 программ, 6 Motion (LG)

Есть о чем рассказать? Пишите в наш телеграм-бот. Это анонимно и быстро.