«$650 000 — и она ваша». Нашли в Минске элитные квартиры с собственными саунами и не только

 
18 851
04 декабря 2023 в 14:30
БОЛЬШОЙ РОЗЫГРЫШ! Заказывай от 99 р. в приложении Каталог Onlíner до 31.01 и получи шанс выиграть призы от Dreame

Представьте такую ситуацию. Зима. Вы возвращаетесь в свою квартиру после работы. Раскрасневшиеся от холода и крайне уставшие. Чего бы вам хотелось в этот момент? Чего-нибудь горяченького? А что, если мы скажем, что вы можете сразу же отправиться в собственную сауну и хорошенько попариться? Это вполне реально сделать даже в Минске, ведь мы нашли для вас несколько жилых объектов, в которых есть та самая «тайная комната».

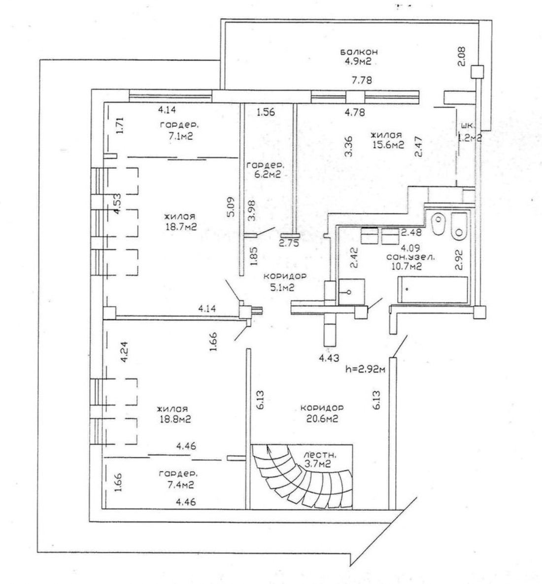
Начнем с самого дешевого варианта за $214 900 в эквиваленте. Это двухэтажная квартира площадью 165,7 «квадрата». Находится она в монолитном доме 2002 года на улице Притыцкого. До станции метро «Пушкинская» можно дойти пешком. Важный момент: потолки здесь больше 3 метров, так что вы будете ощущать себя словно в сталинке.

Первый этаж занимает гостиная (с камином, пусть и декоративным), объединенная с кухней и столовой. Еще здесь есть гостевая комната, которую можно переоборудовать в кабинет или спальню. Ну и, конечно, санузел.

На втором этаже располагаются сразу три спальни (две из них — с гардеробными) и гвоздь программы — своя сауна с купелью!

По словам собственников, в квартире выполнен качественный ремонт, а вся мебель и техника, которая есть на фото, достанется новым владельцам.

Следующий объект можно найти на улице Захарова, в 15 минутах ходьбы от станций метро «Площадь Победы» и «Пролетарская». Вокруг сразу несколько парков. Скрывается четырешка в высотке 2004 года, в подъезде работает консьерж.

Размер квартиры — 151,3 кв. м. Состоит она из просторной кухни (17 «квадратов»!), гостиной, спальни, двух детских комнат. Так что подойдет для семьи с несколькими детьми.

Также в четырешке есть два санузла, один из них — с сауной!

Внутри выполнен достаточно неплохой ремонт — можно сразу заехать и жить. Обойдется такой переезд в $234 900 по курсу.

Последняя (но не по значимости) квартира удивит вас еще больше. Отыскать такую можно в Уручье, в доме 2005 года постройки на улице Городецкой. Пентхаус занимает последние два этажа и 316,4 «квадрата».

Вот как описывает ее хозяин: «Здесь переплелись классический и современные стили, богатство и шик с красотой и удобством! Все, буквально все, работает для максимального комфорта владельцев и их гостей!»

А теперь к деталям. Интерьер сделан с привлечением дизайнера и обставлен эксклюзивной антикварной мебелью. Есть камин, два больших аквариума с экзотическими рыбами, дровяная печь на кухне (если вдруг вы любитель подобных раритетов) и витражное окно, изготовленное на заказ, огромная терраса площадью 74 кв. м и, конечно, сауна.

«Бытовая техника и сантехника из Германии, Италии и Испании, шторы, люстры, бра, вся „электрика“ итальянского производства. Швейцарский паркет из ценных пород дерева, эксклюзивная итальянская плитка…», — дополняет он.

К квартире прилагается и два места на подземном паркинге. Сколько стоит все это добро? $650 000 в эквиваленте.

Есть о чем рассказать? Пишите в наш телеграм-бот. Это анонимно и быстро