В этой многоэтажке из 90-х все квартиры — трехуровневые. Смотрим на жилье, которое там продается

 
29 марта 2023 в 15:48
Источник: Надежда Конон
Источник: Надежда Конон
БОЛЬШОЙ РОЗЫГРЫШ! Заказывай от 99 р. в приложении Каталог Onlíner до 31.01 и получи шанс выиграть призы от Dreame

По адресу Денисовская, 9 в Минске есть уникальная многоэтажка, в которой все квартиры трехуровневые. Несколько лет назад мы делали оттуда большой репортаж. Прямо сейчас в базе «Дома и квартиры» есть три предложения из необычного дома. Смотрим, как там обустроены квартиры и почем их сегодня продают. 

Дом по Денисовской, 9 был построен в 1996-м. Многоэтажка выглядит массивно, но в ней только один подъезд. Место любопытное: рядом улица Маяковского, Свислочь, Лошицкий парк, крупный торговый центр.

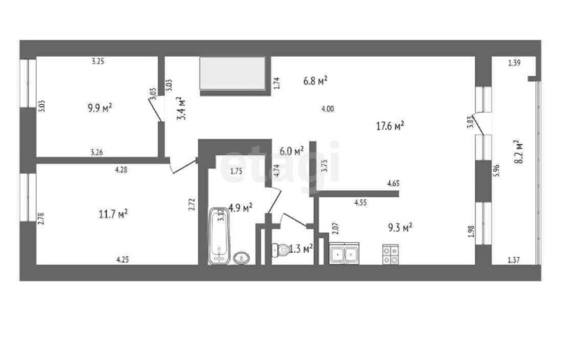
Одну из трешек продают за $90 000 по курсу. Общая площадь — 82,6 «квадрата», жилая — 39,4. Метраж кухни — 8,8. В объявлении сказано, что объект находится на втором этаже, но этаж в этом доме — понятие относительное, это стоит держать в уме.

Мебель в квартире есть. На первом уровне расположились прихожая с гардеробной, на втором — две изолированные спальни, на третьем — гостиная с лоджией, санузел и кухня. Судя по фото, санузел совмещенный.

Повыше за похожие деньги ($95 000 по курсу) предлагают квартиру на 74,4 «квадрата» общей площади (жилой — 36,5). Кухня просторная — почти 11 метров. Высота потолков — 2,46 метра.

Автор объявления отмечает, что в прихожей стоит металлическая дверь, в квартире установлены деревянные стеклопакеты. Межкомнатные двери — из массива, на полу паркет. Есть встроенная кухня с бытовой техникой, мебель готовы оставить по договоренности.

И напоследок вариант подороже. За трешку на верхних этажах просят $111 250 по курсу.

Общая площадь — 78,2 «квадрата», жилая — 39,2, кухня занимает 9,3 метра. В гостиной, кухне, санузле и коридоре пол с подогревом. Есть система видеонаблюдения, также в квартире обещают качественную шумоизоляцию.

Onlíner рекомендует
8 ГБ GDDR6, 1830 МГц / 2670 МГц, 3072sp, 24 RT-ядер, трассировка лучей, 128 бит, 2 слота, питание 8 pin, HDMI, DisplayPort

Наш канал в Telegram. Присоединяйтесь!

Есть о чем рассказать? Пишите в наш телеграм-бот. Это анонимно и быстро