До $55 000 по курсу. Показываем двухкомнатные квартиры, которые сейчас продают в Минске

 
04 января 2022 в 14:44
Выиграй модный аэрогриль! Покупай в приложении с доставкой Príme и получай шанс выиграть аэрогриль Roome

Продолжаем искать в базе Onlíner «Дома и квартиры» жилье в Минске, которое своим ценником не повергнет в шок среднестатистического белоруса (ну или хотя бы повергнет не слишком). На этот раз показываем двушки не дороже $55 000 в эквиваленте.

$47 900 по курсу

Столько стоит двушка в кирпичном доме на улице Мичурина. Площадь — 40,2 кв. м. Высота потолков — почти 3 м. В квартире, как и в самой хрущевке, сделан ремонт.

В шаговой доступности детские сады, гимназия, музыкальная школа, бассейн, аптеки и магазины. Недалеко станция метро «Могилевская».

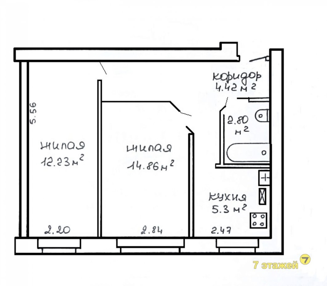
53 000 у. е.

Такую сумму просят владельцы квартиры в кирпичной девятиэтажке на улице Куприянова. Размер — 38,5 «квадрата». На этих скромных метрах уместились две комнаты, разделенные между собой перегородкой, — в одной располагается спальня с крохотной рабочей зоной, во второй можно организовать гостиную. Кухня новенькая, со всей необходимой встроенной техникой, включая посудомоечную машину. В ванной заменена вся сантехника и трубы.

Рядом с домом школа, детский сад, поликлиника, фитнес-центр и магазины. Близко станции метро «Грушевка» и «Молодежная».

$54 000 в эквиваленте

Еще одна квартира продается в хрущевке 1960 года постройки на улице Волоха. Все комнаты, кроме санузла, пережили косметический ремонт, так что выглядят вполне прилично. Особенно радует кухня, где в целях экономии вместо стола используется подоконник — рациональное и современное решение.

Площадь — 42,1 кв. м.

Дом окружен скверами (один из них с небольшим водоемом), социальной инфраструктурой. Находится близко к центру города.

54 900 у. е.

Это цена двушки в пятиэтажке 1962 года на улице Каховской. Размер — 42,6 «квадрата». Довольно симпатичное, уютное жилье: на полу — ламинат и линолеум, на стенах — декоративная штукатурка, часть мебели выглядит новой.

Все блага цивилизации, от школ до кафе, в наличии. Любителям утренних пробежек точно понравится близость Киевского сквера.

$55 000 в эквиваленте

Имея такое количество условных единиц на счете, можно рассчитывать на жилье в блочном доме 1962 года в Дубравинском переулке. Размер — 43,9 кв. м. Подойдет для семьи с ребенком: одна из комнат оборудована под детскую.

Возле дома школа, сквер, детская поликлиника и торговый центр.


напольное размещение, металл/пластик, колесики, 83x43x168 см

Наш канал в Telegram. Присоединяйтесь!

Есть о чем рассказать? Пишите в наш телеграм-бот. Это анонимно и быстро