Жизнь в капсулах: как в Японии попытались изобрести новую архитектуру

28 ноября 2018 в 8:00
Автор: darriuss. Фото: flickr.com, Wikimedia, pininterest.com

Жизнь в капсулах: как в Японии попытались изобрести новую архитектуру

Автор: darriuss. Фото: flickr.com, Wikimedia, pininterest.com
БОЛЬШОЙ РОЗЫГРЫШ! Заказывай от 99 р. в приложении Каталог Onlíner до 31.01 и получи шанс выиграть призы от Dreame

Оказавшись после окончания Второй мировой войны в проигравшем лагере, с лежавшими в руинах городами и миллионами бездомных на их улицах, японцы принялись мучительно искать свою новую идентичность. Как обычно в этой стране, процесс носил глубоко своеобразный характер. С середины 1950-х на островах империи началось массовое строительство сборных домов, тех самых, которые после продажи с каждым днем становились дешевле. Но у революции на рынке местной недвижимости примерно в те же годы была и другая сторона, куда более футуристическая. Группа японских архитекторов всерьез задумалась о строительстве грандиозных мегаструктур, которые фактически представляли бы собой «город в городе». Люди бы при этом обитали во временных ячейках-капсулах, крепившихся к постоянному каркасу из бетона и стали. Первые экспериментальные здания в рамках этой концепции даже успели построить. Onliner рассказывает о красивой утопии, опыте, закончившемся неудачей.

Рождение метаболизма

Спустя десятилетие после поражения во Второй мировой в Японии сложилась парадоксальная ситуация. С одной стороны, страна крайне удачно воспользовалась Корейской войной, первым следующим крупным конфликтом, в ходе которого напрямую столкнулись бывшие союзники по антигитлеровской коалиции. Империя наладила активную поставку собственных товаров американской армии, что позволило ей уже в 1952 году восстановить довоенный уровень промышленного производства и заложить основу феномена, в будущем получившего название «японского экономического чуда».

С другой стороны, на островах миллионы людей были по-прежнему лишены собственного крова. Жилищный кризис был очень острым, но из-за постоянной угрозы землетрясений власти предпочитали стимулировать строительство малоэтажного жилья, что, в свою очередь, ложилось дополнительным грузом на экономику. Из-за особенностей рельефа лишь малая часть территории страны была пригодна для ведения сельского хозяйства, но при этом из-за бесконтрольного возведения небольших домиков их районы стихийно расползались, занимая дефицитные «земли сельхозназначения» (столь важные для мировоззрения и некоторых белорусов). Активная урбанизация и рост городских агломераций требовали от архитекторов новых идей, позволивших бы решить жилищную проблему в условиях недостатка свободных пространств.

Дополнительный отпечаток на все это накладывал и ментальный кризис. Многие жители страны вновь начали задаваться вопросом, что такое «быть японцем» на фоне произошедшей грандиозной военной катастрофы, как должны трансформироваться национальные традиции, образ жизни после атомных бомбардировок, гибели 2,5 млн собственных граждан и ответственности за смерть еще большего количества жителей других стран.

К концу 1950-х группа молодых японских архитекторов, среди которых были и будущие классики мирового масштаба, предложили свой ответ на все эти вопросы, по крайней мере в части, касающейся их профессиональной сферы деятельности. И этот ответ был одновременно и вызывающе авангардным, и основанным на тысячелетних национальных представлениях о прекрасном.

В 1960 году на Всемирной конференции дизайна в Токио Киенори Кикутакэ, Кэндзо Тангэ (будущий лауреат Притцкеровской премии — «архитектурной Нобелевки»), Кисе Курокава и Фумихико Маки (еще один будущий притцкеровский лауреат) опубликовали подготовленный ими манифест под названием «Метаболизм: Предложения для нового урбанизма». В основу концепции было положено представление о здании как о живом организме, постоянно меняющемся и развивающемся. Киенори Кикутакэ, основной идеолог течения, писал: «Безусловно, непросто кратко определить все то, о чем я размышлял, создавая эту теорию. Для меня в понятии „метаболизм“ самым важным была возможность перестройки сооружения и замены его составляющих в соответствии с требованиями, которые предъявляет наш быстроизменяющийся мир». Сам термин «метаболизм» при этом был заимствован из биологии — так ее принципы, пожалуй, впервые были адаптированы к архитектурному контексту.

Но при всей новизне такого подхода авторы концепции для организации в ее рамках пространства одновременно заимствовали традиционные для Японии принципы, основным элементом которых являлся татами (мат для застилания пола жилища). Татами, важнейший объект для национального дома, выступал в качестве своеобразного модуля строго определенной формы и площади, на базе которого и организовывалось пространство.

Капсульная жизнь

Уже к моменту выпуска своего манифеста в 1960 году у новоявленных метаболистов существовал конкретный пример воплощения разработанных ими теоретических принципов. В 1958-м Киенори Кикутакэ закончил строительство собственного дома, получившего название Sky House. Он представлял собой комнату-платформу, установленную на четырех пилонах. Все дополнительные помещения (например, кухня, ванная комната) представляли собой модули, подвешенные к этой единой платформе, и могли сниматься или, наоборот, устанавливаться назад в зависимости от возникновения соответствующей необходимости. Например, в случае рождения ребенка семья могла добавить к такому зданию детский модуль и убрать его, когда ребенок вырастал и уезжал из родительского дома.

Даже в такой микроформе Sky House выражал основную идею метаболизма: здание перестраивалось в зависимости от предъявляемых к нему требований, но, конечно, таким небольшим масштабом идеи авторов концепции не ограничивались.

Все в том же манифесте 1960 года один из его авторов Фумихико Маки впервые сформулировал термин «мегаструктуры». Ими были названы грандиозные сооружения, в которых мог разместиться целый город (или его крупная часть). Коллега Маки Киенори Кикутакэ, к примеру, предложил проект города-башни — 300-метровой мегаструктуры, которая вела бы фактически автономное существование. Такое здание воспринималось метаболистами как архитектурное воплощение дерева, на бетонное основание которого («ствол», где была сосредоточена вся инженерная и обслуживающая инфраструктура) навешивались бы жилые капсулы. Капсулы при этом производились индустриальным методом на специальном заводе, который был частью всего комплекса. Кикутакэ при этом предполагал, что каждые 50 лет набор таких модулей обновлялся бы, что еще больше роднило бы мегаструктуру с живым организмом.

C помощью мегаструктур метаболисты и предлагали решить жилищную проблему в условиях недостатка свободных территорий. Для города-башни или даже нескольких сооружений такого рода требовалось значительно меньше места, чем для малоэтажной застройки на то же количество жителей. Более того, архитекторы из этой группы разработали и проекты строительства мегаструктур там, где люди раньше вовсе не жили, например в открытом море. Однако концепты всех этих Marine City и Ocean City при всей их внешней эффектности по причине своей утопичности так и остались лишь эффектными бумажными проектами, образцами романтического ретрофутуризма конца 1950-х — 1960-х годов.

Однако у метаболистов были и реализованные проекты, конечно, не такие масштабные, но достаточно точно отражавшие их базовые воззрения. Во второй половине 1960-х почти одновременно в Токио и в Кофу были сданы два здания, созданные Кэндзо Тангэ. В Кофу этот выдающийся архитектор построил Центр коммуникаций — комплекс, в котором должны были разместиться редакция одной из местных газет, типография, офис теле- и радиостанции. Такая многофункциональность идеально подходила для иллюстрации преимуществ теории, разработанной Тангэ и его коллегами.

Каркас здания составляли 16 полых железобетонных колонн разной высоты, в которых были сконцентрированы общие для всех обитателей центра коммуникации (лифты, лестницы, инженерная инфраструктура). В эту созданную решетку были вставлены модули-«пеналы», организованные по функциональному принципу. Так были выделены зона типографии, зона редакции, зона телеканала и так далее. При этом в решетке остались свободные ячейки, которые начали использоваться для рекреационных общих пространств (садов), но могли быть при необходимости заполнены дополнительными модулями. Точно так же и старые модули могли быть по требованию заменены на иные, с новым функциональным назначением.

Параллельно в Токио Тангэ строил информационный центр «Сидзуока». Расположение в самом центре столицы, в районе Гиндза, имело свои особенности, продемонстрировавшие преимущества метаболизма. Тангэ работал с небольшим и неудобно расположенным участком площадью 189 квадратных метров. Принцип организации остался тем же. Архитектор поставил на площадке колонну-сердечник (в данном случае всего одну) диаметром 7,7 метра, внутри которой разместились вертикальные коммуникации. На эту опору, как ветки с листьями, были смонтированы капсулы с офисными помещениями, а их асимметричное размещение еще добавило сходства с деревом. В центре «Сидзуока» также оставались резервные пространства для дополнительных модулей, которые могли быть использованы для увеличения полезной площади башни.

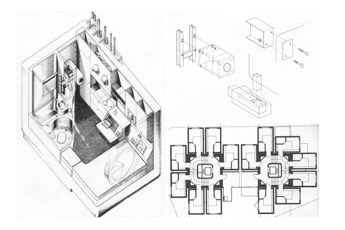
Но, пожалуй, самым известным образцом метаболизма стала построенная в той же токийской Гиндзе капсульная башня «Нагакин». Ее спроектировал Кисе Курокава все по той же схеме дома-«дерева». На его двух «стволах» (11 и 13 этажей соответственно) расположилось 140 жилых ячеек, изготовленных на предприятии, занимавшемся производством морских контейнеров. Собственно, контейнеры они больше и напоминали: капсулы длиной 4 метра и шириной 2,5 метра крепились к опорам всего лишь четырьмя болтами, независимыми друг от друга, и могли заменяться, удаляться, обновляться и объединяться.

Модули при этом были меблированы и укомплектованы бытовой техникой уже на предприятии-изготовителе. Курокава смог оптимальным образом организовать внутреннее пространство, в котором нашлось место не только для кровати, рабочей зоны и шкафов, но и для санузла, размерами напоминавшего туалет самолета, но оборудованного даже ванной. Для связи с внешним миром было предусмотрено окно-иллюминатор диаметром 1,3 метра.

Площадь квартир была рассчитана на одного человека (хотя порой внутри помещались даже семьи), обычно относительно молодого «белого воротничка». Иногда ячейку в «Нагакине» покупали как второе, «городское» жилье: трудоголики-японцы часто работали допоздна и порой просто ленились возвращаться для ночевки в пригород. Имеющегося пространства, в общем-то, хватало: жители крупных городов страны привыкли к неприхотливой жизни в условиях микроквартир. Однако при всей своей революционности башня «Нагакин» стала не только вершиной, но и лебединой песней метаболизма.

Это здание благодаря отдельному производству ячеек-капсул построили в 1972 году всего за 30 дней. К этому времени увлечение идеями метаболистов в Японии и мире уже сходило на нет. В мире разгорался энергетический кризис, положивший конец японскому экономическому чуду, а вместе с ним и утопическим проектам предыдущего десятилетия. Основная идея авторов манифеста 1960 года (о перманентном обновлении зданий как их неотъемлемом качестве) оказалась никому не нужна. В процессе эксплуатации выяснилось, что это дорого и неэффективно. Проще снести объект и построить на его месте новый, чем японцы с удовольствием и занимались.

Та же капсульная башня «Нагакин» принялась крайне быстро деградировать. Ячейки-модули протекали, инженерные сети разрушались, асбест, использовавшийся в конструкции здания, был признан канцерогеном. Уже в 2007 году, всего через 35 лет после завершения строительства, жильцы башни проголосовали за ее снос (в общем-то, типичный для страны жизненный цикл постройки). Большинство капсул опустели и были заброшены.

Однако сноса, к счастью, так и не случилось. В последнее время со всплеском интереса к архитектуре второй половины XX века капсульные эксперименты метаболистов, чьей иконой и является башня «Нагакин», получили второе дыхание. Энтузиасты принялись выкупать заброшенные жилые ячейки этой «машины для жизни», реновировать их, порой даже восстанавливая оригинальный интерьер, и всячески препятствовать возможному уничтожению культового здания. Через четыре года оно достигнет полувекового возраста, необходимого для включения в список историко-культурного наследия, а далее можно ожидать и его комплексную реконструкцию.

Реализованные эксперименты метаболистов так и остались единичными опытами, но во второй декаде 2018 года они превратились в источник вдохновения и для многих современных проектов модульных домов. Мегаструктуры, дома-города остались утопией, а вот попытки изобрести дешевое, быстровозводимое, мобильное жилье в условиях мегаполисов все так же актуальны.

Читайте также:

Наш канал в Telegram. Присоединяйтесь!

Быстрая связь с редакцией: читайте паблик-чат Onliner и пишите нам в Viber!

Перепечатка текста и фотографий Onliner без разрешения редакции запрещена. nak@onliner.by