Квартира как белое полотно. Жили бы в такой минималистичной сталинке?

 
6840
29 января 2026 в 11:01
БОЛЬШОЙ РОЗЫГРЫШ! Заказывай от 99 р. в приложении Каталог Onlíner до 31.01 и получи шанс выиграть призы от Dreame

Квартиры, расположенные в минских сталинках, — это буквально рай для дизайнеров. Высокие потолки, просторные комнаты и широкие коридоры дают возможность реализовать любые задумки. Очередное эстетичное пространство продается в доме возле плошади Победы. Эта двушка выглядит как белое полотно художника, на которое нанесли мазки в виде элементов мебели, картин и зелени. Жили бы в такой?

Квартира располагается в кирпичном доме 1959 года постройки на улице Козлова, 6. Это величественного вида пятиэтажка, жилье в которой имеет потолки высотой в три метра.

— Дом, построенный по индивидуальному проекту, характерному для послевоенной застройки Минска, излучает надежность и особый шарм, — красиво расписываются его преимущества в объявлении.

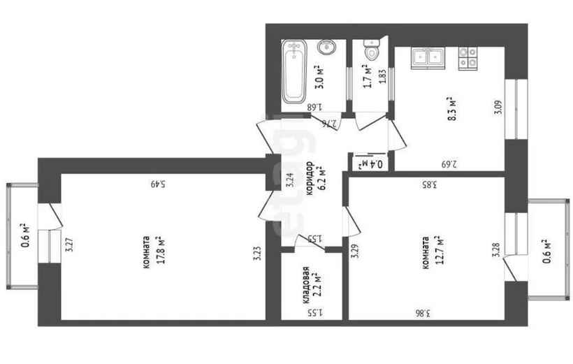
Площадь двушки — 53,5 кв. м. Пространство грамотно разделили аж на две жилые комнаты, кухню, санузел и кладовую. Есть также два балкона, выходящих на разные стороны.

Очевидно, здесь прошел основательный ремонт. Выбирая дизайн интерьера, владельцы остановились на сочетании кипенно-белых ровных стен и акцентного наполнения.

Риелтор пишет:

— Квартира прошла капитальный ремонт с использованием дорогих и качественных материалов. Каждый сантиметр пространства продуман до мелочей, обеспечивая максимальную функциональность и эстетику без потери полезной площади. 

Полностью меблирована и оснащена всей необходимой современной техникой, готова к вашему немедленному заселению.

Стоимость квартиры — $195 900. Получается, каждый метр оценен примерно в $3660.

— Квартиры в домах такого формата в центре Минска всегда пользуются высоким спросом и являются ликвидным активом, — отмечается в объявлении.

Как вам такая белоснежная квартира?

Чтобы сделать свой выбор, войдите или зарегистрируйтесь
Класс, умиротворяет
Слишком аскетично

Есть о чем рассказать? Пишите в наш телеграм-бот. Это анонимно и быстро