Из двухэтажки — в стильную «стекляшку». Каким будет здание на Грушевке после реконструкции

 
21 303
21 ноября 2025 в 10:35
БОЛЬШОЙ РОЗЫГРЫШ! Заказывай от 99 р. в приложении Каталог Onlíner до 31.01 и получи шанс выиграть призы от Dreame

У старой кирпичной двухэтажки на Щорса, 15, стоящей в самом центре оживленной и без устали застраиваемой Грушевки, интересная судьба. Такие объекты обычно сносят, чтобы освободить ценную площадь под жилье. Но в данном случае было решено произвести не снос, а реконструкцию. Как будет выглядеть здание после завершения работ?

Напомним, каким дом на Щорса, 15, был раньше: скатная крыша, кирпичные фасады. В помещениях работали небольшие бытовые организации.

Выбор покупателей
питание: аккумуляторный, Li-ion, 1400 об/мин, напряжение аккумулятора: 18 В, ёмкость аккумулятора: 2 А·ч, аккумулятор в комплекте, 1200 г
1050 Вт, питание: сеть, 4300 ударов/мин, энергия удара: 3 Дж
диаметр диска: 125 мм, 0–9000 об/мин холостого хода, регулировка скорости оборотов, питание: аккумуляторный (18 В), аккумулятор в комплекте

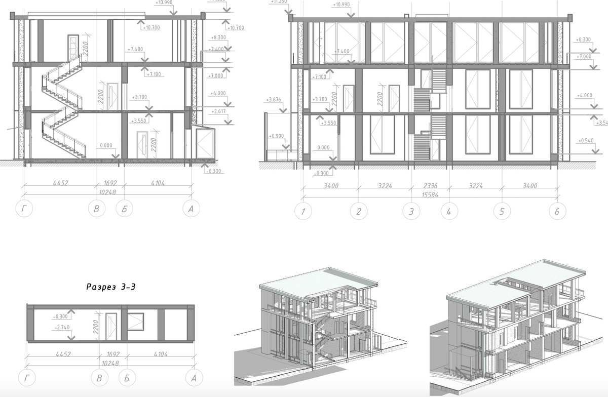
Здание начало менять свой внешний вид давно — как минимум с 2023 года. Но работы идут не то чтобы активно. Что сделано на данный момент? Возведен дополнительный третий застекленный этаж, заменены окна, утеплен фасад.

Обновленные рендеры размещены в материалах общественного обсуждения архитектуры объекта, которое пройдет с 24 ноября по 12 декабря 2025 года. Заказчиком реконструкции значится компания «Дружба-аренда».

Эскизы разработала компания ASense/room: белоснежные кирпичные фасады, графитовые вставки, стеклянный этаж с террасой по периметру, стильная входная группа. А на крыше можно заметить отверстие, похожее на небольшой атриум.

Что именно откроется в новой кирпично-стеклянной трехэтажке, пока умалчивается. Можно судить лишь по этой строчке:

— Проектом предусматривается организация торгового зала за счет сноса межкомнатных перегородок и организация помещений с учетом назначения и рационального использования площадей.

Планировка внутри:

Осталось дождаться финиша модернизации и наконец-то узнать, что же откроется в обновленных стенах. А пока минчане могут высказать свое мнение насчет архитектуры здания. Замечания и предложения администрация Московского района принимает в письменной форме либо на электронный адрес.

дисковая (циркулярная), 1300 Вт, питание: сеть, диаметр диска: 185 мм, 5300 об/мин
Onlíner рекомендует
строительный, сеть, потребление: 1000 Вт, без регулировки мощности

Есть о чем рассказать? Пишите в наш телеграм-бот. Это анонимно и быстро