В Минске на аукционе продают готовые однушки по $1300 за «квадрат». Удивитесь, но без ажиотажа

 
36 472
15 октября 2025 в 15:39

На электронной торговой площадке «ИПМ-Торги» в продаже появилась партия квартир в высотке на ул. Купревича, 16. В том самом доме, о котором мы писали не раз. Стартовые цены на ходовые однушки в готовой новостройке весьма заманчивые, но, судя по количеству заявителей, ажиотажа на них нет. Рассказываем, какие варианты жилья и за сколько предложил госзастройщик.

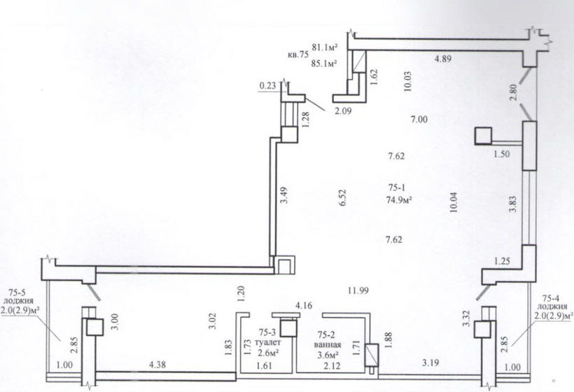
На этот раз Минский домостроительный комбинат предложил всем желающим восемь лотов: шесть трешек общей площадью от 80 до 91 метра и две однушки по 47,5—48 «квадратов». Если верить описанию к лотам, бо́льшая часть предложенных квартир находится на самом верхнем, 16-м, этаже. Стартовые цены на них снижены с 10 до 25%.

Так, например, трехкомнатная квартира размером в 81 «квадрат» продается за 284 220 рублей, или почти $96 тысяч по курсу. Пока претендентов на ее покупку нет, поэтому есть возможность приобрести жилье по стартовой цене, плюс придется оплатить затраты.

На самые ходовые нынче однушки ценник снизили сразу на 25%. Обе почти одинаковые по площади и цене. Их отдают по начальной стоимости около $63 тысяч по курсу. По нынешним меркам квадратный метр при наличии одного претендента обойдет около $1300 по курсу. Правда, на каждый из этих лотов уже нашелся желающий, поэтому побороться за однушку все-таки придется.

Старт торгов по всем заявленным квартирам намечен на 21 ноября. Заявку на участие в аукционе можно подать до 20 ноября.

Напомним: на покупку новостроек до конца этого месяца действует спецпредложение от «Беларусбанка».

Есть о чем рассказать? Пишите в наш телеграм-бот. Это анонимно и быстро