Кому однушку в центре Минска? В модном ЖК «Андреевский» предложили студии

 
20 681
02 мая 2025 в 11:55
Автор: Виктория Завадская. Фото: «Минскстрой»
Автор: Виктория Завадская. Фото: «Минскстрой»

«Минскстрой» активно возводит новый модный квартал на пересечении улиц Захарова и Андреевской. Напомним: когда-то на этом месте стояли производственные цеха «Минскдрева», которые сровняли с землей буквально за год. Стройка на этом участке земли идет в бодром темпе: в первой высотке рабочие уже добрались до 12-го этажа из 18-ти, во второй — аж до 9-го уровня. Чем не повод присмотреться к однушкам, которые застройщик предложил в новом столбике ЖК «Андреевский»? Рассказываем, в какую цену обойдется «квадрат» в очередной высотке недалеко от площади Победы.

Выбор покупателей
питание: аккумуляторный, Li-ion, 1400 об/мин, напряжение аккумулятора: 18 В, ёмкость аккумулятора: 2 А·ч, аккумулятор в комплекте, 1200 г

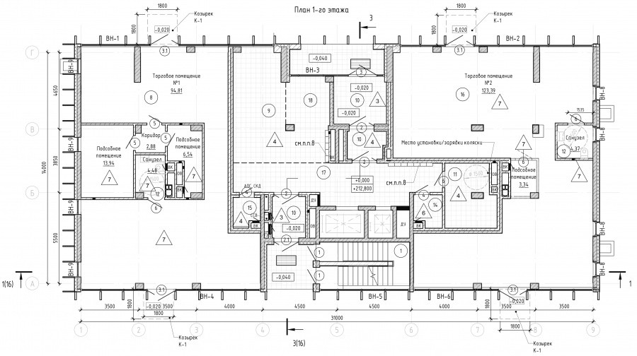
Вторая новостройка вытянется на 17 этажей и будет состоять из одного подъезда. В нем запроектировано 96 квартир разной площади. Каждая из них идет с застекленной панорамной лоджией. Среди них есть студии, двушки и одна двухуровневая трешка. На первом этаже жилого дома предусмотрены два лифта, ресепшен, лобби, колясочная и лапомойка. Часть помещений с трехметровыми потолками и отдельными входами отвели под коммерцию.

Дом возводят в монолитном каркасе. Наружные стены в нем будут выполнены из керамзитобетонных блоков и утеплены минераловатными плитами. Снаружи первые три этажа высотки облицуют декоративной плиткой с эффектом кирпичной кладки, выше оформят штукатуркой. Крыша скатная, наверху предусмотрен чердак и мансардный этаж.

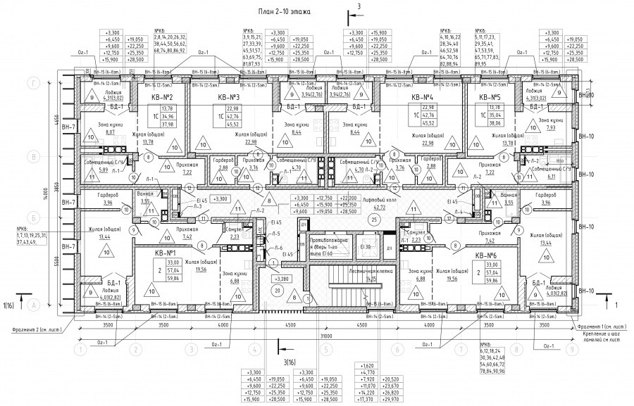
В жилом доме №2 всем желающим застройщик предложил несколько вариантов квартир.

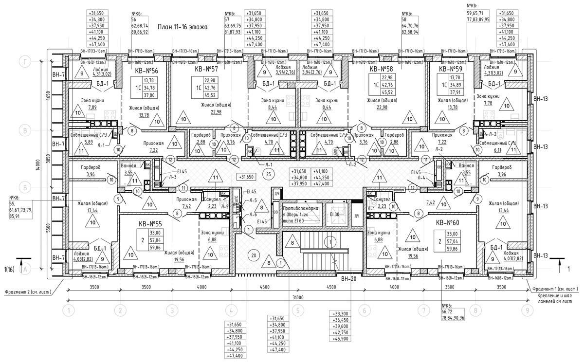
Имеется 31 однушка:

  • №14, 26, 38, 50 (каждая по 38 метров);
  • №3, 4, 15, 16, 27, 28, 39, 40, 51, 52, 63, 64, 75, 76, 87, 88 (каждая по 45 метров);
  •  №5, 17, 29, 41, 53 (каждая по 38 метров);
  • №62, 74, 86 (каждая по 37,8 метра);
  • №65, 77, 89 (каждая по 38 метров).

Есть также 15 двушек:

  • №6, 13, 18, 25, 30, 37, 42, 49, 54, 61, 66, 73, 78, 85, 90 (каждая по 59,86 метра).

Таким образом, выложить за студию придется около 274 тысяч рублей, или $90 тысяч по курсу. Двушка обойдется порядка 400 тысяч, или $132 тысячи по курсу.

Кроме того, в новом доме застройщик предложил два коммерческих помещения без отделки: №1 площадью 122,65 «квадрата» и №2 площадью 131,1 «квадрата» по цене 7700 рублей при 100%-ной оплате и 8020 рублей в рассрочку по графику платежей.

При 100%-ной оплате за жилье дольщик обязан внести средства в течение 7 банковских дней. При покупке квартиры в рассрочку требуется первоначальный взнос 30% от стоимости объекта долевого строительства. Оставшаяся сумма оплачивается каждый месяц равными долями в соответствии с графиком платежей до февраля 2026 года.

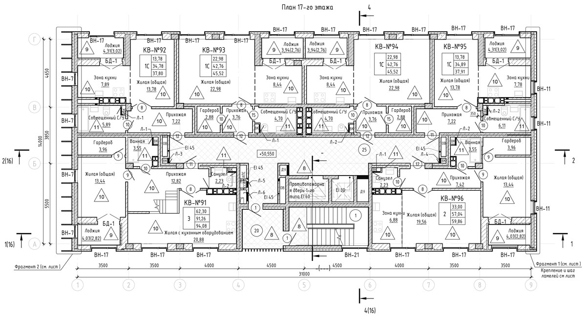
Сдать 17-этажную высотку застройщик планирует в марте 2026 года.

загрузка на 9 комплектов посуды, электронное управление, 5 программ, 44.8x55x81.5 см, черный цвет, сушка: стандартная (конденсация), индикация на полу: луч
Выбор покупателей
отдельностоящая, стиральная машина, с паром, загрузка до 6 кг, отжим 1200 об/мин, глубина 44 см (с люком 49 см), энергопотребление (new) A, прямой привод, 13 программ, 6 Motion (LG)

Есть о чем рассказать? Пишите в наш телеграм-бот. Это анонимно и быстро