На всем этаже — только одна квартира. Как бывший футбольный клуб застраивает исторический центр Бреста

24 556
26 декабря 2023 в 8:00
Источник: Анна Петрова. Фото: Анри Дарон

На всем этаже — только одна квартира. Как бывший футбольный клуб застраивает исторический центр Бреста

Источник: Анна Петрова. Фото: Анри Дарон
БОЛЬШОЙ РОЗЫГРЫШ! Заказывай от 99 р. в приложении Каталог Onlíner до 31.01 и получи шанс выиграть призы от Dreame

«Аматар» знают в Бресте как любительский футбольный клуб. Однако несколько лет назад спортивную «ячейку» приобрел инвестор, который решил, что компания вполне может проявить себя в строительстве. Первыми проектами ООО «Спортивный клуб „Аматар“» стали жилые комплексы в историческом центре города. По всем правилам на аукционах были выкуплены три земельных участка. Два из них практически застроены — город и горожане получили жилые комплексы под условными названиями «17 Сентября» и «Гоголя» (тут никакого полета фантазии и отвлеченных мыслей — все согласно неймингу улиц, где и велось строительство). В каждом новом квартале — порядка 3400 «квадратов» жилья». Смотрим, как можно вписать новую застройку в сердце старого города.

Расселить и снести

— Мы хотели оживить старую картинку Бреста и в то же время не желали идти вразрез с основной концепцией застройки, которая формировалась здесь более 150 лет, — признается директор «СК „Аматар“» Юрий Мищук. — Не буду говорить громких фраз, но мы действительно ставили целью реализовать амбициозный пилотный проект — построить элитное жилье с авторской архитектурой в сердце города. Одновременно учли социальную составляющую: теперь в центральных кварталах будет проживать гораздо больше брестчан.

Ни один ЖК не повторяет архитектуру других, визуально их объединяет лишь общая стилистика. Жилой комплекс «17 Сентября» включает четыре строения. На улице Гоголя возведены два жилых дома. Внутриквартальный, максимально обращенный к солнцу, вышел таким образным, что брестчане тут же дали ему имя — «Айсберг».

Участки застройщику достались с ветхими, без грифа архитектурной ценности жилыми домами, гаражами и дровяными 2-этажными сараями, каких в центре Бреста сохранилось множество. Дрова в сараях не держали давно, как и не пользовались размещенными в них выгребными туалетами. После вмешательства «Аматара» все дряхлые строения снесли и каждый хозяин утраченной собственности получил от застройщика денежную компенсацию. Работали, естественно, и с подлежащими отселению семьями: чтобы учесть интересы местных, заключили свыше 300 различных договоров.

И раз уж «Аматар» посягнул на исторический центр, компании пришлось познакомиться с Министерством культуры — ведомство определяло основные регламенты застройки. Ход земляных работ контролировали представители Национальной академии наук; был назначен научный руководитель, имеющий доступ к историко-культурным ценностям.

Когда копали в историческом месте, рассчитывали найти редкие артефакты. Но не случилось — ничто «музейное» в квартале так и не попалось.

Зато с заметным тщанием сохраняли все мало-мальски ценное. Для компании стало принципиальным реконструировать здание на Дзержинского, 24 с использованием исторического материала. Бывшую на этом месте постройку начала XX века разбирали вручную, по кирпичику. А потом переложили часть фасада из кирпича, оставшегося от разборки строений, попавших под снос. Да так, чтобы новодел сочетался с соседом — зданием в стилистике «промышленной готики», историко-культурной ценностью. Если подойти близко, видно, как овальная стена полностью выполнена из кирпича прошлого века.

Столетние кирпичики вымыли и выложили подчеркнуто художественно: аутентичный материал имеет разный оттенок и даже цвет.

А в зоне примыкания к «промышленной готике» старая стена вовсе не тронута. Она уходит внутрь закрытого пространства — в зал будущего кафе или ресторана. Внутри вековая кладка смотрится настоящим арт-объектом — классный фон для барной стойки или VIP-мест в заведении.

К тихой улице Дзержинского коммерческое здание обращено витринами из алюминия и стекла. Создается любопытный эффект: масштабное отражение (высота потолков в помещении — от 4,5 до 5 метров) делает узкую улочку шире и формирует акцентный участок в неприметном когда-то месте. В вечернее время здесь еще будет работать подсветка.

Постройка на Дзержинского, 24 — единственное нежилое строение двух ЖК. Другие торгово-офисные помещения под аренду расположены на первых этажах жилых домов.

Без приемов псевдоисторизма

По каждому кварталу делалась историческая справка, которую заказывали известному в Бресте специалисту Николаю Власюку. На ее основе разрабатывался строительный проект, пронизанный привязками к особенному месту. Например, 4-этажный 32-квартирный внутриквартальный дом на улице 17 Сентября выполнен с учетом традиций исторической застройки квартала: два нижних этажа «собраны» из коричневого керамического кирпича, а на отделке фасада верхних этажей — легкий штукатурный состав светлых оттенков. Хотелось, чтобы внутри квартала новый дом не давил высотой: два этажа у земли — дань традиции, два последних — сливаются с небом. Причем кирпич специально не оштукатурен, чтобы постройка оставалась в историческом контексте, когда внутренние фасады в Бресте не штукатурили.

— В квартале, ограниченном улицами 17 Сентября, Буденного, Дзержинского и Советских пограничников, многие дома сохранились в стилистике рубежа XX века, — рассказал заместитель руководителя Геннадий Андросюк. — Кроме «промышленной готики» здесь есть примеры конструктивизма. Между тем Министерство культуры рекомендовало при застройке не прибегать к приемам псевдоисторизма, не стараться в точности воссоздавать старое. Хорошо, что мы нашли понимание в ведомстве: интересна застройка в комплексе, когда каждая эпоха оставляет свой след.

При строительстве наших кварталов мы заимствовали в прошлом архитектурный ритм, стилистику, но осмысливали пространство в контексте сегодняшнего дня.

Исторический архитектурный ритм хорошо просматривается в 3-этажном доме на улице Советских пограничников, 8. Первое, что бросается в глаза, — необычная, тяготеющая к квадрату форма окон. Сначала такое решение удивляет, но стоит выглянуть на улицу и становится ясно: размеры окон подсказала архитектура места. Через дорогу расположен богато украшенный лепниной дом, который задает тон целому кварталу. С другой стороны открывается вид также на историко-культурную ценность XIX века.

В такой компании новая трехэтажка тоже не станет бедной родственницей. Первый этаж здесь отведен под два торгово-офисных помещения. На втором и третьем этажах расположены по две 4-комнатные квартиры с тремя спальнями и кухней-гостиной площадью более 20 квадратных метров. Несмотря на единую стилистику пространства, геометрия квартир немного разнится. В некоторых есть французские балконы, несколько окон в пол в кухне-гостиной, везде предусмотрены гардеробные.

Украшением одной из квартир на втором этаже стала открытая терраса площадью 31 квадратный метр.

Террасы, отмечающие статус Бреста как самого теплого города Беларуси, — отличительная черта проекта. Одна из них создает акцент в архитектуре дома по адресу 17 Сентября, 3. На последнем, третьем этаже терраса в элитной квартире площадью около 100 квадратных метров занимает 22 «квадрата». Потолком здесь является кровля, планировка — свободная. Весь второй этаж дома также занимает одна квартира со свободной планировкой, где можно разместить четыре комнаты и кухню-гостиную с выходом на балкон. Первый этаж отведен под арендные помещения с нулевой входной группой.

С видом на аллею фонарей

На Гоголя «Аматар» воплотил иную, более смелую архитектуру. Четырехэтажное здание возле популярного в Бресте грузинского ресторана «Хинкальня» напоминает центр Стокгольма. Четвертый этаж задуман так, чтобы максимально «сбивать» высоту постройки, — он предстает в виде цепочки «домиков на крыше».

Новодел возведен на месте деревянного строения из двух блоков по две квартиры в каждом. Теперь на прежних «квадратах» вырос дом, где будут проживать восемь семей. На втором и третьем этажах предусмотрены 4-комнатная и две 3-комнатные квартиры, в каждой из которых — просторная кухня-гостиная с выходом на балкон; из спален — выход на лоджии.

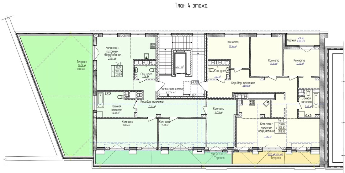
«Домики» на верхнем этаже — пространство со свободной планировкой, разделенное на две 4-комнатные квартиры. В одной из них предусмотрены две террасы общей площадью 70 квадратных метров с выходом из кухни-гостиной и спальни. Общая площадь террас — с 3-комнатную квартиру в стандартной панельке! Во второй квартире — одна терраса на 12 «квадратов» с выходом из кухни-гостиной. С террас открывается вид на тенистую улицу Гоголя с брестской достопримечательностью — аллеей фонарей. Жилое пространство светлое — за счет больших окон в пол и высоких 3-метровых потолков. Окно с видом на террасу есть даже в небольшом помещении, где можно оборудовать ванную или гардеробную. Еще один бонус — лифт в 4-этажном доме, стартующий с нулевого уровня.

Отмеченный народом «Айсберг» — вторая позиция ЖК «Гоголя». Посаженный внутрь двора, со всех сторон он зажат существующей застройкой. Чтобы дать жителям дома больше естественного света, проектировщики буквально ломали стандартные формы.

Шестиэтажный дом вмещает тридцать 1-, 2- и 3-комнатных квартир. Открытыми балконами оснащены все угловые квартиры площадью в 91 «квадрат».

— Мы не были профессионалами, когда решились на этот проект, — делится Юрий Мищук. — Набили шишки, усвоили много уроков, но, кажется, у нас все получилось. Практически все квартиры в жилых кварталах проданы. Бизнес интересуется помещениями, предназначенными для аренды. Нереализованными остались лишь несколько квартир. После приемки домов мы сформируем их цену и будем предлагать покупателю только нестандартное, элитное жилье.

Есть о чем рассказать? Пишите в наш телеграм-бот. Это анонимно и быстро

Перепечатка текста и фотографий Onlíner без разрешения редакции запрещена. ng@onliner.by