Три «черновые» квартиры в проблемном доме на Купревича попали на аукцион. Сколько за них просят?

 
10 852
14 августа 2023 в 14:15
Источник: Надежда Конон
Источник: Надежда Конон

История с проблемным домом на Купревича, 16, тянется давно. Строить высотку начали в 2017-м, но она накренилась, даже не успев достроиться. С «особенностями» оказался один подъезд из трех, но из-за него усиливали основание многоэтажки. В первом «квартале» 2023-го, наконец, ввели в эксплуатацию одну из секций, третью. Позже особой информации по дому не было. Onlíner нашел на сайте «Белюробеспечение» три «черновые» квартиры из того самого долгостроя, их попробуют продать с аукциона в конце августа. 

Возводит дом на Купревича, 16, «Минский домостроительный комбинат». Именно эта организация указана в данных к торгам как должник. Квартиры, выставленные на аукцион, находятся под арестом судебного исполнителя. Все варианты, кстати, в той самой третьей секции, по которой весной случились подвижки. Правда, в объявлениях есть пометка, что сами квартиры «не сданы в эксплуатацию». Похоже, имеется в виду их черновое состояние.

Двушка на 63,6 «квадрата» находится в третьей секции, на четвертом этаже. Начальная цена за нее — 192 тысячи рублей (около 60 тысяч долларов).

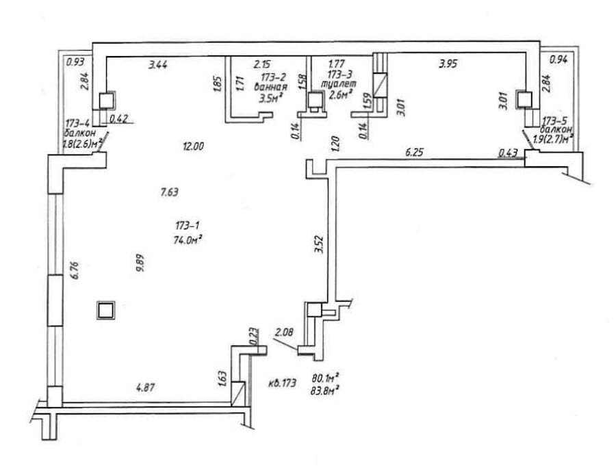
Продают и две трехкомнатные. Одна на 80,1 метра, расположена на первом этаже. За нее на старте торгов попросят 217 тысяч рублей (это 67,7 тысячи долларов по курсу).

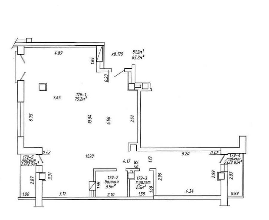
Соотносимая трешка на 81,2 «квадрата»  находится на втором этаже. Цена за нее стартует с 222 тысяч рублей (это 69,3 тысячи долларов по курсу).

Аукцион пройдет 29 августа, заявки на участие закончат принимать 28-го. 


санки, материал: сталь, до 25 кг, возраст: 1–5 лет
санки, материал: сталь, до 25 кг, возраст: 0.5 лет
тюбинг (ватрушка) 120 см, материал: ПВХ, до 120 кг

Наш канал в Telegram. Присоединяйтесь!

Есть о чем рассказать? Пишите в наш телеграм-бот. Это анонимно и быстро