В Соколе построят автономный квартал «Дом Парк». Цена «квадрата» в апартаментах — $850

 
21 186
05 ноября 2020 в 13:42
Автор: Евгения Штейн
Автор: Евгения Штейн
РАЗЫГРЫВАЕМ ИГРОВОЙ ПКСкачай приложение Каталога и нажми «Участвовать» до 21.06.2026

Мингорисполком утвердил изменения в детальном плане жилого района Сокол под Минском. 288,8 га земли в 20 км от МКАД, которые формально относятся к Октябрьскому району столицы, разделили на кварталы: коттеджная, многоквартирная, коммунально-обслуживающая застройка и экспериментальный объект «Ресурсонезависимый квартал „Дом Парк“». Предполагается, что это будут отдельно стоящие многофункциональные комплексы и интегрированные в застройку встроенно-пристроенные объекты, благоустроенные скверами и бульваром. Несмотря на то, что квартал «Дом Парк» еще находится на стадии проектирования, апартаменты в нем уже реализуются среди инвесторов.

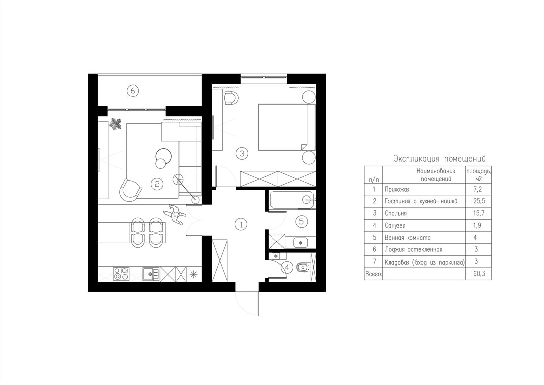
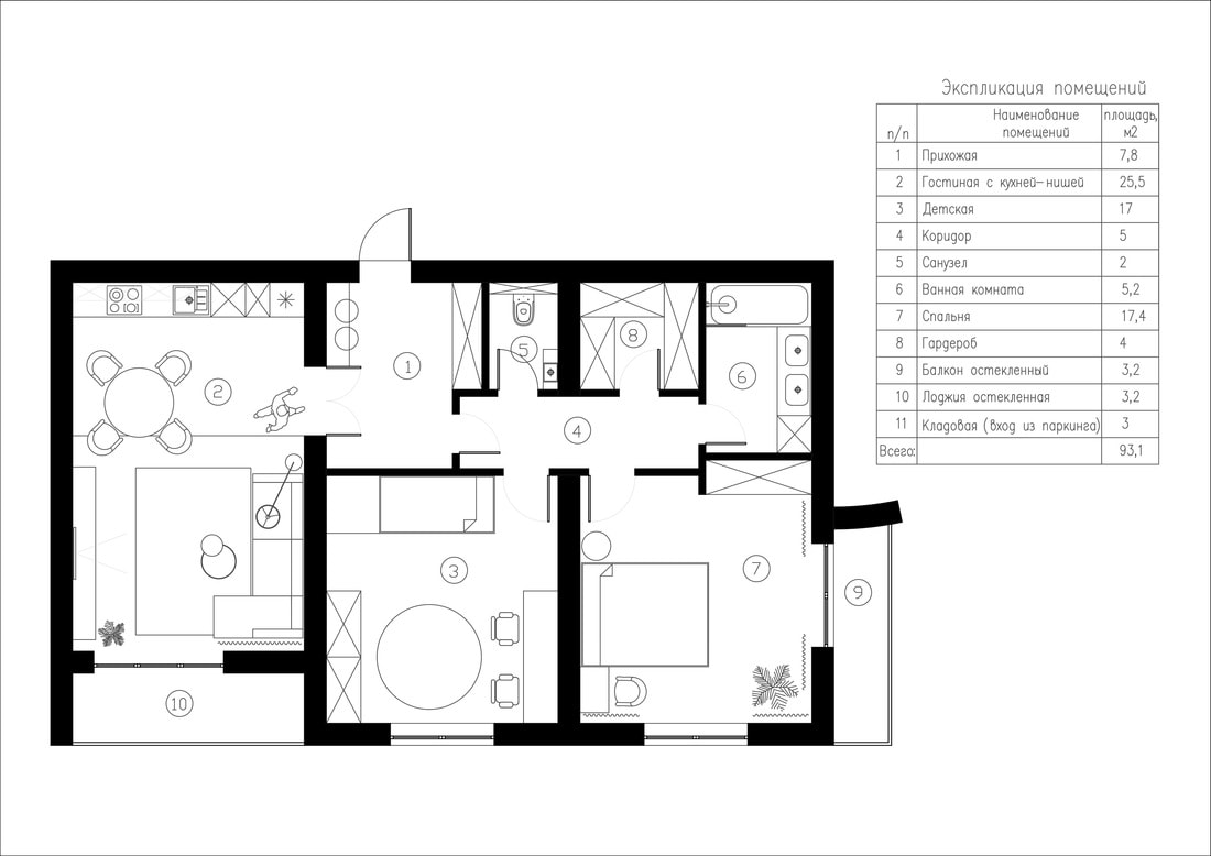
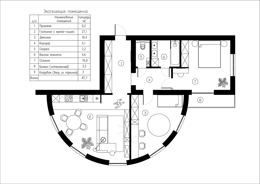
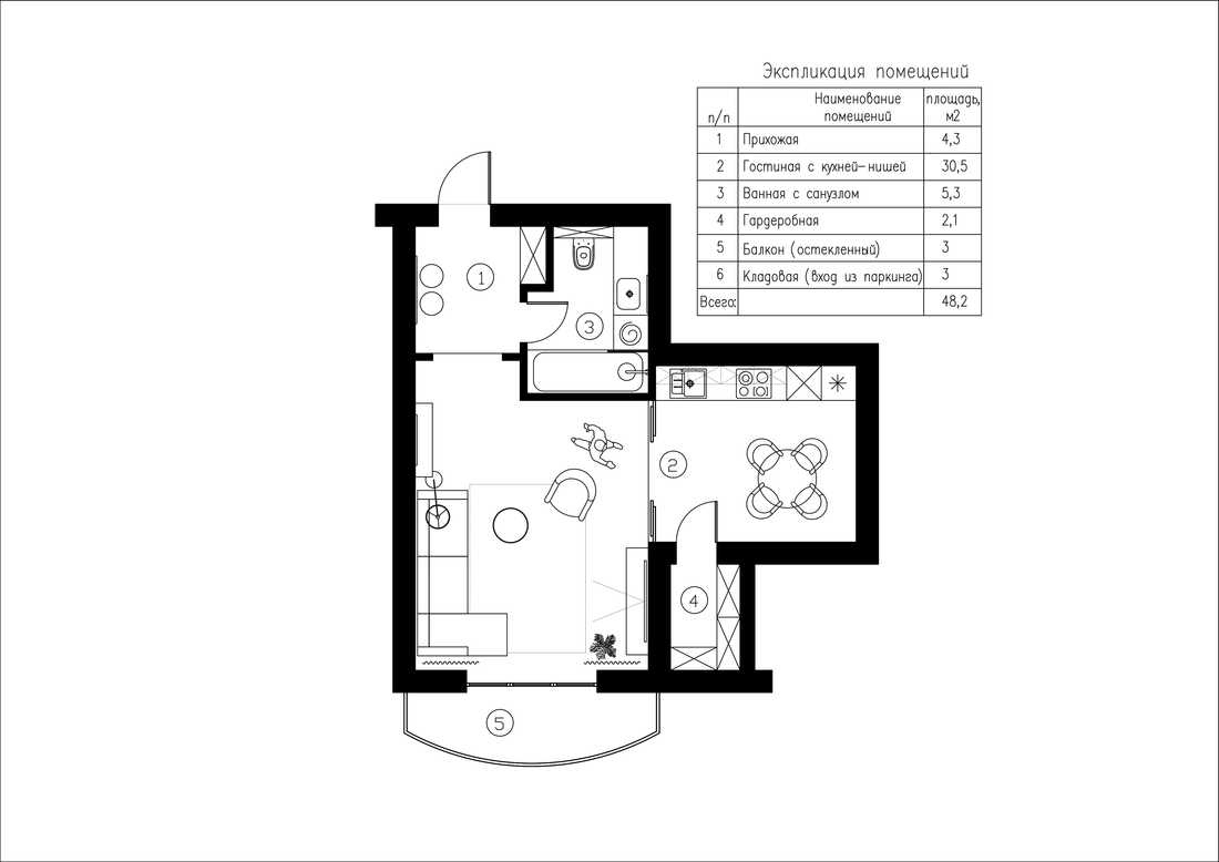
Квартал на 450 апартаментов начнут строить в 2021 году неподалеку от Национального аэропорта, а закончат в 2023-м. Заказчиком строительства выступает ЧСУП «Дом Парк». Площадь апартаментов в комплексе стартует от 46 кв. м., и они рассчитаны на сдачу в аренду. Цены уже озвучены: за студию общей площадью 46,2 кв. м. просят $39 270 (цена квадратного метра — $850). Но, поскольку строительство еще не началось и новостройка находится на стадии проектирования, купить апартаменты могут только инвесторы.

— Согласно инвестиционному кодексу Республики Беларусь, мы имеем право привлекать инвестиции, — рассказал заказчик строительства. — Предложение сделано для юридических лиц и индивидуальных предпринимателей. Физические лица пока не могут принять участие в строительстве апартаментов. Сейчас ведется проектирование квартала. В центре комплекса будет расположен гараж-стоянка, а к нему будут пристроены три 10-этажных одноподъездных дома.

Также в ЧСУП «Дом Парк» объяснили, чем апартаменты отличаются от квартир: они не входят в жилой фонд, а имеют статус арендного жилья. В них допускается временная регистрация сроком до года. Апартаменты будут сдаваться под чистовую отделку. Заказчик обещает, что за счет автономного жизнеобеспечения квартала коммуналка для юрлиц будет в 4 раза дешевле, чем в обычной гостинице.

Коммерческие помещения тоже выставлены на продажу: их реализуют по цене от $850 за «квадрат» с 30-процентной предоплатой.

Кроме квартала «Дом Парк», в Соколе планируют построить новые кварталы усадебной застройки на 178 домов, которые примкнут к коттеджному массиву в западной части Сокола, а также детский сад на 230 мест, школы на 792 места, многофункциональный спортивно-развлекательный комплекс с бассейном, несколько торговых объектов, включая мини-рынок, и жилые многоквартирные дома со встроенными отделениями банка и амбулаторией на 100 посещений в смену, а также многоуровневые гаражи-стоянки, СТО, автомойки, АЗС и кафе. Для реализации проекта под снос пойдут здания и сооружения эксплуатационного КУП «Соколкоммунсервис» и плоскостная автостоянка по ул. Барамзиной, 5.

Наш канал в Telegram. Присоединяйтесь!

Есть о чем рассказать? Пишите в наш Telegram-бот. Это анонимно и быстро