УКС предложил 30 квартир на месте Сельхозпоселка. Цены — от 2600 рублей за «квадрат»

 
24 630
13 марта 2020 в 11:06
Автор: Евгения Штейн. Фото: ukssov.by
Автор: Евгения Штейн. Фото: ukssov.by
Выиграй модный аэрогриль! Покупай в приложении с доставкой Príme и получай шанс выиграть аэрогриль Roome

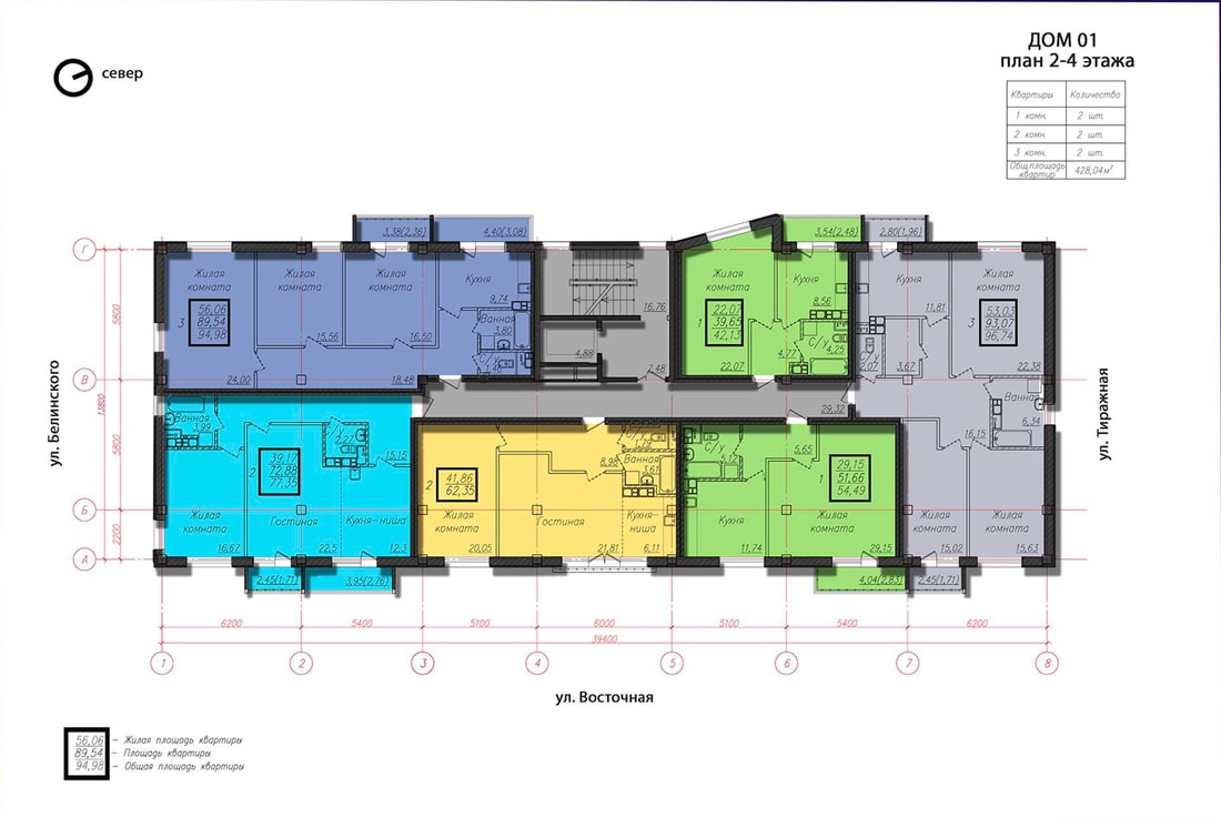
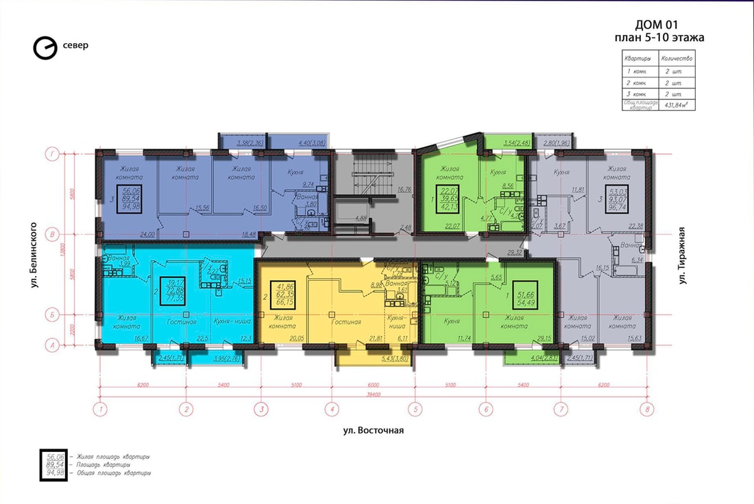
Сегодня государственный застройщик УКС Советского района предложил всем желающим поучаствовать в строительстве квартир в новом квартале на месте Сельхозпоселка. Речь идет о группе жилых домов со встроенными помещениями и подземным гаражом-стоянкой в границах улиц Л. Беды, Тиражной, Восточной, Белинского. Сейчас предлагаются квартиры в первой монолитно-каркасной одноподъездной 10-этажке, которую начали возводить 17 февраля 2020 года. Строительство должно продлиться 8,5 месяца, а сдать дом планируют в первом квартале 2021 года.

На карте отмечен квартал, где идет строительство. Дом будет состоять из 58 квартир: 19 однокомнатных, 21 двухкомнатная, 18 трехкомнатных. По проектной декларации, которая сегодня опубликована в газете «Минский курьер», всем желающим предлагаются 30 квартир, расположенных со второго по седьмой этаж:

  • 10 однокомнатных общей площадью от 42,11 до 54,49 кв. м со стоимостью «квадрата» 3000 рублей.
  • 10 двухкомнатных общей площадью от 62,35 до 77,35 кв. м со стоимостью «квадрата» 2800 рублей.
  • 10 трехкомнатных квартир общей площадью от 94,98 до 96,66 кв. м со стоимостью «квадрата» 2600 рублей.

Цены указаны при единовременной оплате. Квартиры сдаются в свободной планировке. На типовом этаже запроектировано шесть квартир, а на придомовой территории — 16 парковочных мест. Генподрядчик — ОАО «Стройтрест №4».

Библиотека Onliner: лучшие материалы и циклы статей

Наш канал в Telegram. Присоединяйтесь!

Быстрая связь с редакцией: читайте паблик-чат Onliner и пишите нам в Viber!