Дорого, но в двух шагах от Комаровки: почем продают квартиры в знаменитых домах-«кукурузах»

 
24 582
19 ноября 2018 в 11:38
О ЧЕМ МЕЧТАЮТ ЖЕНЩИНЫ?Смотрите в большой подборке идей к 8 марта

Рынок вторичного жилья замер в ожидании перемен — в начале ноября «Беларусбанк» озвучил неприятные новости: ставка по кредиту на недвижимость вырастает на два процента, а сама выдача займов приостанавливается до лучших времен (по плану они должны наступить в январе следующего года). Тем не менее даже в такие непростые времена продавцы не теряют надежды передать в надежные руки свои «квадраты», заполучив в обмен деньги. По-настоящему интересных домов, за свободными квартирами в которых выстраиваются очереди, в Минске не так и много. Одни из запоминающихся высоток — «кукурузы» на Веры Хоружей. Если вы, посещая Комаровский рынок, мечтательно поглядывали на эти «свечки», вот вам ценовой ориентир — метр в первых монолитно-каркасных домах Беларуси стоит в среднем $1600.

Желающих расстаться с квартирами в примечательных домах с несметным количеством балконов не так и много. В сервисе Onliner «Дома и квартиры» есть пока только три предложения. Притом что жилых высоток четыре и квартир в каждой из них под сотню. Значит, можно предположить: «Хорошие сапоги — надо брать», хотя и не без изъянов в отдельных случаях.

Если на большую квартиру денег нет, а жить хочется почти в центре, то присмотреться можно к однокомнатным квартирам. В «кукурузах» среди них даже есть выбор.

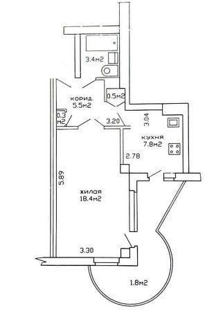
38-метровую «однушку» на последнем этаже в третьей по счету «кукурузе» продают за $72 000 по курсу, или $1895 за метр. Дорого, но зато квартира с ремонтом и весь город как на ладони — вид-то с 16-го этажа открывается отличный. Что касается планировки, то 18 метров из 38 уходит на жилую комнату, еще почти восемь на кухню, 3,4 «квадрата» занимает совмещенный санузел. Балкон просторный — с тем самым знаменитым полукругом.

«Однокомнатная квартира в центре города с дизайнерским ремонтом. Встроенная кухня, варочная поверхность, вытяжка, холодильник, 2 шкафа-купе, душевая кабина, унитаз „Церсанит“, инсталляция, итальянская плитка, стиральная машина, натяжные потолки, пол — паркет. Межкомнатные двери — массив, видеодомофон, стеклопакеты, счетчики воды, металл. дверь. Вся новая сантехника и трубы. Огромная лоджия застеклена стеклопакетами.

Отличное расположение дома, живописный вид из окна, дающий возможность смотреть праздничные салюты. Рядом гимназия, школа, детский сад, парк Дружбы народов. В шаговой доступности метро „Площадь Я. Коласа“. Рядом Комаровский рынок, ЦУМ, филармония. В доме новые лифты. Доброжелательные соседи. В перспективе возле дома будет располагаться новая ветка метро. Квартира для VIP. Идеальное место как для жизни, так и для сдачи в аренду»,уточняет бизнес-перспективы объекта агент.

Следующая однокомнатная квартира имеет зеркальную планировку, следовательно, распределение метров по помещениям совпадает. Этот объект уже не может похвастаться возможностью смотреть на город с высоты птичьего полета — «однушка» расположена на третьем этаже. Зато и цена ниже — $62 000 в эквиваленте (или $1675 за метр). Правда, неясно, что с ремонтом: фото квартиры хозяйка не приложила.

«Квартира расположена в Советском районе, центр, рядом Комаровский рынок, ст. метро „Площадь Якуба Коласа“. Ремонт обычный, аккуратная, в хорошем состоянии. Большая и просторная лоджия. Агентам не беспокоить», — коротко пояснила собственница.

И наконец, жемчужина «кукуруз» — трехкомнатная квартира. Метров в этой «трешке» достаточно для комфортной жизни — 87,7. 41 «квадрат» распределился между жилыми помещениями, 10 метров заняла кухня, санузел раздельный, и еще осталось место для кладовой-гардеробной. Квартира расположена высоко — на 14-м этаже из 16. Ремонт надо бы обновить. Стоит квартира $110 000 в эквиваленте ($1254 за метр).

«Вся инфраструктура в шаговой доступности. Метро, школа, детский сад, торговые объекты, парковая зона. Возле дома большая автомобильная парковка. Дом оборудован двумя новыми лифтами — грузовым и пассажирским. В квартире паркетный пол, новые стеклопакеты (на гарантии). Телефон, интернет. Два застекленных балкона общей площадью 18,4 м². Балконы остеклены двухкамерными стеклопакетами, что позволяет использовать их как дополнительные жилые помещения. При входе изолированный тамбур на две квартиры. Интеллигентные соседи»,уточняет агент.

Купить или продать жилье в любой точке Беларуси можно с помощью сервиса Onliner.
В базе данных — более 9 тыс. объявлений.

Наш канал в Telegram. Присоединяйтесь!

В меру новостей, в меру мемов и много веселья в нашем сообществе в VK