МДК продаст на аукционе три готовые квартиры в Минске. Цена «квадрата» стартует от $667

 
22 февраля 2016 в 17:51

Минский домостроительный комбинат, рабочие которого недавно отметились проведением «несанкционированной забастовки», объявил о проведении очередного аукциона по продаже квартир. На этот раз выставлены три «трешки» в новостройках Сухарево: одна из них находится на улице Скрипникова, две — на улице Академика Карского.

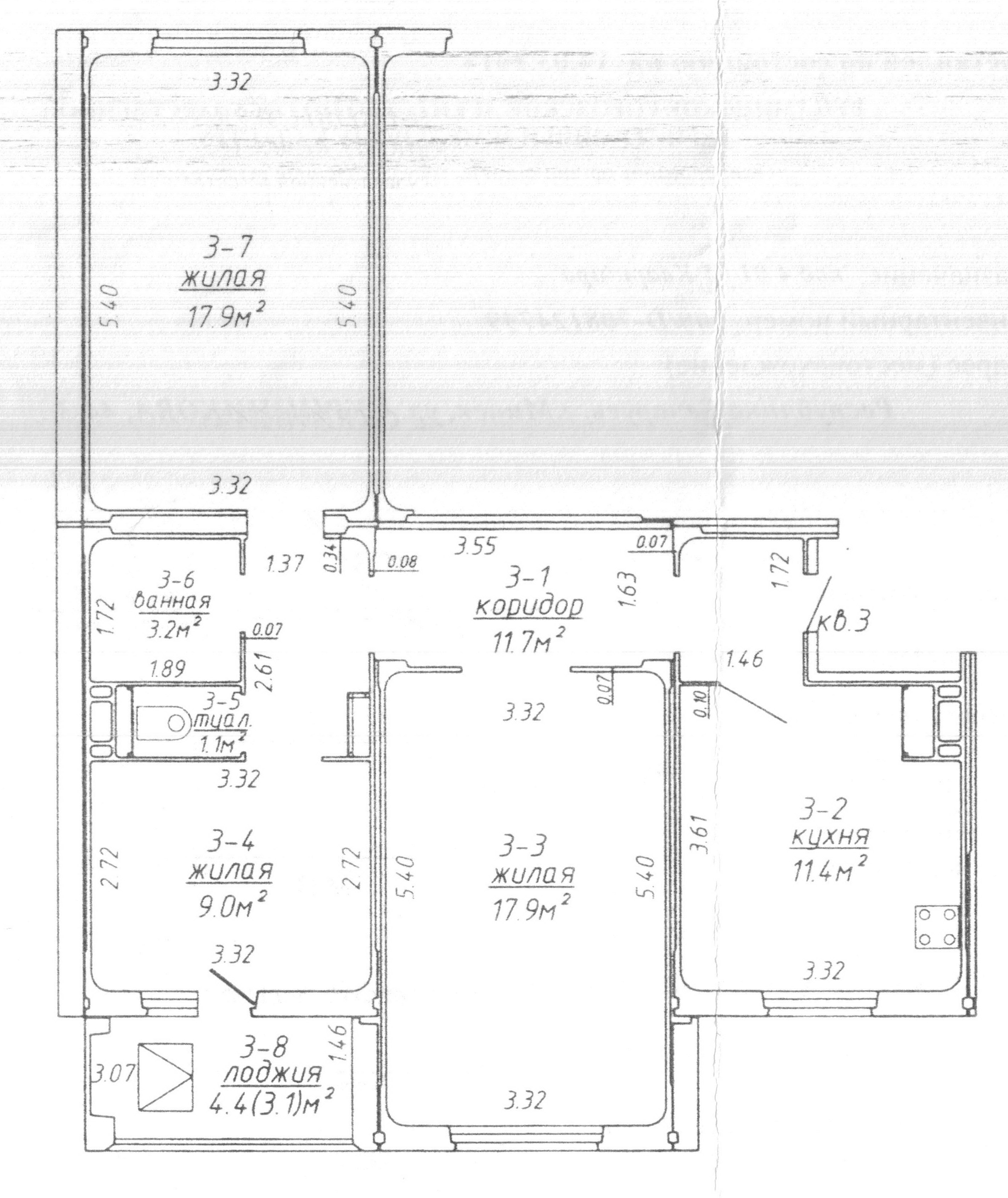
Лот №1 — квартира площадью 72,2 кв. м, расположенная на первом этаже дома №44 на улице Скрипникова. Квартиры аналогичного метража в этом же доме МДК пытался продать на аукционе еще осенью прошлого года. В рублях начальная стоимость не изменилась и составляет 1 045 432 000 рублей, а вот в долларовом выражении цена лота уменьшилась более чем на 10 тысяч и составляет сегодня $48 214 ($667 за «квадрат»).

Лот №2 — «трешка» площадью 76,2 кв. м на первом этаже 16-этажного дома на улице Академика Карского, 27. Каркасно-блочная новостройка была сдана в августе прошлого года. Начальная стоимость квартиры — 1 267 580 000 рублей, что эквивалентно $58 460 ($767 за квадратный метр).

В этом же доме предлагается трехкомнатная квартира на 15-м этаже (лот №3). Ее площадь составляет 75,1 кв. м, а стартовая цена — 1 323 739 000, что эквивалентно $61 050 ($813 за квадратный метр).

К начальной стоимости необходимо прибавить еще минимум 5%. С таким превышением цены квартиры будут проданы в том случае, если заявление на тот или иной лот подаст только один участник торгов. Если же претендентов будет несколько, цена будет повышаться аукционистом до тех пор, пока с ней не согласится только один участник.

Торги запланированы на 23 марта и пройдут в Минском городском центре недвижимости.

Читайте также: