Такая квартира — мечта любой большой семьи. Но есть одно но — цена

 
21 687
13 января 2026 в 16:41

В жилом доме на Дзержинского в Минске кто-то реализовал свою мечту о просторной квартире, предназначенной для большой дружной семьи. Приготовление красивых завтраков по утрам, совместные кинопросмотры, лицезрение шумного проспекта из окна — все это, вероятно, предполагалось здесь делать, но по каким-то причинам жилье выставили на продажу. Оно недавно появилось в базе Onlíner «Дома и квартиры». 

Квартира находится в жилом комплексе «Гранд Хаус» — в новостройке, которая стоит на пересечении проспекта Дзержинского и улицы Щорса, прямо возле метро «Грушевка». Жилье занимает целых 125 квадратных метров на 19 уровне 20-этажной высотки.

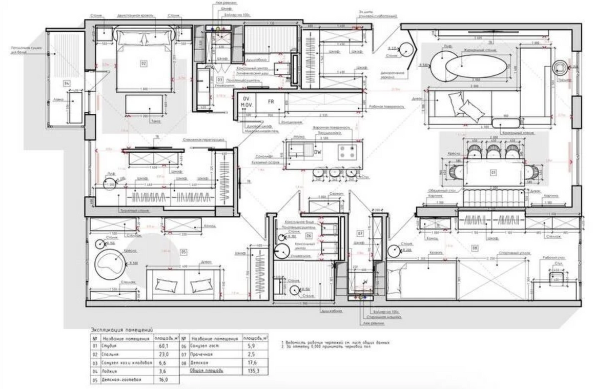
Планировка впечатляет:

Интерьер здесь выполнен по дизайн-проекту, об этом сообщает риелтор:

— Все решения, от планировки до мебели, продуманы и реализованы под ключ. В квартире сделан дорогой ремонт, использованы премиальные материалы, встроенная мебель изготовлена по чертежам дизайнеров. Пространство выполнено в едином современном стиле с акцентами и встроенной подсветкой.

Так выглядит гостиная зона. Минималистичные стены дизайнер обставил акцентной мебелью и предметами искусства. На полу здесь лежит паркетная доска.

1500 Вт, металлический (ТЭН) нагревательный элемент, сенсорное управление, 5 л
1450 Вт, корпус металл/пластик, капучинатор ручной, используемый кофе: молотый/зерновой, цвет белый
50" 3840x2160 (4K UHD), частота матрицы 60 Гц, Smart TV (LG webOS), HDR10, HLG, AirPlay, Wi-Fi, смарт пульт

Также отмечается, что жилье полностью укомплектовано. И действительно, создается ощущение, что в нем имеется абсолютно все, что нужно: начиная от мебели, заканчивая мельчайшими предметами декора. На кухне кроме кофемашины и чайника есть даже набор баночек для специй.

— Есть полноценная кухня, оснащенная духовкой, микроволновкой, варочной поверхностью, посудомоечной машиной, большим холодильником, мойкой и островом (столешница выполнена из натурального итальянского мрамора), — говорится в объявлении.

Мастер-спальня оборудована гардеробной комнатной, в которой ровными рядами висит чья-то одежда. Также в спальне есть отдельный санузел.

Предусмотрены две детские комнаты — судя по всему, для сыночка и лапочки-дочки.

— Квартира полностью готова к продаже, документы в порядке, собственники в РБ, — отмечает риелтор. — Есть возможность приобретения машино-места в подземном паркинге.

Стоимость квартиры мечты — $560 000. 

Есть о чем рассказать? Пишите в наш телеграм-бот. Это анонимно и быстро

моющий, сеть, мощность всасывания: 180 Вт, потребление: 650 Вт, без регулировки мощности, шум 80 дБ
отдельностоящая, стиральная машина, с паром, загрузка до 6 кг, отжим 1000 об/мин, глубина 45 см (с люком 52.5 см), энергопотребление A+++, 12 программ
отдельностоящий, полный No Frost, электронное управление, класс A, полезный объём: 346 л (241 + 105 л), перенавешиваемые двери, складная полка, лоток для яиц, 59.5x65x190 см, серебристый