Возле парка Дружбы народов построят автостанцию. Вот как она будет выглядеть

 
16 214
26 ноября 2025 в 16:08
БОЛЬШОЙ РОЗЫГРЫШ! Заказывай от 99 р. в приложении Каталог Onlíner до 31.01 и получи шанс выиграть призы от Dreame

Район парка Дружбы народов находится в процессе глобальных изменений: продление ветки метро, реконструкция улицы, а теперь еще и новая стройка. На пересечении улиц Кульман, Кропоткина и Карастояновой, недалеко от ресторана «Друзья», появится диспетчерская станция. 

Почему вообще возникла такая необходимость? Дело в том, что в связи со строительством жилого комплекса «Северный берег» стало важным продлить улицу Карастояновой в направлении МКАД. Реконструкция этой улицы повлекла за собой необходимость сноса диспетчерской станции «Карастояновой». Для транспортного обеспечения предлагается заменить ее на новую станцию, которая появится недалеко от сносимой. Вместе с возведением здания реконструируют и прилегающую транспортную инфраструктуру.

На карте под номером 1 отмечена старая станция, а под номером 2 — территория, на которой предлагается возвести новый объект.

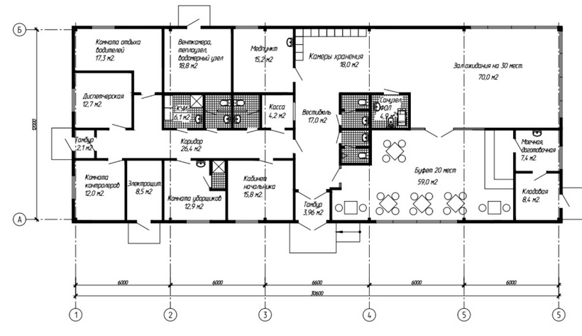
Вот как будет выглядеть будущая автостанция:

Детально можно изучить и планировку здания. Судя по всему, внутри расположатся зал ожидания, диспетчерская, комната отдыха водителей, различные кабинеты, медпункт, камеры хранения, а также буфет.

Сейчас проект находится в процессе общественного обсуждения. Экспозицию можно изучить в фойе здания администрации Советского района на Дорошевича, 8, и на сайте администрации. Замечания и предложения минчан принимаются до 1 декабря включительно.

Уже сейчас местные жители волнуются: а не помешает ли новый объект их спокойствию? Один из читателей Onlíner опасается:

— Этот автовокзал будет находиться между клубом «Друзья» с его детской площадкой и детским бассейном «Орленок». Что будет с большой переполненной парковкой?

Вспомнили читатели и о том, что предстоящая стройка — это, по сути, восстановление исторической справедливости:

— Выделенный участок в точности повторяет бывшую диспетчерскую станцию, территорию которой заняла парковка, а в здании разместилась ветеринарная клиника. Станция обслуживала в том числе и пригород.

Есть о чем рассказать? Пишите в наш телеграм-бот. Это анонимно и быстро

беспроводные наушники с микрофоном, мониторные (охватывающие), портативные, съёмный аудиокабель, Bluetooth 5.0, 20-20000 Гц, время работы 10 ч
10000 мА·ч (36.5 Вт·ч), выходы: 2 x 5V/9V/11V/12V/15V/20V (3000 мА), быстрая зарядка
Android, экран 6.79" AMOLED (1200x2640) 120 Гц, Qualcomm Snapdragon 6 Gen 4, ОЗУ 12 ГБ, память 256 ГБ, камера 108 Мп, аккумулятор 8300 мАч, моноблок, влагозащита IP66/IP68/IP69K