$249 000 за исторический вайб. Посмотрите, какой ремонт сделали в сталинке прямо в центре Минска

 
27 768
26 сентября 2025 в 15:21
РАЗЫГРЫВАЕМ ИГРОВОЙ ПКСкачай приложение Каталога и нажми «Участвовать» до 21.06.2026

Этот кирпичный дом 1947 года постройки находится прямо возле стадиона «Динамо». Место тихое (если не брать в расчет мероприятия на стадионе), туристическое, прямо в центре города — за все это люди обычно и любят сталинки. В них одновременно есть и исторический вайб, и бонус в виде удачного месторасположения. Сейчас в трехэтажке на Кирова, 23, продается интересная квартира с новым дизайнерским ремонтом. 

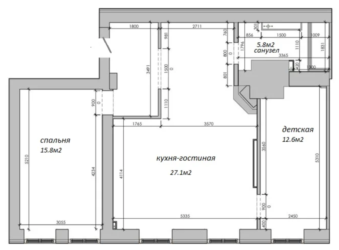
Площадь трехкомнатной квартиры — 71,6 кв. м. Высокие потолки — это тоже отличительный признак квартир в сталинках. Здесь потолки имеют высоту 3,05 метра.

В целом интерьер выглядит минималистичным и спокойным. В кухне, соединенной с гостиной, обращает на себя внимание камин. Работает он или нет, неизвестно, но уютную атмосферу, определенно, создает.

Описание кухни от риелтора:

— Индивидуальный проект кухонного гарнитура позволяет максимально эффективно использовать пространство и создать уникальный стиль. Встраиваемая техника Bosch известна своим качеством и надежностью, а керамогранитная столешница и подоконники не только красивы, но и очень практичны.

В квартире есть две жилые комнаты — спальня и детская. В комнатах на полу — дубовый паркет и итальянская плитка.

В санузле предусмотрена электрическая система подогрева пола. Эту зону обустроили с помощью сантехники и смесителя Villeroy&Boch, инсталляции Grohe, акриловой ванны, бойлера для подогрева воды и стирально-сушильной машины.

Стоимость такого жилья — $249 000.

По мнение риелтора, квартира идеально подойдет для проживания или может стать объектом для инвестирования.

64x36 см, с одной чашей, накладной, крепление на мебельный шкаф/на столешницу
подвесной, конструкция: без бачка, задний подвод воды, горизонтальный выпуск, двухрежимный слив, с сиденьем, безободковый

Есть о чем рассказать? Пишите в наш телеграм-бот. Это анонимно и быстро