02 апреля 2022 в 10:05
Автор: Снежана Инанец. Фото: Александр Ружечка

В центре Минска построили дом с апартаментами. Как там выглядят пентхаусы за миллион долларов по курсу

Автор: Снежана Инанец. Фото: Александр Ружечка
Выиграй модный аэрогриль! Покупай в приложении с доставкой Príme и получай шанс выиграть аэрогриль Roome

Про стильное семиэтажное здание, выросшее в самом центре Минска — под боком у Дома правительства, мы уже рассказывали. Квадратные метры там необычного формата: это апартаменты, которые можно использовать как под жилье, так и под офисы. Новостройку сдали в эксплуатацию, в объявлениях уже мелькают роскошные пентхаусы стоимостью миллион долларов по курсу. Onlíner побывал внутри.

Можно жить, но не жилье. Что это вообще за формат

Как и задумывалось, в семиэтажном здании по адресу Мясникова, 27 будут апартаменты. Это особый формат: помещения могут использоваться и как жилое пространство, и как коммерческие площади. Правда, зарегистрироваться по месту жительства не получится, так как официально это не жилье.

Проект назвали «Резиденция Графит», возводил здание застройщик — «Жилсоцстрой». Часть площадей продали еще на этапе строительства.

Новостройку сдали в эксплуатацию, но частично работы еще идут: в некоторых апартаментах укладывают ковровое покрытие, а прямо во время нашего прихода альпинисты мыли панорамные окна. Коридоры на этажах устланы защитным покрытием, похожая история и с лифтами.

— Всего в здании 40 апартаментов, из них свободных восемь. Из четырех пентхаусов осталось три, — рассказывает Екатерина Николаенко, начальник отдела вторичных проектов группы компаний Viva Invest.

В холле со стороны улицы Берсона

Апартаменты или продаются, или сдаются — зависит от договоренности с клиентом.

— Бывает, звонят с намерением взять площади в аренду, а потом решают купить, — поясняет Екатерина.

Спрашиваем, кто будет заниматься обслуживанием необычного дома.

— Будет создана обслуживающая организация от застройщика, которая заключит договоры с профильными организациями. Пока это в процессе.

Важная деталь: для «Резиденции Графит» «коммуналка» будет рассчитываться по тарифам для юридических лиц, ведь это не жилые метры. Впрочем, вряд ли это существенно для будущих владельцев пентхаусов за миллион долларов. Кстати, именно с осмотра VIP-апартаментов и начнем.

Как выглядят пентхаусы

Пенхтаусы занимают 6-й и 7-й этажи.

— В помещениях много света. Такой стиль выдержан что здесь, что в стандартных апартаментах: где-то витражное остекление, где-то французские окна, — говорит Екатерина.

Площадь первого пентхауса, в который мы зашли, — 415 «квадратов». Покупателю он обойдется примерно в 960 тысяч долларов по курсу.

На полу — плитка и паркет. Стены окрашены, потолки — без отделки. Двери скрытого монтажа — утоплены в стены.

Из этого пентхауса винтовая лестница ведет на эксплуатируемую кровлю. Уже со свежего воздуха можно войти в стеклянное помещение, у каждых VIP-апартаментов — свой такой «домик».

— Это лаундж-зона, а кто-то, может быть, здесь сделает спортивный зал, — говорит Екатерина.

В помещении установлено джакузи, которое тоже достанется покупателю. Здесь, наверху, тоже есть санузел.

На кровле — плитка, гравий и дорожки.

— Учитывая, что стало меньше вариантов выезжать за рубеж, можно обустроить себе здесь пляж, — шутит собеседница.

Второй пентхаус — 512 «квадратов», он стоит почти 1,2 миллиона долларов по курсу. Потолки окрашены, на одной из стен — скульптура.

Любопытная деталь в одной из спален — санузел за стеклом.

— Здесь более открытая, игривая атмосфера, тогда как в предыдущем варианте интерьер более классический, — комментирует Екатерина.

Выход на кровлю в этом пентхаусе организован иначе. Лестница снаружи, а не из жилого пространства.

По словам собеседницы, в последние несколько недель интересуются именно пентхаусами.

— На удивление по этим объектам звонков немало. Вероятно, инвесторы рассматривают такое жилье как возможность сохранить деньги во времена, когда с валютами ситуация непонятная. 

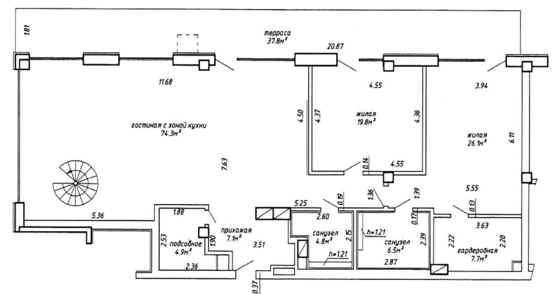
Вот какие планировки у пентхаусов.

А как выглядят апартаменты попроще?

На других этажах находятся стандартные апартаменты.

Вот как смотрятся те, которые можно назвать «евродвушкой» на 83 «квадрата»: гостиная с кухней и спальня.

— Чистовая отделка в основном закончена, но идет уборка, укладывается ковровое покрытие. Разведена сантехника, электрика, уже висят светильники.

В санузлах отделка — плиткой, установлена сантехника.

На балкон можно выйти из обеих комнат.

Любопытно, что на планах комнаты называются кабинетами — еще одно вытекающее из того, что официально это не квартиры.

Эти, самые маленькие апартаменты пока продают по акционной цене 460 тысяч рублей (примерно 154,7 тысячи долларов по курсу).

Планировка «евродвушки» на 83 «квадрата»

— У нас за эти деньги вы можете получить, по сути, жилье в центре Минска. За соотносимую цену продаются сталинки, но у нас при этом — современное здание с комфортной средой,  говорит Екатерина.

Но мы помним про нюанс с пропиской и «коммуналкой» как для юрлиц.

Остальные апартаменты стоят от 513 тысяч рублей и выше.

Так выглядит пространство на 96 «квадратов».

Пространство на 96 «квадратов»

А вот «евротрешка» на 113,7 квадратного метра.

«Евротрешка» на 113,7 квадратного метра

Конференц-зал и паркинг

В здании отведено место под конференц-зал или опенспейс, это пространство на 1200 «квадратов». Пока арендатора или покупателя на них нет.

При новостройке есть двухэтажный подземный паркинг на 47 мест. Продается одно машино-место почти за 30 тысяч долларов по курсу.

— Машино-место в центре города может быть интересно не только тем, кто живет в апартаментах, но и людям в округе, — говорит Екатерина.

Наш канал в Telegram. Присоединяйтесь!

Есть о чем рассказать? Пишите в наш телеграм-бот. Это анонимно и быстро

Перепечатка текста и фотографий Onlíner без разрешения редакции запрещена. ng@onliner.by