«Во время реконструкции жили в бане». Переделали обычную дачу в стильный скандинавский дом

18 января 2022 в 8:00
Автор: Снежана Инанец. Фото: Максим Тарналицкий

«Во время реконструкции жили в бане». Переделали обычную дачу в стильный скандинавский дом

Автор: Снежана Инанец. Фото: Максим Тарналицкий

Еще несколько лет назад это была стандартная дача на 50 квадратных метров. Теперь это вишневый дом в скандинавском стиле на 139 «квадратов», который в бюро ZROBIM architects назвали Wine House. Onlíner побывал на месте, спросил у хозяина и архитекторов, как шла переделка и что еще осталось в работе.

Что было: «Дом из газосиликата, купили с прицелом на строительство»

Семья Александра купила небольшой дом с мансардой в Смолевичском районе чуть больше пяти лет назад.

— Мы его третьи хозяева. Сначала это было небольшое здание на 50 «квадратов». Потом его купили, немного надстроили — стало 70, а затем уже в таком состоянии продали нам, — рассказывает владелец.

— Была стандартная дача, каких большинство, — добавляет архитектор Андрей Маковский.

Семья сразу была нацелена на переделку. Причем не только дома — Александр вспоминает, что хозпостроек «не было никаких»:

— Ни бани, ни гаража. Только беседка и разваливающиеся сарайчик и туалет. 

Газ был подведен к дому. Канализация представляла собой «просто яму».

— Летом стоки надо было откачивать из ямы раз в месяц, а осенью и зимой — хоть каждую неделю машину вызывай. На участке высокий уровень подземных вод, это добавляло забот, — говорит хозяин.

Так что, помимо перестройки, пришлось приводить в порядок и коммуникации.

Переделка: «Высокая крыша и пейзажи вдохновили на скандинавский проект»

В 2019-м семья обратилась в архитектурное бюро ZROBIM architects, там специально под этот дом разработали проект. Основной этап реконструкции пришелся на май — ноябрь 2020 года.

— Пока шла реконструкция, жили в бане. Осенью там стало некомфортно: похолодало. Как только в доме подключили газ, переехали. Сначала жили на кухне, ремонт делали постепенно, — вспоминает владелец.

Архитекторы Андрей Маковский и Алексей Кораблев рассказывают, как рождалась идея проекта.

Архитекторы Андрей Маковский и Алексей Кораблев

— У дома имелась вальмовая крыша аж на шесть переломов-плоскостей. Но она была достаточно высокой. Это и пейзажи рядом с домом вдохновили на проект в скандинавском стиле. Надо было упростить крышу, сделав ее двускатной, придать форму барнхауса. Под новой кровлей поместился полноценный второй этаж. Также решили расширить площадь, пристроив новую часть с плоской крышей, — поясняют специалисты.

Новый объем строили из керамзитобетона. А от прежнего газосиликатного дома фактически остались четыре стены и перекрытие. Когда сняли крышу, начался сезон дождей, что усложнило работу над начинкой здания.

Фасады и кровля — металлические, из фальца. Есть утепление, ветрозащита, обрешетка, на которой крепится планкен — специальная обшивочная доска из лиственницы.

Что внутри: «Идет работа над вторым этажом»

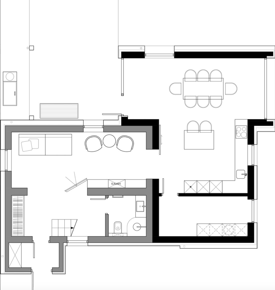
В пристроенном объеме — большое окно и сплошное остекление входной зоны. Здесь теперь кухня и столовая. Интерьер для дома бюро ZROBIM architects не разрабатывало, хозяева продумывают его сами.

— Это помещение готово процентов на 80, — рассказывает владелец. — Осталось закончить работу над потолком и повесить нормальное освещение. 

Собеседник вспоминает, что установка стекла напоминала спецоперацию: работала целая команда, использовался кран.

— Из-за большого окна жена называет эту комнату аквариумом. Любим здесь посидеть. Мыть стекло не составляет труда: есть специальные девайсы, — говорит Александр. 

— Некоторые наши клиенты называют такие большие окна телевизором, — добавляют архитекторы. — Смотришь снаружи, а внутри — приятный свет и жизнь.

Семья сожалеет, что теплый пол оборудовали только в «аквариуме».

— Прошлая зима показала, что теплые полы все-таки — дело не лишнее. С ними и летом нет дискомфорта от того, что ходишь по плитке. Сейчас бы сделали такие повсюду, — отмечает хозяин.

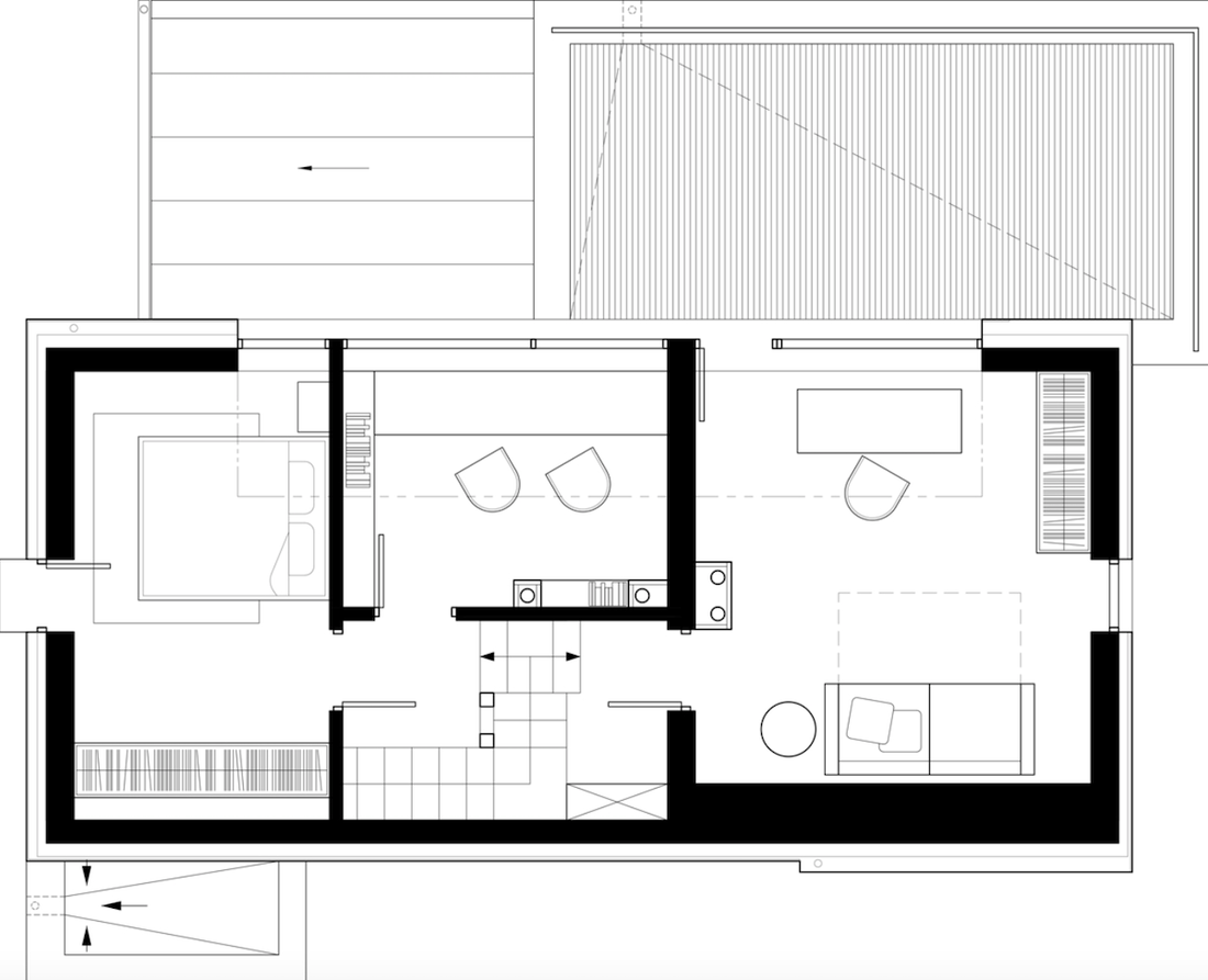
Тут же, на первом этаже, — компактная гостиная. Как раз в ее границах когда-то и находилась изначальная дача. Здесь же расположена временная лестница на второй этаж. Он пока не готов. Там будет три комнаты: две спальни и рабочий кабинет.

— Все стены и потолок обошьем фанерой. На полу — доска, — поясняет Александр.

Некоторые идеи архитекторов семья трансформировала под себя.

— На первом этаже планировался камин, но в процессе мы поняли, что он нам совсем не нужен. А на втором этаже решили сделать два выхода на террасу вместо одного, — добавляет владелец.

Архитекторы к изменениям относятся с интересом и в целом не спорят: дом — живой организм. Из интерьерных находок хозяев хвалят открытые балки на потолке, которые поддерживают стиль, заданный фасадом.

Многое Александр делает своими руками вместе с сыном. Например, деревянные двери между комнатами.

Сколько стоит реконструкция

Мы спросили семью и архитекторов о том, во сколько может обойтись такая переделка. Сколько стоил проект, нам не рассказали, так как «цены с 2019 года стали неактуальными». Что касается стоимости самой реконструкции, тут владельцы поясняют:

— Точно больше 40 тысяч долларов, а там перестали записывать. Рады, что успели закупить впрок лиственницу до подорожания стройматериалов.

На втором этаже
Из кабинета и одной из комнат можно выйти на террасу

Представители бюро ZROBIM architects считают, что стоимость подобной необычной реконструкции не отличается от стандартной.

— А насколько это отличается от типичных домов — вы видите. Если бы каждый так подходил к реконструкции, мы бы уже жили в другой стране, — говорит Алексей Кораблев.

Архитекторы обращают внимание на одну из возможностей экономии:

— Большие панорамные окна — алюминиевые, а сдвижная система — из пластика. Это способ сэкономить, не навредив при этом проекту. 

Работа над домом мечты под Минском продолжается: часть стен еще нужно обшить лиственницей.

 — Сын сам покрыл лиственницу грунтовкой и краской. Потом еще слой краски наносится, когда дерево уже на фасаде, — говорит владелец.

Архитекторы добавляют, что сначала была идея набивать рейки одна на другую.

— Но нам показалось, что дом выйдет слишком скандинавским. Так что решили располагать планкен не внахлест, — поясняют специалисты. — Остался виден фальц, поэтому подыскивали нужный цвет, который бы лучше сочетался с деревом. Получилось гармонично.

Осматривая фасад, представители бюро ZROBIM architects обратили внимание на изменение, которое не одобрили. Скрытый водосток, который предполагался по проекту, сделают не везде.

— Строительная компания убедила делать водосток не скрытым, — объясняет Александр. — Аргумент был такой: трубы часто забиваются, их надо как-то чистить.

У архитекторов — свои аргументы:

— Здесь водосток часто забиваться не будет: это скорее проблема домов, которые стоят в лесу. Плюс в трубу стоит выводить самонагревающийся кабель для подогрева, чтобы вода не замерзала. Ну и конечно, на фасаде должны быть съемные элементы для прочистки. Можем подсказать, если передумаете. Скрытый водосток здесь был бы очень кстати. 

Андрей Маковский добавляет, что во время строительства «всегда кто-то будет в чем-то переубеждать»:

— Кто-то и про дерево на фасаде скажет: «Лучше не надо»!

Современным домом, который прямо сейчас рождается из типичной советской дачи, и владельцы, и архитекторы довольны. Особенно хвалят цвет сурика, типичный для Скандинавии.

— Цвет, на мой взгляд, создает основную эстетику этого дома, — подытоживает Алексей Кораблев. — Если бы мы покрасили стены, например, в черный, получилась бы обычная реконструкция. А так — здорово, что клиенты разрешили поэкспериментировать. Все вплоть до оконных рам — в одном цвете, что несколько непривычно для Беларуси. Дом получился таким винным, вишневым. Перед окном и вишня еще растет — идеально.


Наш канал в Telegram. Присоединяйтесь!

Есть о чем рассказать? Пишите в наш телеграм-бот. Это анонимно и быстро

Перепечатка текста и фотографий Onlíner без разрешения редакции запрещена. ng@onliner.by