Полноценное жилье на 42 «квадратах». Минчане переделали однокомнатную квартиру в «трешку»

18 июня 2020 в 8:00
Автор: Дмитрий Мелеховец. Фото: Максим Тарналицкий

Полноценное жилье на 42 «квадратах». Минчане переделали однокомнатную квартиру в «трешку»

Автор: Дмитрий Мелеховец. Фото: Максим Тарналицкий
Выиграй модный аэрогриль! Покупай в приложении с доставкой Príme и получай шанс выиграть аэрогриль Roome

Свое первое жилье Петр и Александра Калюжные купили примерно три года назад. Это была старенькая малосемейка на Асаналиева — один из самых дешевых вариантов в городе на тот момент. Они вложили в отделку остаток накоплений и постарались сделать квартиру максимально уютной (об экспресс-ремонте этой «однушки» можно почитать здесь). Потом у пары родился ребенок, следом — еще один. «Мы подумали, что дети не должны дышать пылью и играть в песочнице, где выгуливают собак. Стали искать предложения поприятнее», — рассказывают супруги и ведут на экскурсию по своей «трешке».

Целились на суперквартиру, но переплата по кредиту составила $200 тысяч

В малосемейке пара прожила всего год. Они купили ее в максимально неприглядном состоянии: «горящая» проводка, «ходящие» от сквозняка окна, устаревшая еще лет двадцать назад отделка. Ребята наняли специалистов и постарались преобразить жилье за относительно небольшую сумму.

— Уезжать было жалко: мы в ней прожили совсем недолго, а ремонт делали хороший — все для себя. Но и оставаться там было тяжело. Мы решили ее продавать, брать кредит и переселяться, — говорит Петр. — Сначала мы целились на суперквартиру площадью сто «квадратов». Пришли в офис продаж, начали мечтать, что сейчас продадим «однушку» тысяч за сорок, возьмем кредит и заживем! 

А потом я посчитал, что переплата по кредиту составит что-то в районе $200 тысяч. В общем, какие-то сумасшедшие деньги. Мы поняли, что все это невозможно, и сильно расстроились, ночь не спали, переживали. 

Минчане снизили планку и стали рассматривать варианты поменьше да подешевле. На тот момент в «Новой Боровой» как раз предлагали «однушку» с эксплуатируемой крышей примерно за $70 тысяч по курсу. Семья продала свою квартиру, набрала долгов и быстро оформила понравившийся вариант.

— Квартира была простейшая. По проекту — только гостиная и отдельная кухня. Все. Мы вообще не верили, что у нас что-то получится. Ну представьте: у нас было 33 «квадрата», а стало 42, которые казались еще меньшими — вообще отстой, — смеется молодой человек.
— Мы поставили стол, кроватку детскую — и ничего больше не вмещалось. Схватились за голову: как здесь можно жить? — дополняет Александра.

Сделали детскую на месте кухни, а спальню — в коридоре

После покупки жилья денег у ребят оставалось совсем немного. На ремонт они планировали выделить от 3 до 5 тысяч долларов и быстро переехать, чтобы не тратить деньги на съемное жилье, которое вытягивало по $340 в месяц. Но, прикинув возможные варианты, ребята решили, что в такой квартире жить они будут, мягко говоря, без удовольствия.

— Все мечтают, чтобы в их «однушке» было спальное место, условная детская, личное пространство. Если бы мы тогда заселились, у нас бы ничего этого не было. Вечно кричали бы дети, крошили печенье на нашу кровать, мы бы не смогли даже кино посмотреть нормально. В итоге подумали, что нет ничего более постоянного, чем временное, и решили сделать перепланировку и нормальный ремонт, — говорит Петр.

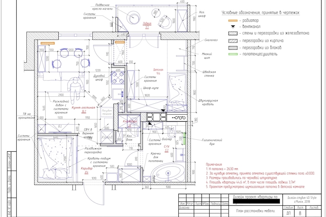
Пара обратилась в дизайн-студию 4D Style (об одном из необычных проектов этого бюро мы рассказывали вот тут) и стала рассматривать варианты переустройства жилья. Специалисты предложили сделать микроспальню, совместить ванную и туалет, оформить студию, а на месте кухни сделать детскую комнату. Заказчики получили разрешение и начали искать подрядчиков.

За ремонт отдали около $8 тысяч по курсу

Качеством ремонта в старой квартире Петя и Саша остались не слишком довольны: Александр Скок во время приемки поставил качеству выполненных работ четыре балла из десяти.

На второй круг минчане пошли уже с опытом и сформулировали для подрядчиков довольно жесткие условия: согласились оплачивать работу только по факту, потребовали четкую смету, а каждый этап пообещали принимать со специалистом. Такие условия распугали практически все бригады.

— После нашего объявления в «Услугах» на Onliner откликались только с критикой. Подрядчики писали «Дураков тут нет», «Вы никого не найдете» и все в таком духе. Но позже две компании согласились, мы выбрали одну из них и ударили по рукам, — объясняет хозяин. — Договорились с мужчиной, который в итоге делал нам всю квартиру. Он говорил: «Скока я не знаю, но есть стандарты, по ним я работаю». Скоку в конечном счете понравилось. 

Ценник у него был средний по рынку или даже чуть ниже среднего. За всю работу по объекту мы отдали что-то около $8 тысяч по курсу. Это без установки дверей, монтажа натяжных потолков и кондиционера.

Денег к этому моменту у семьи не оставалось, но еще во время первого ремонта ребята научились работать без копейки в кармане: в долг, по картам рассрочек, по договоренности. Параллельно Петр купил в кредит машину (уж очень хотелось), а потому в какой-то момент средств не хватало даже на оплату мебели. Пришлось брать еще один кредит на $20 тысяч — с учетом кредитного рейтинга такую сумму согласился дать только один банк в городе.

— Этим кредитом мы погасили кредит на машину. Машину продали, а эти деньги отдали за мебель. Не знаю как, но мы вышли в ноль. Я еще хотел колонку «Алиса», но денег не было даже на нее. Снова долги, кредиты и ноль в кармане, — смеется наш собеседник.

Что получилось в итоге?

Сейчас детская располагается на месте кухни. Здесь стоят шкафы, две кроватки, есть выход на балкон — места для двух малышей хватает.

Санузел был разделен, но ребята решили сделать совмещенный, чтобы увеличить пространство и поставить хорошую ванну.

— Было сложно все здесь расположить, все вместить, чтобы было комфортно. Помещение небольшое, а нам хотелось и душ, и ванну, и тумбочки, и все на свете. У нас была пара ошибок в проекте, когда из-за одного сантиметра все рушилось, но в итоге по миллиметрам все расставили и получилось классно, — улыбается молодой человек. — Вышло недешево, потому что мы здесь не экономили. Только душевая система $700 стоила!

В стене спрятан бойлер, система, защищающая от протечки. На месте шкафа появилась постирочная. Там же спрятан щиток: в квартире очень много розеток и разных режимов подсветки.

Вся мебель сделана под заказ. Супруги постарались предусмотреть все нюансы, включая такие мелочи, как место для парковки робота-пылесоса.

После отделения спальни коридор получился совсем небольшим, но семья как-то справляется.

Спальня не самая просторная, но уютная. Там есть полочки для личных вещей, установлена подсветка. По задумке дизайнеров на стенах должны были появиться деревянные соты, но подрядчик подставил и заказ не выполнил.

— Кто-то смеется, что у нас входная дверь прямо возле спальни. Зато пиццу у курьера забирать удобно, — смеются ребята.

В центре гостиной стоит дорогой диван, напротив — телевизор и шкафы. Вся мебель сконструирована так, чтобы дети не ударялись об открытые дверцы.

На кухне установлен измельчитель мусора. Петр говорит, что вещь недешевая, но в хозяйстве крайне полезная — все остатки еды перемалываются и уходят в канализацию.

С лестничной площадки можно подняться на эксплуатируемую крышу. Это любимое место семьи для фото в Instagram.

Посмотреть эту публикацию в Instagram

Публикация от Петр Калюжный (@dekretnik)

Посмотреть эту публикацию в Instagram

Публикация от Петр Калюжный (@dekretnik)

Посмотреть эту публикацию в Instagram

Публикация от Петр Калюжный (@dekretnik)

Квартира обошлась примерно в $110 тысяч по курсу

Всего за превращение «однушки» в «трешку» и итоговый ремонт с обустройством ребята отдали $33—40 тысяч. Учитывая изначальную стоимость, квартира обошлась примерно в $110 тысяч по курсу. Сейчас объект выставлен на продажу: супруги просят $119 тысяч, но готовы торговаться.

— Мы хотели жить здесь очень долго, но так вышло, что у нас вот-вот появится третий ребенок. С двумя детьми тут было хорошо, но впятером не поместимся, — улыбается Александра. — Все наверняка будут писать, что это очень дорого. Но это только со стороны так кажется. На самом деле здесь очень классный ремонт, много техники, которая серьезно увеличивает стоимость, много вещей, которых не видно под отделкой.

Когда мы продавали свою малосемейку, нам тоже говорили, что это дорого. Но когда ты делаешь для себя, то предусматриваешь все нюансы, не экономишь, стараешься выбирать лучшее. И у нас получилось классно.

Мы получали удовольствие от жизни здесь. Думаю, семье из трех-четырех человек будет комфортно в такой квартире.

Читайте также:

Покупайте с оплатой онлайн по карте Visa и выигрывайте iPhone каждую неделю

транца нет, грузоподъёмность: 160 кг, 2 места, 3.12x0.91 м, 16.9 кг

Хроника коронавируса в Беларуси и мире. Все главные новости и статьи здесь

Самые оперативные новости о пандемии и не только в новом сообществе Onliner в Viber. Подключайтесь

Наш канал в Telegram. Присоединяйтесь!

Быстрая связь с редакцией: читайте паблик-чат Onliner и пишите нам в Viber!

Перепечатка текста и фотографий Onliner без разрешения редакции запрещена. nak@onliner.by