В Бресте планируют построить спортивно-развлекательный комплекс, которому позавидует Минск

 
18 325
04 февраля 2026 в 14:18
Автор: Ирина Сидорок
Автор: Ирина Сидорок
РАЗЫГРЫВАЕМ ИГРОВОЙ ПКСкачай приложение Каталога и нажми «Участвовать» до 21.06.2026

Белорусы еще не успели обсудить проект новой ледовой арены в Витебске, а их уже приглашают посмотреть на рендеры еще одного спортобъекта. На этот раз креативят в Бресте. В северной части города на улице Лейтенанта Рябцева, 126А, планируют построить «Брест Форум» — спортивно-развлекательный комплекс, который обещает стать самым масштабным в областном центре. Акцент создатели объекта делают на теннисные и падел-корты. Посмотрим, что еще предлагают.

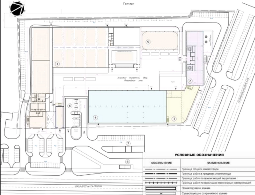
Строительная площадка разместится в зоне СЭЗ Бреста «Козловичи» на месте двух ангаров, пары одноэтажек и парковки грузовиков. Их снесут и построят новые здания комплекса.

Разработчик концепции комплекса — брестское ООО «Бюро архитектуры и дизайна „Куб“». По замыслу проектировщиков, услуги посетителям предложат в шести основных зонах объекта.

Самая главная территория «Брест Форума» (подчеркивается, что название пока рабочее) — спортивный манеж, который расположится на трех этажах. Площадь 9380 квадратных метров займут:

  • теннисные корты с профессиональным покрытием и трибунами, здесь будут организовывать соревнования;
  • падел-корты для занятий новичков и профессионалов;
  • тренажерный зал на 1000 «квадратов»;
  • три зала аэробики;
  • спортивный магазин.

Предполагается, что здесь смогут комфортно находиться 170 человек одновременно.

На первом этаже будет здание картинга площадью 3150 квадратных метров и вместимостью 10 человек в час. Заявлено, что картинг оснастят электрокартами и создадут профессиональную многоуровневую гоночную трассу. Соревноваться здесь смогут дети и взрослые.

В двухэтажном здании площадью 2 тысячи «квадратов» разместят банный комплекс. Обещают большие общественные парильни, купели, открытую террасу с джакузи, комнаты отдыха и массажные кабинеты. В интерьере в стиле старорусских бань заявлены природные натуральные материалы.

Трехэтажное здание общепита площадью 3110 квадратных метров вместимостью 150 человек, как обещает проектировщик, соединит картинг и бани, обеспечив питанием весь комплекс. Здесь разместят фудкорт, игровые комнаты, вип-комнаты, кафе с террасой и туалеты.

800 «квадратов» займет крытый каток вместимостью 50 человек в час. Это будет тентовое сооружение для катания на коньках зимой и роликах — летом.

Еще одна локация комплекса — мойка автомобилей на три поста.

По проекту все здания расположатся по периметру участка, что освободит внутренний двор от машин. Там организуют места отдыха, террасы, архитектурную подсветку. Внутренняя локация, из которой, по замыслу архитекторов, можно будет попасть в любое здание комплекса, будет задействована и для сезонных мероприятий: новогодней елки, весенних и осенних ярмарок.

Проектировщики зонировали территорию таким образом, чтобы пешеходы, авто посетителей и грузовики доставки не пересекались. Парковки расположат с внешней стороны комплекса.

Общественное обсуждение объекта запланировано с 9 по 23 февраля.

 

Все замечания и предложения принимают с 9 по 23 февраля на электронную почту управления архитектуры и градостроительства Брестского горисполкома gradgik@city-brest.gov.by (с указанием фамилии, имени, отчества, номера телефона и адреса заявителя). Оставить свои идеи можно также в журнале учета посетителей экспозиции объекта общественного обсуждения, с пометкой «архитектурно-планировочная концепция „Реконструкция существующих капитальных строений под спортивно-развлекательный комплекс, расположенный по адресу: г. Брест, ул. Лейтенанта Рябцева, 126А“».

16 февраля можно попасть на презентацию архитектурно-планировочной концепции спорткомплекса. В 17:00 желающих ждут по адресу: г. Брест, ул. Энгельса, 3.

для взрослых, любительский уровень, 210 г, материал алюминий, струнная формула 16x19, синий
для детей, начинающий уровень, 0", 240 г, материал графит, баланс по центру (нейтральный), струнная формула 16x19, белый/розовый/черный

Есть о чем рассказать? Пишите в наш телеграм-бот. Это анонимно и быстро