«Большая переделка». В спальню вложили всего 1960 рублей — вот такой бюджетный ремонт хрущевки

5550
31 января 2026 в 8:00
Источник: Елена

«Большая переделка». В спальню вложили всего 1960 рублей — вот такой бюджетный ремонт хрущевки

Источник: Елена
БОЛЬШОЙ РОЗЫГРЫШ! Заказывай от 99 р. в приложении Каталог Onlíner до 31.01 и получи шанс выиграть призы от Dreame

Продолжаем публиковать истории конкурса «Большая переделка». Вместе с нашим партнером — торговым центром «Ленинград» — разыгрываем 1000 рублей среди тех, кто поделится своим опытом ремонта старого жилья. На этот раз заглянем в гости к Елене: вместе с семьей она преобразила двухкомнатную квартиру, где провела все детство. Правда, задуманный изначально косметический ремонт превратился в капитальный, а бывший «бабушатник» — в уютное арендное жилье с нотками mid-century. Отправной же точкой в интерьере стали старые газеты, найденные под обоями. А если вы тоже хотите поучаствовать в конкурсе, присылайте свои тексты и фото на почту daa@onliner.by. Все условия читайте здесь.


Дом, в котором находится эта двухкомнатная квартира, был построен в 1968 году. Здесь я прожила с самого рождения и до 2000 года — и все воспоминания о детстве так или иначе связаны именно с этим местом. Низкие потолки, бетонные стены, встроенные в них батареи отопления, отличная слышимость соседей, обои в цветочек, «стенка» в гостиной, ковер на стене и бабушки на скамейках у подъезда — так выглядела моя хрущевка в 1980-е.

Последние десять лет жилье сдавалось в аренду. К моменту, когда мы снова вернулись к нему, это был уже не уютный «бабушатник», а запущенная студенческая берлога. Оценив состояние, мы приняли волевое решение сделать косметический ремонт — быстро освежить квартиру и повысить ее арендную привлекательность.

Но довольно скоро стало понятно: легким обновлением тут не обойтись. Уже через пару недель ремонта под слоями обоев обнаружились газеты 1968 года, а за ними — изношенные коммуникации и решения, принятые десятилетия назад. Обратной дороги не было: «косметика» постепенно превратилась в капитальный ремонт.

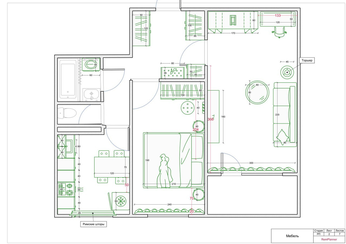
К процессу подготовки мы подошли вдумчиво. К проектированию подключилась вся семья. Мы начали с замеров и планировочного решения, которое сделали в онлайн-сервисе Remplanner. Там же подготовили рабочие чертежи для строителей, планы переноса розеток и освещения с размерными привязками, а также развертки стен.

Параллельно решался вопрос с дизайном. Мы изучили рынок арендных квартир в районе, поговорили со знакомыми и постепенно нащупали концепцию. Хотелось подойти к реновации бережно и сохранить связь времен — соединить прошлое и настоящее. В итоге выбрали универсальный интерьер с теплой нейтральной базой, цветовыми акцентами в предметах и легкими отсылками к mid-century.

Во время демонтажа мы буквально сняли со стен культурные слои — за годы здесь сменилось семь поколений обоев. Самым нижним слоем оказались газеты «Правда», «Известия» и «Красная звезда» за 1968 год. В этот момент решение было принято окончательно: эту «стенгазету» мы оставляем и делаем акцентом в гостиной и коридоре. Уже в самом конце ремонта к нам заглянула соседка и, увидев стену, решила, что мы до сих пор не поклеили обои.

Наш «косметический» ремонт растянулся почти на девять месяцев. Старались делать экономно. Для крупных этапов — демонтажа, черновых и отделочных работ — через сервис «Услуги» на Onlíner мы нашли прораба с бригадой. Более мелкий ремонт, реставрацию, сборку мебели и декор делали своими силами. Как и на любой стройке, не обошлось без мелких недочетов, задержек и промахов, но в итоге все удалось довести до конца.

Квартиру разобрали до бетонных стен. Первые пять месяцев казалось, что мы зря во все это ввязались и до чистового состояния просто не дойдем. Мы полностью заменили трубы водоснабжения в кухне и санузлах, перенесли и добавили розетки и источники света, обновили плитку на стенах и полу, демонтировали старые окна, встроенные шкафы и двери. Чугунную ванну отправили на дачу, а старая мебель — в зависимости от состояния — либо уехала на свалку, либо нашла новых хозяев.

Изначально бюджет ремонта был гораздо скромнее, но в процессе его пришлось увеличить примерно в 2,5 раза. Самыми затратными статьями стали окна, кухонная мебель, санузлы и диван в современном дизайне — они «съели» около 70% бюджета. В итоге на ремонт квартиры площадью 48 м² мы потратили около $17 000.

Отдельным приключением стала кухня. Мебель мы заказывали в компании с салонами по всему городу, и именно этот этап оказался самым долгим. Когда гарнитур приехал, четыре из девяти фасадов оказались выполнены из другого материала, для которого была предусмотрена и другая фурнитура. В результате установка кухни растянулась почти на пять месяцев.

В кухне мы решили сохранить старую дверь с «родным» рифленым стеклом в цветочек. Хотелось сделать ее акцентной. Красный цвет показался слишком банальным, и после поиска референсов мы остановились на сочетании красного и голубого. Так полотно стало голубым. В поддержку цвета подобрали римскую штору, купленную на маркетплейсе во время «черной пятницы». Газовую трубу замаскировали зеркальным коробом, а красный смеситель с гибким изливом стал финальным ярким акцентом.

На полу уложили бюджетный «Керамин», а для стен в санузлах и кухонного фартука выбрали классическую белую квадратную плитку 15×15 — символ советских ванных комнат. Сейчас она снова на пике моды. Черная затирка и яркая шторка в ванной собрали воедино все цвета квартиры и добавили интерьеру характера.

Ревизионный люк в туалете, доставшийся после капремонта дома, мы за 40 рублей покрасили порошковой краской в глянцевый черный цвет — он буквально растворился на фоне плитки. Добавили ироничный постер, сделанный своими руками, и полочку для телефона.

Из-за детских воспоминаний мы не смогли расстаться и со старым окном: его форточка стала декоративным элементом в прихожей.

Из мебели в квартире остались лакированный шкаф с антресолью и шкаф в коридоре, кухонный стол и тумба на ножках в стиле mid-century. Все они были в хорошем состоянии и органично вписались в интерьер. Остальную мебель мы искали на барахолках и маркетплейсах.

Шкаф с антресолью простоял в маленькой спальне 55 лет и идеально «врос» в пространство. Но при перепланировке он стал мешать установке двуспальной кровати, и мы решили дать ему вторую жизнь в гостиной. Ограничились заменой ручек и петель, но при переносе геометрия шкафа «поехала». Идеала добиться не удалось — возможно, проще было купить новый.

Потолочное освещение в гостиной сохранили: вывод для люстры неожиданно оказался ровно там, где нужно. Сама люстра — та самая советская «Ивица» — получила вторую жизнь: мы сняли старые плафоны, покрасили каркас черной краской и добавили лампочки-свечи. Получилось вполне современно.

В гостиной предусмотрели и рабочее место — без него сейчас никуда. Стол и лампу нашли на барахолке за 15 рублей, стул из IKEA — там же, но уже заметно дороже. Добавили магнитный мудборд, сделанный из икеевской подставки для обуви, — и рабочая зона готова.

На фоне газетной стены поставили современный диван приглушенного голубого оттенка. Он стал центром притяжения квартиры, а поворотные бра позволили создать более камерный сценарий освещения.

Спальня оказалась самой экономной частью ремонта. Мы купили недорогую б/у кровать, сделали химчистку и мелкий ремонт своими руками, заказали бюджетное бра, а шкаф нашли на маркетплейсе и просто заменили ручки. Потолочный светильник покрасили баллончиком и перенесли с помощью открытой проводки на красном текстильном проводе. Вся спальня обошлась в 1960 рублей.

Оглядываясь назад, мы понимаем, что кое-что сделали бы иначе: утеплили бы пол, тщательнее спланировали бы электрику, по-другому расставили бы мебель в кухне и ванной, перенесли бы стиральную машину на кухню, серьезнее подошли бы к вытяжке и выбору клининговой службы. Также стало ясно, что реставрация и перенос старого шкафа — не всегда хорошая идея.

Есть о чем рассказать? Пишите в наш телеграм-бот. Это анонимно и быстро

Перепечатка текста и фотографий Onlíner без разрешения редакции запрещена. ga@onliner.by