Раковина в коридоре? Вот как креативно можно обустроить 29 метров

 
18 381
04 декабря 2025 в 17:05
БОЛЬШОЙ РОЗЫГРЫШ! Заказывай от 99 р. в приложении Каталог Onlíner до 31.01 и получи шанс выиграть призы от Dreame

Париж — город небольших квартир. Типичных для Минска малогабариток там полно. Но интересно, что обустраивают их там совсем не так, как у нас. Вот что значит разница менталитетов и эстетических интеллектов. Столичные дизайнеры и собственники, как правило, выбирают самый легкий способ обжить 30-метровые пеналы: кухня в коридоре, кровать в центре комнаты — и на этом все. А вот в Париже люди ищут креативные способы спланировать небольшое пространство. 

Вы купили либо арендовали малогабаритку, комфортно ее обустроили и готовы поделиться своими впечатлениями о жизни в ней? Пишите на почту ln@onliner.by.

Пример такой нетипичной маленькой квартиры приводит портал interior.by. Отмечается, что жилье для студентки Сорбонны обустраивала дизайнер Екатерина Володина. Запрос был такой: на 29 метрах разместить все необходимое для комфортной жизни молодой девушки — от посудомоечной машины и духовки до дивана для гостей.

— Каждый сантиметр должен был быть продуман до мелочей, чтобы наделить небольшое пространство большими возможностями, — говорит автор проекта.

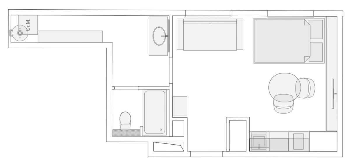
Вот как выглядит итоговая планировка:

раскладной, механизм "еврокнижка", настил пенополиуретан (поролон), длина 199 см, спальное место 199x140 см

Окна квартиры выходят в зеленый двор, и это стало вдохновением при выборе стилистики интерьера. В нем использована палитра древесных оттенков с горчичными и оливковыми акцентами. Вместо белых стен — обои с мягкой тканевой текстурой, вместо голого пола — ковер с анималистичным рисунком. Получилось уютно, по-девичьи, с нотками ретро.

Кухня оснащена большим количеством ящиков, вместила в себя максимум бытовой техники: духовой шкаф с СВЧ, вытяжку, варочную панель и посудомоечную машину. Небольшая кровать расположилась у окна.

Гардероб заказчицы вместе со стиральной машиной спрятали в узкой технической комнате за плотной шторой.

Удивляющим стало решение разделить санузел на несколько зон: унитаз и душевая находятся в одном помещении, а раковина — в коридоре.

— Это решение было продиктовано ограниченной площадью и влажным парижским климатом. Гораздо приятнее делать ежедневные гигиенические процедуры без ощущения сырости, — объясняет Екатерина.

Как вам планировка и дизайн квартиры?

Чтобы сделать свой выбор, войдите или зарегистрируйтесь
Супер! Очень удобно
Сомнительно, но окей
80x80 см, стекло/металл, круглая форма, установка настенная, золотистый
душевая система (с верхним душем), настенный монтаж, механический смеситель, верхний душ, ручной душ
отдельностоящая, стиральная машина, с паром, загрузка до 4 кг, отжим 1000 об/мин, глубина 36 см (с люком 41 см), энергопотребление A+++, прямой привод, 13 программ

Есть о чем рассказать? Пишите в наш телеграм-бот. Это анонимно и быстро