Есть однушка за $39 тысяч по курсу. На торги выставили готовые квартиры в минской новостройке

 
03 декабря 2021 в 16:04
Автор: Снежана Инанец
Автор: Снежана Инанец
Выиграй модный аэрогриль! Покупай в приложении с доставкой Príme и получай шанс выиграть аэрогриль Roome

В новостройке в минском микрорайоне Красный Бор — 2 выставили на аукцион восемь готовых квартир. Начальная цена самой дешевой однушки в списке — 100 тысяч рублей (чуть больше $39 тысяч по курсу), самой дорогой двушки — 152 тысячи рублей (около $60 тысяч по курсу). На сайте Института недвижимости и оценки есть подробности о лотах. 

Новостройка находится по адресу Лобанка, 64, на пересечении с улицей Мазурова. Дом сдали в этом году, его возвел Завод эффективных промышленных конструкций.

Новостройка на Лобанка, январь 2021 года. Фото из архива

Аукцион назначен на 4 января, в нем могут участвовать все желающие. Все квартиры — без отделки, вот информация по площадям и ценам:

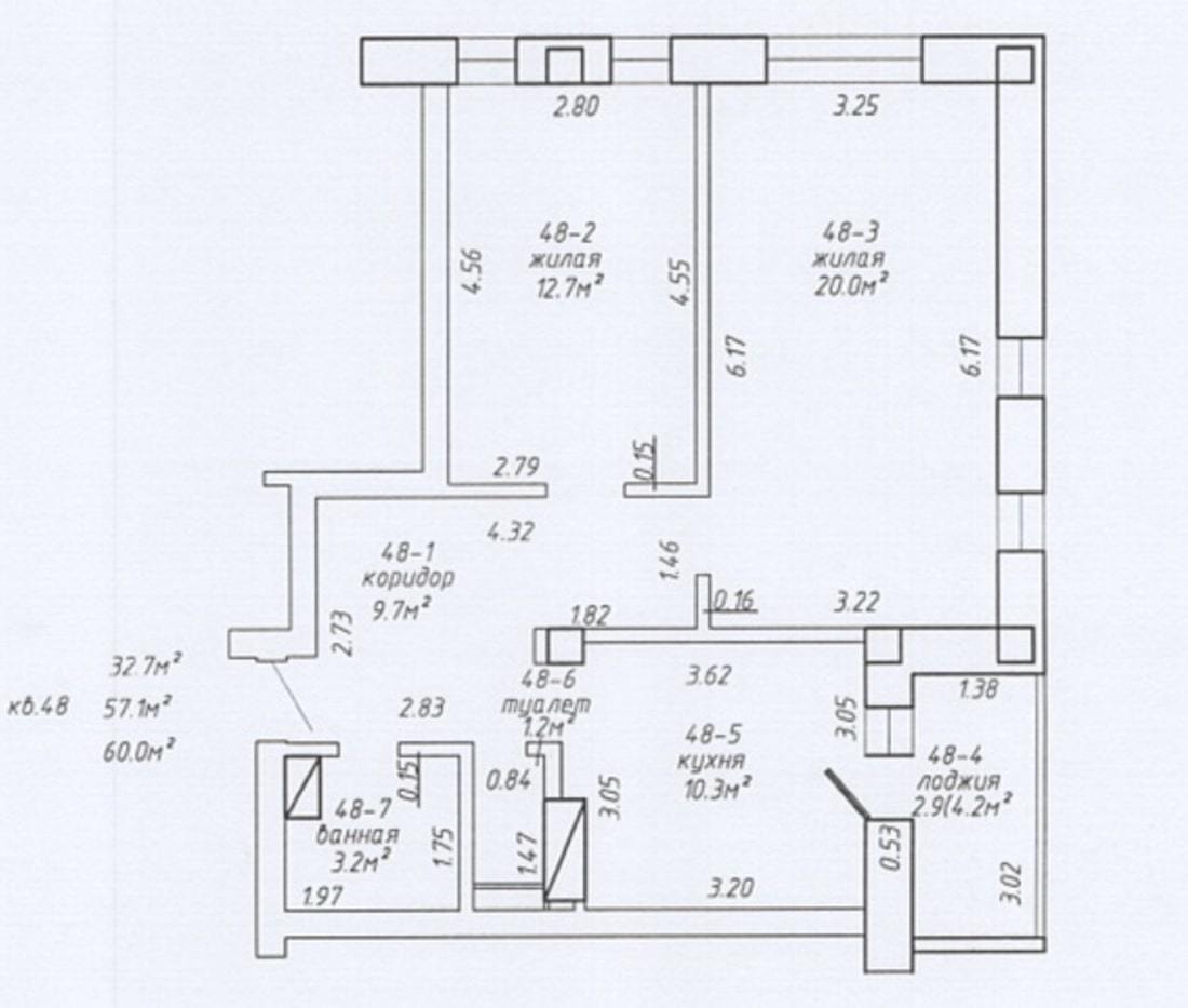
  • двухкомнатная квартира на 1-м этаже (общая площадь — 57,2, жилая — 32,5 квадратного метра). Цена — 141 тысяча рублей

  • двухкомнатная на 1-м этаже (общая площадь — 57,6, жилая — 32,5 «квадрата»). Цена — 142 тысячи рублей;

  • однокомнатная на 1-м этаже (общая площадь — 43 «квадрата», жилая — 17,4). Цена — 126 тысяч рублей;

  • двухкомнатная квартира на 6-м этаже (общая площадь — 57,1 квадратного метра, жилая — 32,7). Цена — 152 тысячи рублей;

  • двушка на 6-м этаже (общая площадь — 58,1, жилая — 32,6 «квадрата»). Цена — 155 тысяч рублей;

  • однушка на 7-м этаже (общая площадь — 32,5, жилая —14,2 «квадрата»). Цена — 100 тысяч  рублей;

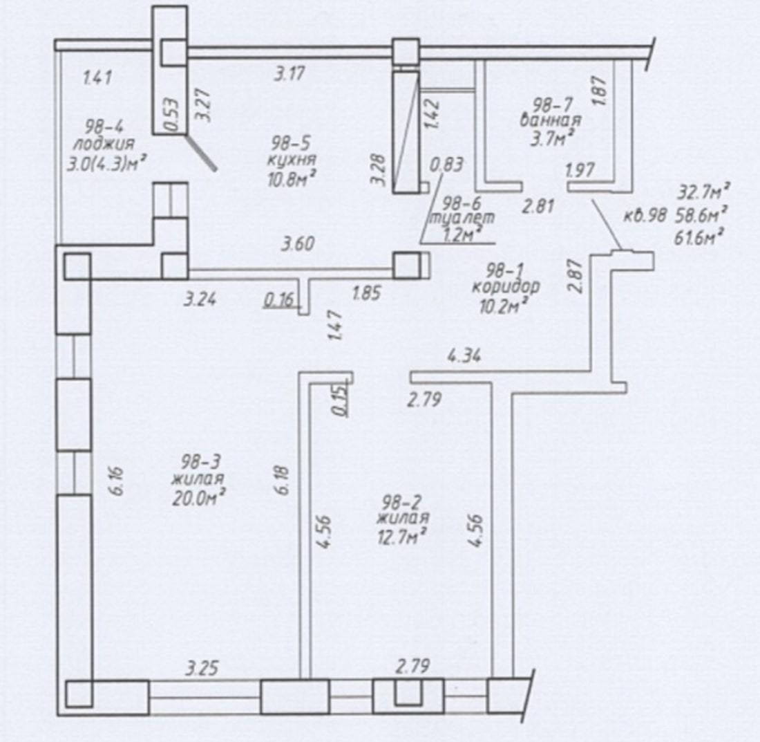
  • двушка на 11-м этаже (общая площадь — 58,6, жилая — 32,7 «квадрата»). Цена — 156 тысяч рублей;

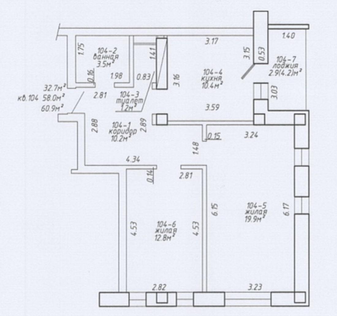
  • двушка на 12-м этаже (общая площадь — 58 «квадратов», жилая — 32,7). Цена — 155 тысяч рублей.

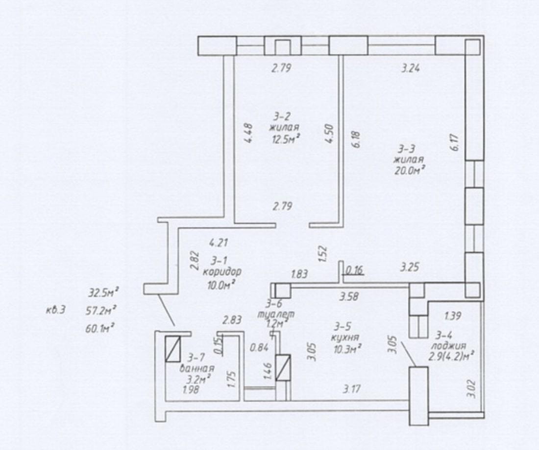
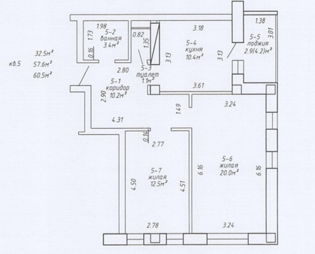
Вот как выглядят планировки.

Onlíner уже рассказывал об этом доме.

Так, жители квартала сопротивлялись возведению «уплотнительной» 16-этажки, ведь общественного обсуждения по ней не было. Один из аргументов местных чиновников, почему строить надо, был такой: мол, дом нужен, чтобы загрузить на полную мощность предприятия «крупнопанельного домостроения для стабилизации их финансового положения». В комитете архитектуры и градостроительства Мингорисполкома добавляли, что еще в 1989 году Красный Бор — 2 (как и Красный Бор — 1) запроектировали как районы высокоплотной застройки. К тому же этот участок Заводу эффективных промышленных конструкций выделили по поручению президента. В январе 2021 года некоторые дольщики жаловались на проблеме при приемке квартир. Отмечалось также, что цены за квадратный метр в однушках доходят до $1400 за «квадрат».


Onlíner рекомендует
зерновой, арабика 100%, средняя обжарка, интенсивность 5/10

Наш канал в Telegram. Присоединяйтесь!

Есть о чем рассказать? Пишите в наш телеграм-бот. Это анонимно и быстро